当时间的指针拨回到2010年,从卫星云图看,中新知识城还是一块遍布鱼塘、农田、山林的荒凉之地。弹指一挥间,可上九天揽月,知识城如今的区域“身价”早已不可同日而语。所谓九年蚕蛹化蝶,知识城已然是一座高起点、高占位、大交通、大产业的智慧新城。当年有人还直言这是一座郊区睡城,如今房价早已翻倍,错过了最佳上车机会,估计肠子都悔青了。


中新知识城总占地123平方公里,中南北三大区块各有侧重,细分了多个产业园区。比如中部是知识产业保护与服务集聚专业园区;北区聚焦生物医药产业园区、物联网与新材料产业园区、芯片半导体产业园区;南起步区部是产城融合区,承担住宅、商业、配套、政府行政区域、知识产权园区等复合功能。除了今天我们要解读的龙湖、招商、时代三大楼盘项目外,还有万科、绿地、合景泰富、中泰以及腾飞集团等多家房企项目落户于此。

想必许多想在中新知识城置业的人,都绕不开一个问题——中新知识城的发展潜力如何?接下来,我们在解读龙湖双珑原著、招商雍景湾、时代天韵三大楼盘项目之前,先来探究下楼盘项目所在的中新知识城的区位价值。
知识城区位价值概述
区位
广州中新知识城,总面积约178平方公里,地处粤港澳大湾区“湾顶”,位于广州市的几何中心,距离广州白云国际机场25公里,距广州中心城区35公里,同时又是广州向东发展轴线上的重要节点,以及广深科技创新走廊的十大核心创新平台之一,打造广深科技走廊“主引擎”。

中新知识城于2018年11月正式上升为中新国家级双边合作项目,作为广州国际科技创新枢纽核心区,与广州国际航运枢纽(南沙自贸区)、广州国际航空枢纽(空港经济区)共同构成广州“外三角”空间布局,致力于建设粤港澳大湾区知识创造示范区,打造具有全球影响力的国家知识中心,未来知识城将容纳超过60万高新人才在这里工作和生活。
交通
路网系统:包括京珠高速公路、北二环高速公路、广惠高速、华南高速干线、广汕公路、广从公路、花莞高速公路和广河高速公路等,把知识城与周边地区连接起来。
轨道交通:地铁+4高速地铁+1城轨
地铁14号线知识城支线,将广州白云国际机场和广州市中心连接起来;地铁21号线(天河公园至增城广场),将于今年9月正式开通试运营,把知识城与广州和增城的中心城区连接;27号线(规划中),串联起了知识城、广州科教城、增城开发区三个经济功能区。
知识城还有4条高速地铁规划,时速200 km,连通了主要的枢纽中心(白云机场、第二机场、广州东站)和南沙,预计报批和开建还需要很长时间;此外,还有规划中的“穗莞深”城际轨道与珠三角的城市构建了1小时经济圈,强化与大湾区各城市之间的联动。

产业配套
产业发展在很大程度上决定了一个城市的竞争力,尤其是低耗能,高附加值的创意产业能激发城市活力,为城市发展提供源源不断的动力。

中新广州知识城目前已拥有8大支柱产业集群、数10所国际顶尖科研机构、1382家企业,吸引了阿里巴巴大数据中心、中国移动华南研发基地、GE生物科技园、西门子等多家全球500强高新企业入驻,累计注册资本约1294亿元,将重点围绕“IAB+NEM”战略,打造千亿级产业集群。
现阶段来看,中新知识城板块区位价值突显,各方面配套在规划上已相当完善,可以说是每过一段时日,城市的面貌就翻天覆地。房地产商触觉是最为敏锐的,不管怎样,先占个坑再说。但小编走访发现,目前很多配套项目仍在起步建设阶段,居民生活在一定程度上还存在着不便之处。
接下来我们来看看龙湖双珑原著、招商雍景湾、时代天韵三大楼盘周边的配套情况。
三大楼盘周边配套
(1)交通
三个楼盘都靠近地铁14号线知识城支线,步行到旺村站的距离在一千米左右,时代天韵更靠近何棠下站,步行约500米,而招商雍景湾、龙湖双珑原著还要稍远些。而时代天韵在位置上基本可以说是地铁上盖,周边公交站点和线路也密集,出行也相对便利。

从何棠下站站到珠江新城,知识城支线暂时只能在新和站转乘14号线主线到嘉禾望岗,再转3号线到天河,单程耗时约80—90分钟,到中心城区的通勤时间还是比较久。
地铁21号线西段(员村到镇龙段)最快在9月28日开通,预计随着21号线的开通,将大大缩短知识城到珠江新城的时间,到时候可以坐14号线知识城支线4个站到镇龙站,换乘21号线快线,再坐3个站到黄村,全程7个站到天河。
(2)学校&商业&医疗配套
教育方面,知识城规划有18所学校,凤凰湖小学、广州市二中会元学校、广州实验中学、九龙新城完全中学、新加坡南洋华侨中学等等,从幼儿园到大学都有。就当前三个楼盘所在的知识城南起步区来讲,学校教育配套质量都不错,基本上来说都能满足业主的需求。
知识城规划了五个邻里中心,作为街区级的小型商业中心。三个楼盘边上都各有一个邻里中心,目前只尚在规划建设中,时代天韵的城南邻里中心开业动工最早,预计年内开业。周边较大型的商业购物中心有“MALL+商业街“模式的缤纷城,项目计划将于年底开业。

医疗方面,专科医院(泰和诚肿瘤医院、皇家丽肿瘤医院、中山大学肿瘤医院)都在南起步区何棠下站的北侧,综合医院(南方医院知识城分院)在北面的九龙新城,这些医院都已动工,其中建设进度最快的是中山大学肿瘤防治中心,位于地铁何棠下站旁。
(3)不利因素
兴丰垃圾填埋场,号称广州市最大垃圾填埋场,占全广州每日垃圾处理总量的60%,萝岗居民深受其扰。现有的兴丰垃圾填埋场一期已填满,在目前位置的西侧新建二期填埋场,将成为未来8—9年内广州中心城区唯一的卫生填埋设施。
上年底,福山垃圾焚烧厂正式开园,位于广州市黄埔区九龙镇福山村,是广州目前最大规模的固废循环处理园区,属于福山循环经济产业园的一部分,目前已经点火发电。

从上图来看,两个环境不利因素距离中新知识城南起步区6—9千米,也是影响周边房价的一个不稳定因素。
楼栋&户型价值解读
龙湖双珑原著
房价:22000—24000元/㎡

楼栋价值
一档:1#、10#、11#、12#。这四栋是该楼盘最优质的楼王单位,一层四户,北向可以望凤凰湖景,南向可望小区规划的园林,光线充足。既做到了南北通透,解决了北向的日照不足的问题,还充分利用了景观资源优势。
二档:5#、6#、7#、8#、9#、13#、14#、15#、16#。一层6户,大户型单位(126㎡)能做到南北通透,既可以看湖景,日照也充足。小户型(96㎡)北向单位有景观,但日照可能相对较差。
三档:2#、3#、4#、17#、18#。一层6户,不利因素主要是靠近道路,有一定的车行噪音和灰尘。
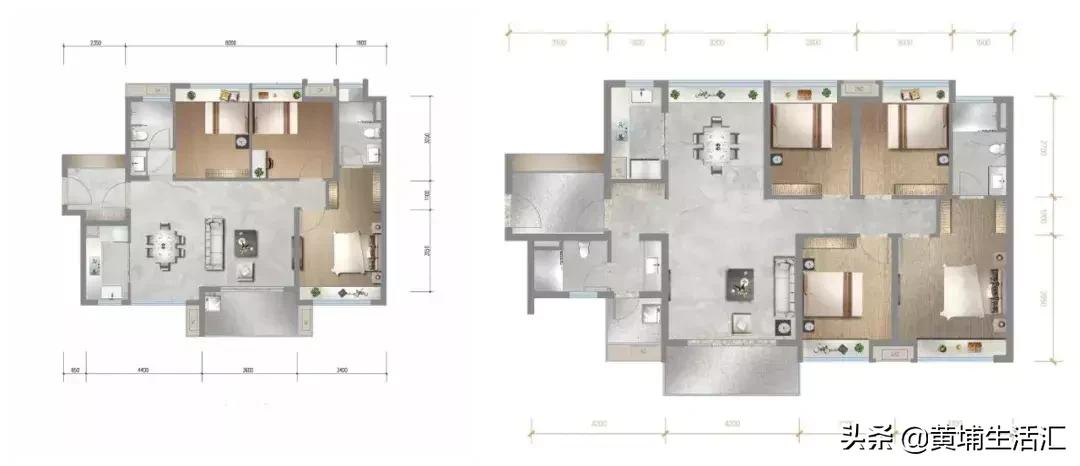
户型

▲左(98平三房)右(126平四房)
在户型上,龙湖98平做三房、126平做四房,对刚需客来说,空间利用效率其实是不高的,极致上来说都可以做多一个房间。但是从另一个层面讲,空间相对更宽阔,居住的舒适性也会提高,户型是适合刚需但又对居住体验有一定追求的客户。
此外,对于大户型的设计,基本都做到南北通透,发挥湖景、园林优势,光线也充足,对于追求高品质生活的客户也有较强吸引力。
招商雍景湾
房价:19000—23000元/㎡

楼栋价值
招商雍景湾采用的是高层+多层洋房+别墅的布局,尽可能地将地面空间都留给了多层洋房和别墅,压缩了高层的活动空间,高层组团区域的楼间距相对较密,景观方面以园林为主。
一档:1#、2#、3#、4#、15#、16#。南向户型望小学和别墅群,视野开阔,采光充足,北向望园林。
二档:10#、11#、12#。南向望园林,北向视野开阔。
三档:5#、6#、7#、8#、9#、13#、14#。楼间距有点密,视野、日照都容易受到遮挡,部分北向户型,视野还是比较开阔。
别墅群:经过的时候全都是密密麻麻的一片,楼间距密,设计感不敢恭维,靠近道路的几栋别墅,会受到噪音、灰尘影响。给编者的观感大概就是没钱的买不起,有钱高品位的可能看不上,纯粹个人观点,见仁见智吧。
户型

89㎡三房两厅一卫

92㎡三房两厅两卫

100㎡四房两厅两卫
89平三房多为北向户型,92平三房多为南向户型,100平四房是横厅设计,全明户型,采光充足程度是100平四房﹥92平三房﹥89平三房。
雍景湾在户型设计上,用尽可能小的面积做出尽可能多的房,与龙湖双珑原著比,雍景湾的户型格局或是空间感,肯定会比较挤,但房间多、总价低,对于刚需者来说也是挺具*伤杀**力的。
时代天韵
房价:25000—40000元/㎡

楼栋价值
时代天韵坐落在凤凰湖北侧,正处在凤凰湖公园中轴之上,属于南向一线望凤凰湖的地块,周边无遮挡,视野开阔、景观面超一流。
一档:1#、2#、3#、4#。这四栋是妥妥的楼王单位,临湖排布,南面朝凤凰湖,一线湖景,北面是小区园林,居住舒适度很高。同样在价格上也甩开其他楼栋,已破4万元/㎡,多了个湖景,但不是气势磅礴的那种,实地查看湖的面积并不大,但周边的生态绿化设施确实是不错。
二档:5#、6#、7#、8#、9#、10#。这六栋高层环绕成圈,南向湖景,从临湖一线变成一线天,主要的优势是大园林、大楼间距、视野开阔、两梯四户,此外靠近凤湖四路,双向六车道,有一定的车行噪音和灰尘。
户型

91㎡三房两厅一卫

98㎡三房两厅两卫

115㎡三房两厅两卫

128㎡四房两厅两卫

138㎡四房两厅两卫
时代天韵的户型有五种:91㎡三房两厅一卫 、98㎡三房两厅两卫、115㎡三房两厅两卫 、128㎡四房两厅两卫、138㎡四房两厅两卫。
户型设计方正好用,通风采光佳,动静分区,互不干扰。在产品力上与龙湖双珑原著、招商雍景湾一对比,自见分晓,毕竟时代天韵房屋售价也比二者高。其中91平、98平的户型均已售罄,除了楼盘本身的区位,一线湖景外,宽楼距、低梯户比、园林绿化、户数少,也是吸引买房者办卡上车的重要因素。
总结
对于刚需客来说,招商雍景湾的户型在空间设计上做到了极致,更适合一家大小居住,比龙湖双珑原著性价比更高;
而从居住舒适度上来说,资金更充裕的客户,会更倾向于选择时代天韵,毕竟产品力摆在这;
龙湖双珑原著在产品或居住体验上介于两者之间,适合刚需但又对居住体验有一定追求的客户。
PS:(以上是个人观点,仅供参考,而且知识城也不只这三大楼盘,建议大家综合各个楼盘实际情况作对比,自住或投资,选择需谨慎。)
附踩盘照片




▲摄影:科木朗