设计为生活提供丰富的可能性,心安之处便是家,充分满足居住者需求,便是恰到好处的设计!
今天这套设计的主人是一对新婚夫妻,希望打造一套温馨、清爽又能充分满足生活需求的空间。户型也比较特别,是一套“刀把房”,一起来看看。
户型需求分析

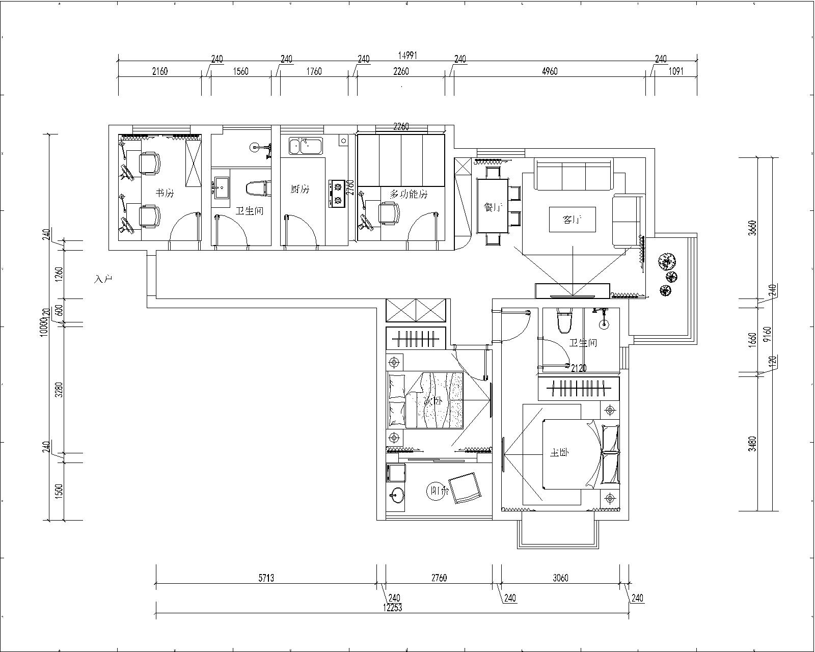
平面布置图
家庭成员:刚结婚的小家庭
户型:4室2厅
装修风格:现代简约
房子的男主人是一位游戏软件编程师,女主人则是小学老师,两个人都有居家办公的需求,需要有一个安静不会被打扰的工作空间。考虑房子的每一个空间都比较小,家里储物空间更显得重要。另外,还需要为孩子准备独立睡眠、学习、游戏的空间。

从户型图上可以看到,整个户型狭长,入户就是一道长的走廊,也没有做鞋柜的位置。整套户型缺少休闲娱乐空间,客餐厅整体空间偏小,5米的宽度摆下沙发餐桌就没有多余空间了。而且客餐厅飘窗位置靠边,光线差,电视墙也由于飘窗的原因,显得残缺。
通过充分沟通之后,业主夫妻选择了曲美家居进行定制设计。
客 厅

由于客餐厅空间较小,沙发尺寸要求比较高,在配色上也要多花一些心思。因此整个客餐厅选择温馨自然的浅暖色,以原木色为主体色,米色为背景色,绿色作为点缀,让空间显得温馨活泼。
沙发选择了曲美家居非常经典的一款北欧简约风弯曲木沙发,设计独特,坐感舒适且不占空间。

由于飘窗的位置特殊,导致电视背景左边残缺,为了显得完整,设计师在左边设计了常闭式二段窗帘与右边的电视高柜左右协调,同时右边的高柜可以装饰,可以收纳。
餐厅
虽然家中平时只有2个人吃饭,偶尔3-4个人吃饭,但餐厅对收纳还是有比较高的需求,而且女主人也希望有一个餐边柜来收纳餐具和酒具。

为了给客餐厅留出更多空间,餐厅采用来卡座设计,在右边做了一个玻璃门酒柜,满足女主人收纳和装饰的作用。
同时,在餐厅对面的走廊加做了一个鞋柜兼储物柜,上方储物,下方收纳鞋子,中间镂空处还加了隐藏灯带,使空间更有层次。
主 卧

主卧室色调还是以浅暖色为主,为增加幸福感,增加了黄色作为点缀色,让空间更温馨。
主卧靠墙做了一个2米长的通顶移门大衣柜,满足业主夫妻的衣物收纳需求,同时采用嵌入式设计,更加轻薄隐形。移门选择了原木拼接白色的设计,与双人床、床头柜统一,整体感更强。
次 卧

次卧室偶尔父母来睡,但是因为以后会有小孩,所以从长远打算,还是以儿童房的色调来设计。
由于空间偏小,又是整个房型中唯一一个有阳台的位置,所以考虑到动线的合理性,没有在空间中再做写字台,而是移到了多功能房。
多功能房

由于客厅空间的狭小,业主没有足够的休闲空间,所以将离客厅最近的房间改造成了休闲室,做了1.4米宽的榻榻米床和1.35米的大书桌,让空间有休闲、娱乐、学习、储物的功能,同时还能当做客房来使用,非常实用。休闲时间,在这里泡茶、聊天、玩手机都非常惬意。
书 房

由于夫妻二人的工作需求,书房相当于家里的办公室,满足了两人同时办公的需求。同时,设计师还将吊柜做了造型设计,给单调的墙面做了装饰,完全可以不需要再贴壁纸再去装饰,节省了壁纸费用。

在不影响书桌空间的情况下,在书桌后面做了书柜,增加书房的储书空间。
无论是什么样的户型,只要设计合理,都能让每一寸空间都发挥最大作用,创造出美好的生活。一起祝福这个小家庭。