炙热的南宁,可谓是牵动着全城人的一举一动。
五象新区作为南宁重点开发区域,在政府的红利下,亦吸引品牌房企进驻,各项配套设施逐渐完善。
作为正在崛起的新区,依托南宁城市“重点向南”的战略部署,五象南热度也居高不下,未来可期!
万科作为房企的老大哥,在南宁也打造有多个优质项目,且口碑不错,受到业主的肯定。
但是,万科不局限于自身发展优势,在产品上不断地突破创新,打造除更受南宁人喜爱的住宅产品。
听说,针对五象南的户型发展趋势,万科突破自我,在产品上改革创新,祭出高赠送户型。
今天我们就一起来聊聊位于五象南的万科金域国际将带来怎样的高赠送户型吧!
Part 1
今非昔比,五象南迎来利好
近年来,五象新区的发展突飞猛进,经过多年的建设发展,五象新区版图轮廓愈发清晰。五象新区核心区开发逐渐成熟,五象湖板块房价不断攀升,让很多置业者开始将目光聚焦到五象南。
五象南作为2021年南宁置业的“潜力股”,荣和、金科、万科、绿地等品牌房企加速布局。
目前,五象南开盘的楼盘有荣和五象院子、阳光城大唐世家、中南十洲、万科金域国际、建工城、金科城,以及即将入市的绿地朗峯、五象·湖光学府、均和·源盛长乐府。好不热闹!

对于刚需客来说,买房时最为重要的无疑是房价。 五象南主力房价在12000-14000元/㎡ ,地价从4字头到9字头,房价呈现阶梯式的增长。
在产品上,五象南的户型也是非常优质。89㎡做三房两厅两卫,97㎡做四房两厅两卫,带装修交付,大阳台、高赠送更是成为五象南的一大标签。
南宁人独爱大阳台,这让各大房企在产品的打造上将阳台做得更大,且阳台、飘窗全赠送,
户型比拼愈演愈烈,房企之间相爱相杀。
Part 2
万科超越万科,祭出高赠送户型
万科金域国际是万科进驻五象南的红盘,尽享五象南的优质资源。
在周边楼盘都是高赠送、大阳台的户型上,万科金域国际一期96-125㎡为主的户型,在市场竞争中,明显感到产品竞争力不足。在二期上进行了调整,做到了万科产品系里较高的赠送率。
先来看看最小户型—— 79㎡两房两厅两卫 。这个小户型在南宁万科十几个项目里是非常少见的。

户型整体相对方正,动静分离,客厅与次卧连接约5.4米观景阳台,采光通透,主卧配有小衣帽间和飘窗,尽享舒适生活。绿化阳台正对主卧,面积段位6.96㎡。
但美中不足的是阳台朝西设计,日落时会较晒。
95㎡三房两厅两卫

三开间朝南设计,明亮通透,采光充足。一体化餐客厅,空间更加宽阔,无论是家人共处一室,还是邀友聚会,尊享豪迈之感。客卫带有一个小阳台,可装生活清洁品。
与一期的96㎡相比,明显的变化就是阳台。一期的阳台3.5米开间,1.6米进深,面积约为5.6㎡。
二期的95㎡阳台开间就达到了5.6米,进深也做到2.9米,与市面上很多楼盘相比都要长出1米左右,面积约为16.24㎡。阳台连接客厅与卧室,可以保留,也可以打通,增加卧室的空间。
另一个变化,是朝北的次卧变小了。开间缩小0.3米,打造成儿童房也是不错的选择。
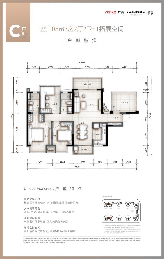
105㎡三房两厅两卫

这个户型,可以拓展成四房。相较于一期的103㎡三房户型,二期的105㎡多得了一间房,得房率得到了很大的提升。
二期105㎡的户型,设计成了南北双向对流阳台,客厅连接4米绿化阳台,采光通风都是十分的好。每间卧房均带有飘窗,且主卧套房式设计,独立衣帽间,享私密雍贵生活。
值得一提的是,105㎡的户型三阳台设计,其中一个绿化阳台进深2.8米,开间3.3米,面积约为9.24㎡,相当于多得了一间房,可以将其打造成书房、儿童房以及花园。
从万科金域国际二期的户型来看,高赠送、高得房率是很明显的升级。改进之后的二期产品,也得到了市场的青睐。
万科超越万科!这是万科户型在赠送率上的一次质变。
Part3
金域系升级之作,坐拥优质配套资源
万科作为行业内第一个坚持走全装修道路的企业,拥有23年的装修经验。
万科金域国际是广西万科新一代健康家的首批落地项目之一,在社区园林、公共空间、室内空间、交付系统,都有健康产品的升级。不同于万科前期的交付项目,万科金域国际交付标准采用“高级灰”色系,贴合2021年流行色审美,更受大家追捧。

不仅拥有优质产品,在配套上也是享有很多利好。
在交通上 ,万科金域国际位于五象中轴核心区,平乐大道与那浪路交汇处,紧邻地铁3号线延长线保税中心站(规划中),交通路网四通八达。
在商业上 ,万科金域国际5车程外就可以是华润mini万象汇、宝能城商业综合体、合景悠方、万科都荟广场等商业综合体。但五象目前的人气还撑不起足够的商业,华润等三个商业体何时开业还未可知。
在教育上 ,万科金域国际自身配套一所12个班的幼儿园,北边规划一所36个班的小学和一所中学,可享目送式教育。
另周边有五象总部基地、广西规划馆、五象湖公园、南宁万有国际旅游度假区、宜家宜居等配套设施,享有强势的配套资源。
但周边配套设施都还在建设、规划中,未来交付后是否享有,也还是个未知数。
写在最后
随着人居需求的升级换代,住宅户型也随之革新升级。
万科金域国际是万科金域系升级之作,自入市以来,人气居高不下。
如今,万科金域国际二期携大阳台、高赠送户型而来,将开启五象南人美好生活的开始。