简约的设计,总是在不经意间打动人。黑白灰作为最经典的基础色,也更适合简约时尚的装修风格,干净简单的色彩,会让空间显得格外透彻。这期案例就是以黑白灰为基调,加上自然色暖木地板,100㎡简约而不简陋,温馨而不沉闷,低调简约的设计,更贴近生活。
房屋基础信息
项目面积:100㎡
项目地址:四川成都
主案设计: 陈宣

原始结构图
户型大致较为合理,但也存在一些问题,比如室内隔墙太多,将空间划分得比较零散,看起来显得拥挤。此外,入户没有玄关,收纳要如何解决,还有厨房和生活阳台空间小,使用不方便的问题。最后就是卧室,需要进行微调才能更好地满足生活需要。

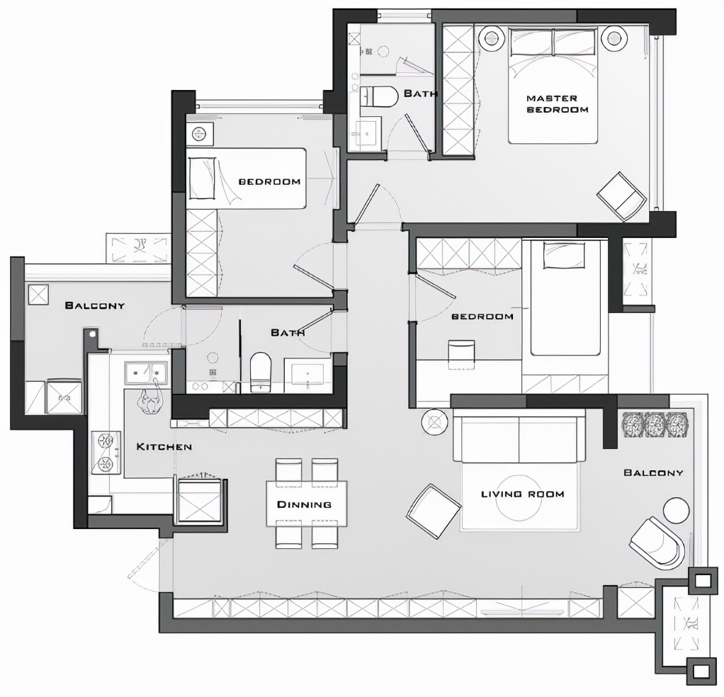
装修布置图
改动后整体布局更有利于日常生活。在征得物业允许后,调整了入户门位置,让进门右侧拥有足够的空间定制鞋柜。其次封闭了厨房通往生活阳台的门窗,让原有L型厨房变成U型,有利于日常操作,生活阳台改由客卫进入。最后,就是卧室空间调整,拆除了一些墙体,释放空间。

客厅设计
客厅以黑白灰为基础,打造干净纯粹的空间感,辅以暖色木地板增加空间温度,平衡空间色彩。拆除阳台推拉门,将阳台纳入客厅范畴,采光与通风变得更直接。简约时尚的百叶帘,取代了布艺窗帘,遮挡阳台的同时,又可以灵活调节室内光线强弱。

客餐厅吊顶一体化,整体感好,空间也更显开阔。客餐厅没有明确空间边界,利用灯具不同进行功能区划分。客厅采用无主灯设计,以点状光源结合嵌入式灯条的方式进行照明,餐厅则加入了黑色吊灯,多了几分精致。

调整了入户门位置,进门右侧拥有足够的空间定制储物柜,柜子由入户一直延伸到客厅,整面储物柜设计,不仅收纳充足,视觉效果也简洁大气。有开有合的设计,告别视觉单一,更有活泼气质。

餐厅设计
餐厅简约时尚,左右两侧均做了储物设计,大面积使用白色减轻柜子体量,视觉清爽空间也不显拥挤。纤细外观造型的桌椅,满足日常用餐需求,占用面积少空间也更通透。驼棕色坐垫的椅子,平衡了空间色彩,多了一份暖调与时尚感。


厨房设计
厨房采用玻璃推拉门隔断,推拉门采用吊轨的形式,有利于后期居家清洁。厨房封堵了通往生活阳台的门窗,让空间可以完整利用起来,打造成U型布局,拓宽操作台提升使用舒适度。

卫生间设计
卫生间设计比较简单直接,简单实用为主,便于日常维护清洁。镜柜设计不仅提高收纳,还可以增大视觉空间。生活阳台改由卫生间进入,还是比较方便的。

主卧设计
主卧拆除了部分隔墙,释放空间后更有利于装修布置。运用大量白色定调,加上黑色和木色点缀,平衡空间色彩。背景墙利用木饰面做分色设计,带出空间层次也多了几分温润气息。同样采用百叶帘设计,可以更灵活的调整室内光线强弱。


儿童房设计
儿童房考虑到空间结构因素,家具去啊不采用现场木工制作,整体性更好,空间利用率也更好。书桌结合开放式个家一直延伸到飘窗,方便小孩子摆放书籍和玩具。

以上就是这期案例分享,100㎡低调简约的设计,以黑白灰为基础色调,加上温润的木色点缀,平衡空间气质,整体还是非常耐看的,如果喜欢黑白灰风格,不妨参考一下。