夫妻改造市区60㎡平房,三角棚顶做挑高书房,全屋宽敞明亮又舒适
市区内在老平房改造也是一项复杂工程,很多房子都年久失修,低矮昏暗,改造难度极大,但如果规划好了效果也是惊人的!
一对同父母在一起住的年轻夫妻就有一套这样的60平米老平房,为了提升舒适体验,夫妻先将父母安排在自己的楼房内,然而对原有平房进行重新改造,利用尖顶造型棚顶设计了挑高阁楼,做独立的小书房兼客卧,进门处的院区也搭建的玻璃棚顶,做成一个封闭的入户玄关空间,整体房间经过改造后宽敞明亮舒适,功能布局完善,父母回来都不敢认了!

玄关
从院外的防盗门进来就是一个阳光棚顶的不规则封闭院区,做了入户玄关设计,左侧定做一排棕红色实木玄关衣帽柜,内窗下做了换鞋凳、鞋架等,一家人入户的衣物和鞋子、生活物品等都收纳在这里,十分宽敞明亮大气,再搭配一些大小绿植,让玄关空间空气更加清新。

客厅
客厅在进门里侧位置,做了半挑高设计,一半在阁楼之下,但比正常层高略低一些,并以大白墙为主,不显压抑。电视墙上安装一个悬空式电视柜,简约实用,轻盈时尚。


对面摆放了米色2+1皮质沙发,舒适大气,很有档次,搭配两个圆形小茶几,十分得体不显空间拥挤。

客厅顶部安装了吸顶灯,更显层高,客厅挑高处可以看到二层的阁楼的金属护栏及白色实木尖型棚顶,有一种小豪宅的即视感!

餐厅
餐厨区在玄关进来对面位置,外侧是餐厅,靠窗摆放一张方形实木餐桌,上面铺着清新的薄荷绿色台布,搭配两把实木餐椅的坐凳,在这里用餐明亮时尚又清新。

厨房
开放式厨房规划了U型布局的实木橱柜,安装了功能强大、吸力充足的集成灶,并在白色墙砖上安装了置物搁架、挂杆、挂钩等,丰富厨房储物形式,与橱柜组合,满足各类用具、器皿和小厨电等收纳的需要,操作空间十分舒适宽敞,物品归纳井井有条。

主卧

卧室在一层,主卧内布置得很简洁,是小夫妻的房间,白色墙面搭配原木色地板、大床、床头柜、衣柜等,再配上清新整洁的床品,营造出宁静轻松自然健康的睡眠氛围。

次卧
次卧是父母的房间,同样布置得简约舒适明亮清新,配置了舒适的大床和清新的床品等,窗外是玄关处院区,安装了深色玻璃,起到保护隐私作用。

卫生间

卫生间做了内部干湿分离设计,铺贴了浅灰色小方砖和灰色地砖,搭配原木色洗漱柜、镜柜和白色洁具、黑色水龙头、毛巾架等,经典时尚有格调,提升了卫浴空间的品质感和舒适度。

楼梯
餐边柜后侧是通向二层的实木楼梯,底部做了储物柜,增加收纳功能,榨干每寸空间。

书房
挑高书房内定做了与书柜一体化设计的实木工作台,配备了双办公电脑,可以满足夫妻同时办公。而在左侧地面定做了加高地台,铺上软垫,可以充当临时客卧,家里来几个客人也住得下。

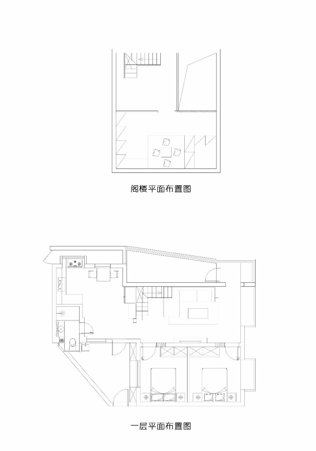
一层及阁楼部分平面布置图
看完这对小夫妻为父母和自己改造的小小平房规划设计,有这样的小复式是不是很让人羡慕呢?