从巴黎的时尚到凡尔赛的金发女郎,法国人的艺术气质中无不透露着精致、高端、奢华。小到烫金的餐具,大到家居装饰,他们把生活演绎成了一颗鲜红的朱砂痣,情绪饱满,爱的甘愿。

记忆将生活剥丝抽茧,罗曼蒂克从来都不是梦幻,它是真实存在着的蓝色大海,时而波澜壮阔,时而温柔圆满。
户型信息
项目户型:别墅
项目面积:350㎡
设计风格:法式
设计团队:飞墨设计组
施工单位:合肥飞墨设计
项目地址:合肥 - 中海央墅小区
▎写在前面
本案业主一直觉得天井是很鸡肋的存在,不知道该怎么利用。显然,这需要专业的设计师给出答案,而在设计师的眼里它却是一个完美的存在。
去量房时有一段小插曲,因为是5层大豪宅,层高很高。从底往上看,沿着光的方向好像很遥远的样子,设计师都看愣了,开玩笑说:“这是来自底层深深的仰望!”


▲量房图
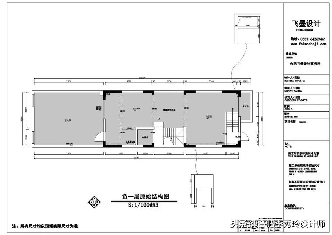
负一层前后对比图

负一层主要用于次要功能区,利用固有的面积打造洗衣房、健身房、休闲区、男业主书房、鞋帽区。

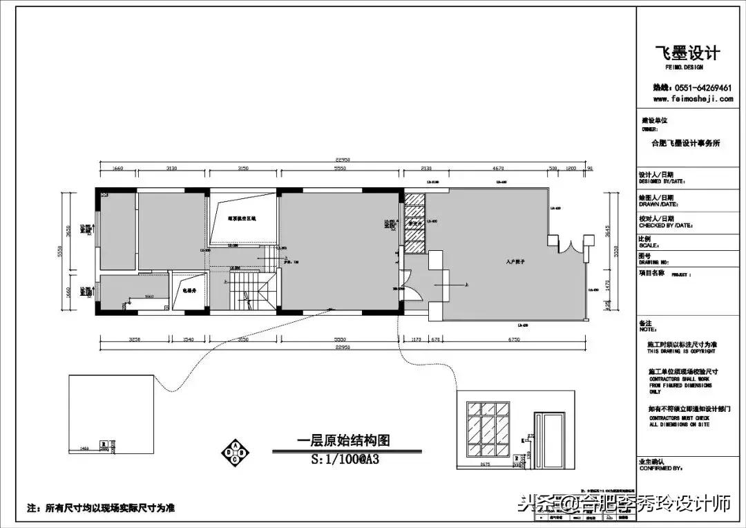
一层前后对比图


1.现浇负一层天井的顶面,三周用玻璃在一层围合成一个自然景观花园,里面种些花草树木,时刻给室内带来郁郁葱葱的生机。
2.打通小阳台,扩大原始厨房的面积,做成中西厨,岛台的作用同时充当餐桌,使整个备餐用餐过程动线变短,布局更加合理。

客厅


白色打底,冷色调营造氛围,辅以温暖的电子壁炉,克制理性的外表下隐藏着滚烫的生活气息。
现浇玻璃景观花园与窗外的四季相互呼应,围合形沙发带着轻奢法式的浪漫底蕴,精致的石膏线条把艺术融入设计,形成强烈的视觉效应。剔除繁杂,还生活一个简洁的灵魂。

木地板与线条的完美结合,饱满的立体简易灯具,烫金的镜面装饰极为耀眼,将洛可可经典的细腻与现代简约相互成全,即使是收纳的壁架,搭配上暖暖的灯带,那种欲说还休的朦胧感也着实让人怦然心动。

厨房


蓝色与绿色相撞,黑白灰不经意的层次。除了配色的拿捏恰到好处,灯光也是处理的极好。
料理台上的灯带,岛台上的吊灯,空间无主灯,360°无死角的照明让厨房的每一寸肌理都清晰展示在柴米油盐里。

中西厨满足居者围炉煮酒的快意,尤其在寒冷的冬季,叫上一大群朋友,各自分工忙碌,一盘盘的菜肴端上岛台。
大家觥筹交错、欢声笑语,厨房不再是一个人的阵地,而是家人朋友共同的生活乐园,连锅碗瓢盆都不自觉的被感染着轻声哼唱为美好的时刻配乐。
二层前后对比图

二层的整体规划是老人房和儿童房,两个房间都是采用完整的套房设计,集衣帽间、卫生间、休闲区为一体,最大限度的给居者带来方便。


儿童房


儿童房顶上有梁,设计师按照尺寸比例分割了方格来弱化梁的存在,又能增大隔音效果。
整体与主色调一致,大气,雅致。同时增加了一些童趣设计,如大象装饰、可以隐约窥见楼下玻璃景观房的趣味窗。同时设有书桌,方便孩子读书学习。
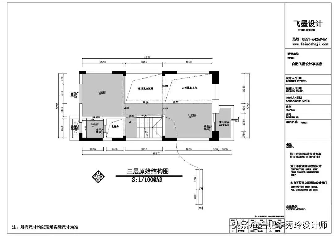
三层前后对比图


三层的整个空间都是为主卧室准备的,把独立浴缸纳入衣帽间,保持良好的通风,最大限度的增加生活舒适性。

主卧


卧室是私密空间,每一个细节的处理都隐藏着设计师和业主的品味。
顶面的异形与床头背景墙的石膏雕花处理承接艺术气质,优雅的床尾凳搭配小茶几,睡前来杯小酌,让酒体的丰富层次散去工作一天的疲惫。

四层前后对比图

四层拆除了一些轻墙体,主要布局是女业主的画室和储藏间。


休闲区

休闲区特意设计成卡座,不管是坐是卧,都可随心而定。

在这次整体改造中,利用玻璃采光顶,打破原始的设计手法,增加了每一层的采光。设计的惊艳不在拆改,而在有意义的拆改!
速食与坚持之间的距离不只是外界的诱惑,还有对专业的热爱。既而,工匠精神才显得尤为可贵。好在,这是一个很好的时代,人生有太多的选择,不要辜负它带来的自由和更多可能。