面积范围:181-320平米
案例户型:公寓
案例风格:新古典
造价:219万
项目简介: 房子为高档公寓,300平米,业主一家四口,蒙古族,对于石材比较喜欢。整体装修风格为新古典,主要材料:金蜘蛛大理石,西班牙米黄大理石,晶啡大理石,木饰板。新古典风格掘弃了繁琐和奢华,并将不同的优秀元素汇集融合,以舒适机能为向导,使风格更加轻松舒适。

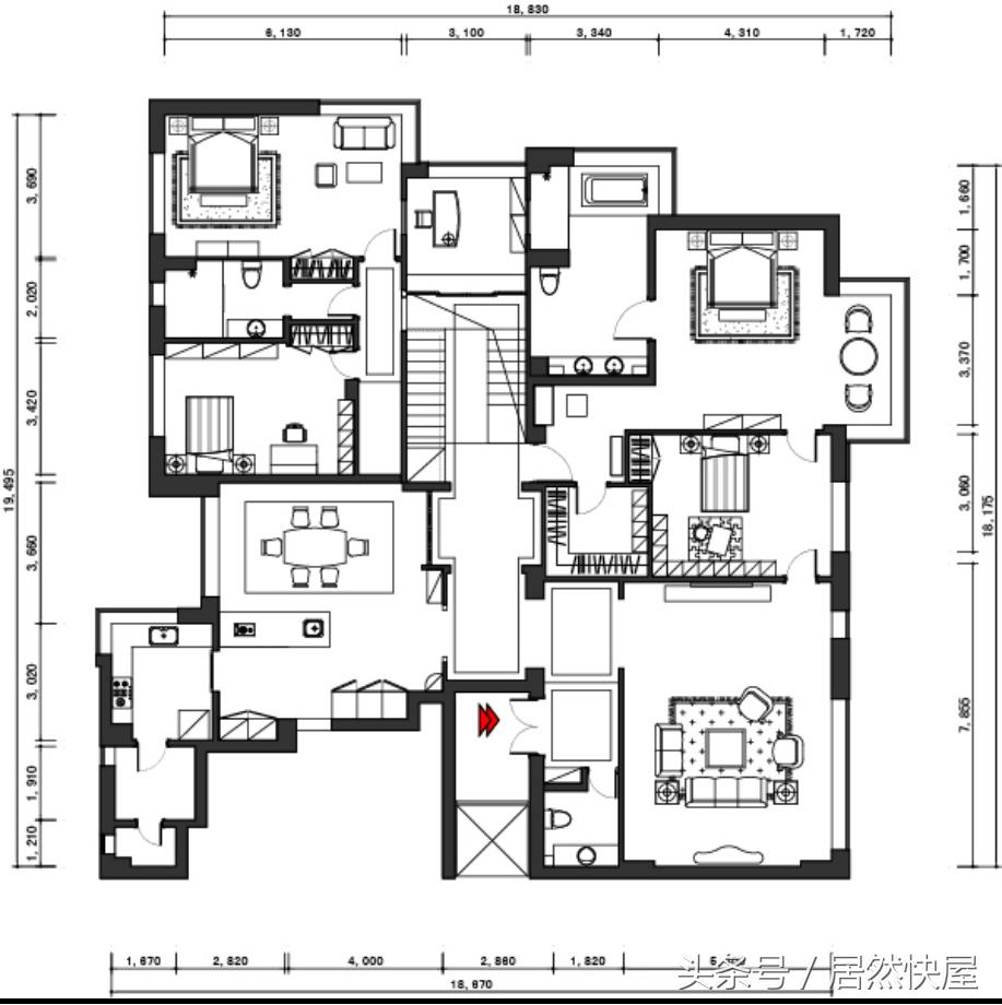
平面图

玄关鞋柜
门厅

走廊

客厅1

客厅2
地面采用石材拼花,用石材天然的纹理和自然的色彩来修饰人工的痕迹。使客厅和餐厅的那种奢华、档次和品位毫无保留地流淌。

主卧

楼梯间
“高级的灰调更容易营造尊贵的气氛,”灰色的条纹地砖、灰色的墙面,而在灰色与木色的楼梯之中,镂空的楼梯则令整个空间一下子生动高贵起来。设计师对于细节的把控更是堪称极致,哪怕是壁画的内容与摆放位置,与地面、墙面石材肌理相呼应,走道水晶吊灯映衬于天花处的花纹,他都亲历亲为,一丝不苟。

书房

餐厅
传承鼎新,以简饰繁。欧式新古典家具摒弃了欧式古典过于复杂的肌理和装饰,简化了线条。它他虽有古典的曲线和曲面,但少了古典的雕花,又多用现代家具的直线条。白色、咖啡、黄色、绛红是欧式风格中常见的主色调。欧式新古典家具既保留了古典家具材质、色彩的大致风格,将古朴时尚融为一体,是新古典家具这一特点的生动体现。

厨房

主卫1

主卫2
设计师简介
臧东莱
教育经历
哈尔滨大学艺术学院(2003-2007)环艺专业毕业 学士学位
北京航天航空大学(2013-2015)土木工程专业 学士学位
任职公司
居然之家-居然快屋装饰
设计理念:家是静谧港湾,使生活在浮躁都市里的我们,找到心灵的归属感。
设计案例:紫芳园,裘马都,大成郡,东湖湾,恒富花园,后现代城,颐慧佳园等
荣誉:
中国建筑装饰协会室内设计协会会员
中国室内高级设计师