目前本公司已经在南天金源小区装修了几十套工地 了哦,很多客户接触下来,只能用一个词来形容:要求高!这要求高就分很多种了,不能为外人道也,当然,能和这么多超高标准要求的客户打交道,并且装修了一套又一套的工地,也不得不对自己说一句:我们可以的。
一波雨季过后,南昌即将迎来春暖花开、日照舒爽的好时节,最适宜装修的日子,亲们,可要记得把握好了哦,在南昌,100平米房子装修到底要花多少钱呢?怎样装,才能将品质、舒适、温馨、大气、格调搬回家?来和设计师聊一聊吧。
·设计师:伍辉强(微信:diguadou888)
·楼盘: 南天金源13-1-3A0X室(看工地可预约,本小区其他户型设计方案均有)
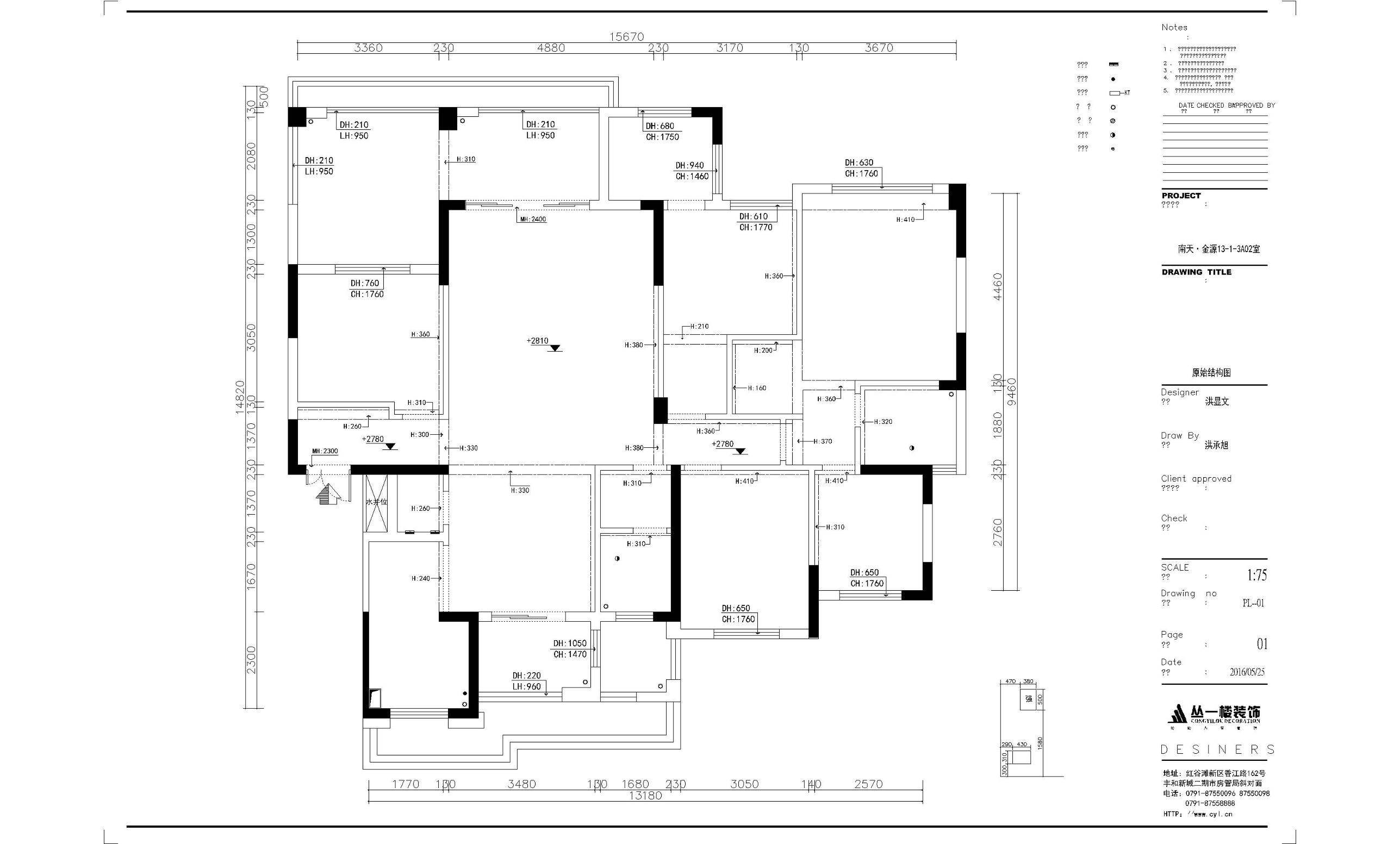
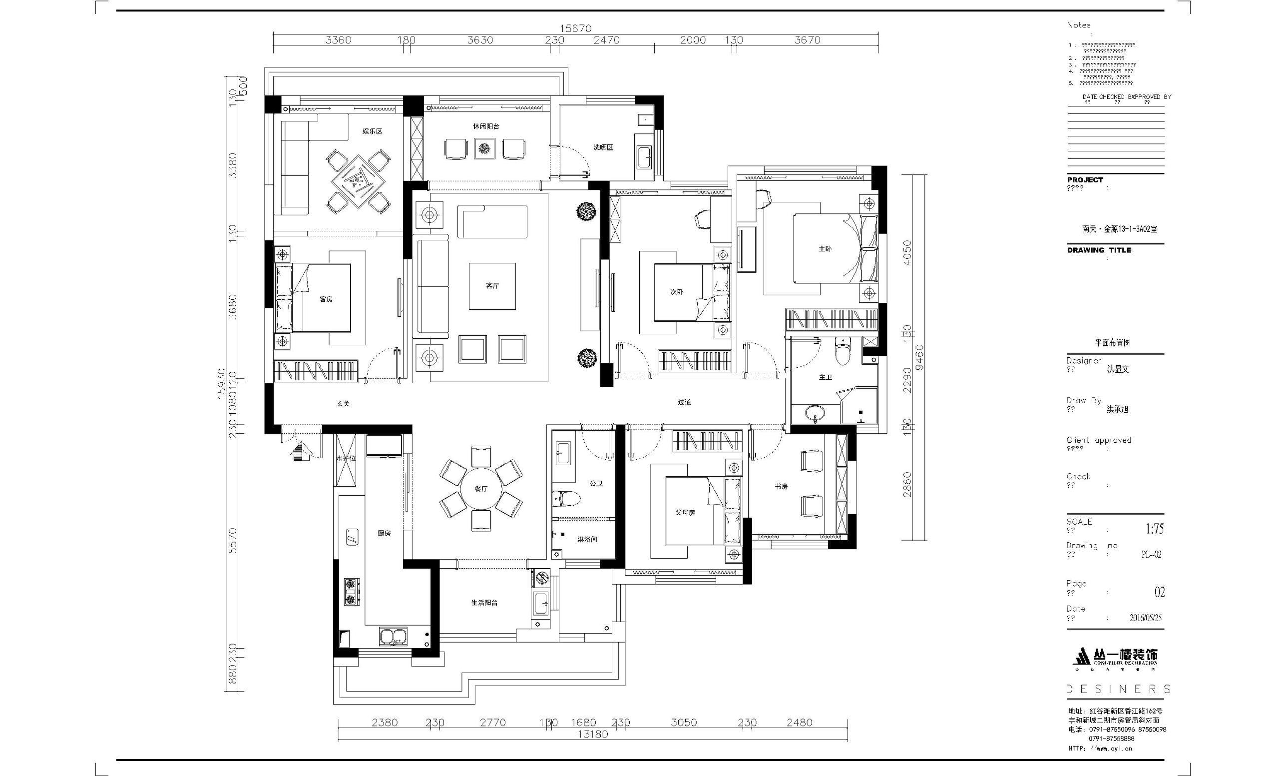
·户型: 5房2厅
·面积:175平方
·造价:12万 (不含主材)
·面饰:墙纸、硬包、地砖、玫瑰金
·主材:地砖、实木橱柜、整装、洁具、实木地板、灯具、五金等

客厅

卧室

原始结构图

平面布置图
所展示工地为正在施工的工地,需要看实景工地的亲,欢迎咨询,南天金源更多户型、不同风格工地正在火热开工中!
南昌各大楼盘近期交房(红谷世纪花园、联发江岸汇景、莱蒙都会、海域香廷、保利金香槟、新力雅园、中骏蓝湾、中央香榭、众森红谷一品、路通沁园、绿地国际博览城、万达旅游城....)的业主,赶紧GET起来吧!
-------我是华丽丽的分隔线--------
设计师微信:diguadou888 (仅限南昌)
更多案例:
老乡在南昌铜锣湾这里买了个四房 欧式新古典霸气的让我想换房了
莱蒙都会105平新中式,就喜欢这个调调,还是大学老师推荐的呢
联泰香域中央新中式风格混搭 没有胆量尝试的还是绕道吧
绿地外滩公馆小三房为了多点利用空间 还是把主卫改成衣帽间了
英伦联邦现代简欧风 姐姐的品味还是这么赞 俺不想回家了
南昌中大城430平新中式风 大房子这么装才“高逼格”
邻居们都在看我家的装修效果,这个美式混搭,我看行
装修这套国博城的房子,才让我知道了自己装和装修公司装的区别
姨妈在联发君领朝阳的145平四房简欧风 生活就该如此享受
陆院大家园120平三居室 还是现代简约风看起来舒服