项目名称:济南融创·中新国际城精装样板间
项目面积:136㎡
项目地点:山东·济南
建成年份:2018年
项目类型:精装样板间
设计风格:新中式风格
设计负责:杜善刚
主案设计:刘婉琳、张昕
设计理念
沉稳理性、精致典雅、随性自然。
山水墨韵,笔锋由浓转淡,在炊烟袅袅间扬起隔江千万里的大气。提笔而作,一圈一圈沁开来,染透了黑白的山水。
去掉传统的、刻板的形式“美”的标签,纯粹的,有旋律的“构成”依然向我们诉说着关于“东方美”的故事。
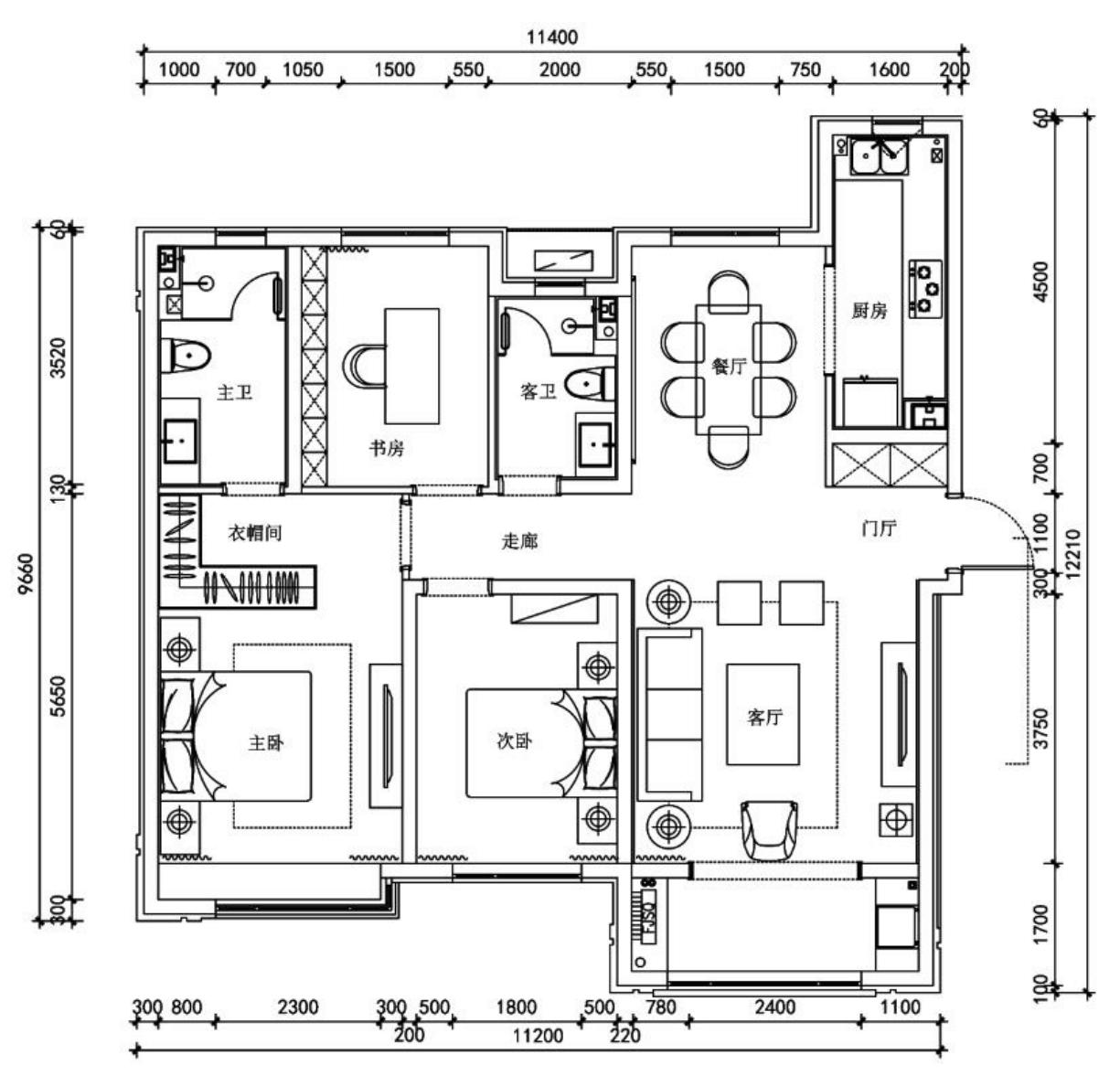
平面图

实景照片

本案以大地色为主色,它是以棕色、米色、卡其色为主的大自然色系。它带有一种天然的复古气质,作为高级的中性色它不刻意流行,却一直是时装界和设计界的宠儿。
蓝色有一种与生俱来的治愈感,让人情不自禁地陷入宁静与自然中,搭配大地色让整个空间干净简单却不平淡。一丝点缀就能让人眼前一亮,正如一股清新的风轻轻地略过脸庞。










客厅沙发提炼传统青花瓷蓝与真丝、绸缎、等布艺材质相搭配,以融合均衡的处理手法打破传统表达过于古板的处理手法,烘托、突显中式空间的视觉效果及浓郁生活氛围,使整体空间富有层次感、品质感。
白色的花艺与大地色相互呼应,即使不引入自然光,也能轻松地提升空间的亮度和通透度,加上色调的轻重缓急,确保了空间的纯净与明朗。





餐厅与客厅相通,家具款式呼应空间的简洁,线条亦格外干脆,似乎没有一丝多余,看似不经意的搭配之下,一切浑然天成。
一说起中国风,你肯定会先想到“中国红”。其实,“蓝色”也是很中国风的颜色。餐厅装饰画所使用的灰蓝,是那么的浓郁深邃,典雅大气,很符合中国风的气质。







卧室家具及饰品的选型上,我们严格把控尺度,使空间层次辈出,错落有致。色彩上,减去艳丽的饱和度,大面积是暖暖的大地色,让空间充满包容性。而在材质上,绸缎的面料、水晶等来烘托空间的雅致。
女儿房以“琵琶”为空间主题,以灰蓝色会基调,轻柔舒适,少女感十足,恰到好处的饰品轻柔地点拨,营造一个不愿醒来的温馨美梦。


书柜的隔间里,陈列着主人乐于展示的心水之物,每当有客来访,如数家珍的故事桩桩件件,友好的书房弥漫着文化气息。

工程档案
开发单位:济南中融置业发展有限公司
软装设计:香港IN HOUSE装饰设计有限公司
软装陈设:香港IN HOUSE装饰设计有限公司
用地面积:项目总用地面积为600000㎡
项目规模(总建筑面积):总建筑面积2000000㎡
容积率:2.40
绿化率:36%