每个人的欣赏眼光不同,造就了不同装修风格。本案例业主是一名从海外留学回归的80后美女,因在欧洲留学期间喜欢上欧式风格,回来后专门找到擅长这方面的设计师,把自己家打造成简约的欧式风格。
装修套餐:528套餐+个性化设计
装修风格:简欧
小区面积:140平米
小区户型:三室两厅两卫
装修造价:13万

客厅效果图

客厅效果图

餐厅效果图

客厅远景图

餐厅及走道

走道

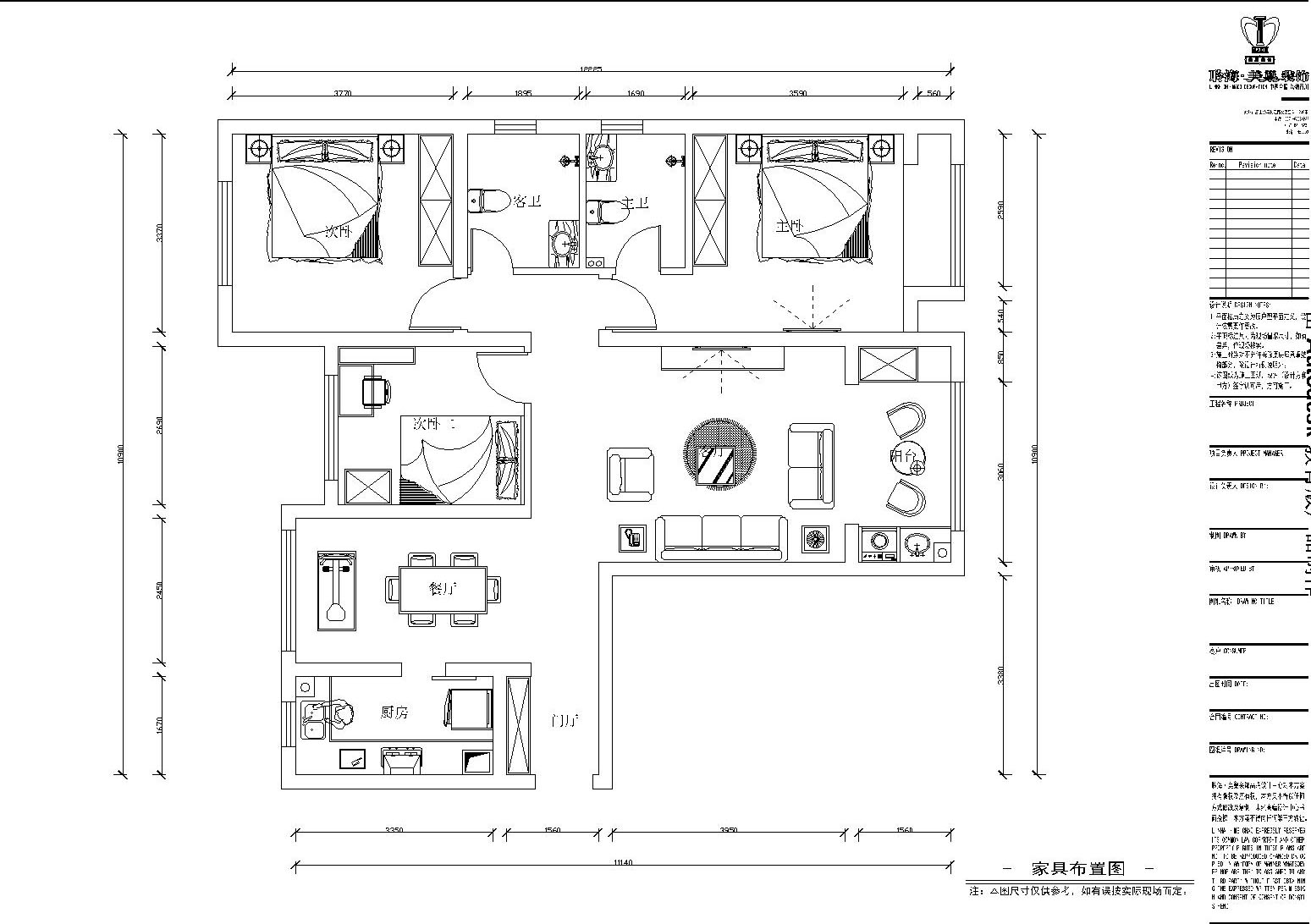
户型布局图

客厅
装修咨询:(13673657122)可加微信
美巢装饰:华老师
可免费量房 出方案 做报价
全国以下各地市有店面
-
北京市
-
上海市
-
河南省
-
合肥市
-
江门市
-
福州市
-
济南市