二娃说
对于买房人来说,最害怕遇到的事情是什么?
可能是看上某套房子,没买,然后涨价了!也可能是,买完某个楼盘后,发现小区规划突然改了......

刚刚,二娃在广州市规划和自然资源局增城区分局网站上,发现了一个重要信息: 翡翠绿洲改规划了!

怎么改的呢?我们看完整规划图!

什么,还是看不清啊?行吧,我继续给你们放大看!

总得来说,相当于两块地更改了规划。
地块一:原本规划了2栋6层高的会所,改规划后,变成了18栋4-6层的联排别墅。
地块一,原来的规划是这样的!
▼

地块一,现在的规划是这样的!
▼

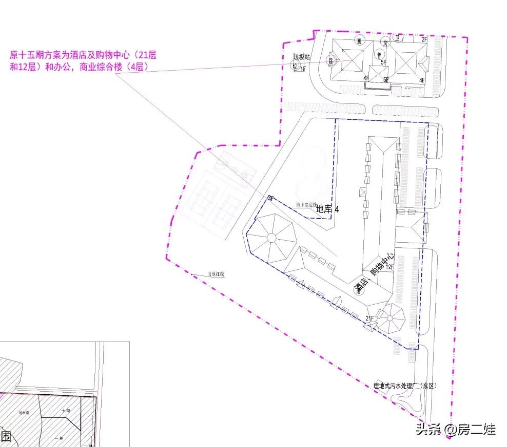
地块二:原本规划了酒店(21F)+购物中心(12F)+办公楼+商业综合楼(4F)。改规划后,变成了1栋酒店(5F)+1个会所(18F)+5栋高层住宅(32F)+4100㎡公建配套。
地块二,原来的规划是这样的!
▼

地块二,现在的规划是这样的!
▼

对此,你们怎么看? (这篇文章不知道能活多久,但我觉得有必要发下,建议点赞+截图保存)