金九银十抢收季过后,北京新房货架正在变空,随着奥海明月、亦庄橡树湾、海淀幸福里、颐和金茂府、香山壹号院、云景台等热盘的开盘,买房人对待售产品的期待也在逐渐被拉高。
好在,这两天又有新项目传来消息了。
其中两个是北京的“准豪宅”项目,它们分别是2019年5月份恒基摘下的孙河不限价2902-88地块以及同年9月份恒基联手天恒拿下的另一宗不限价2902-31地块。这两个地块的项目方案公示了,相信距离亮相也不远了。
另一个是中海稻田项目中海寰宇视界,前段时间刚刚公示了案名,这两天户型图也出炉了。总得来看,这个项目弥补了房山楼市中“临铁新盘”较少的缺陷,而且还有不少低总价的上车产品,住在房山或者工作区域在北京西南部的朋友可以关注下。
1
先来看下恒基这两个“准豪宅”产品。
孙河恒基地块打破了北京豪宅土地市场两年多的沉寂,也是从这宗地块开始,北京豪宅开始接二连三上新。

虽说是这批新晋10万+豪宅里拿地最早的,但是动作却是最慢的。
1、恒基独自拿下的不限价地块位于天瑞宸章的东侧,禧瑞春秋北侧。在孙河区域内是距离温榆河和京密路最近的,交通和环境不错。该地块容积率为1.5,建筑高度35米,绿地率30%。

从公示的效果图来看,这个项目产品打造的应该是5-7层的洋房以及合院产品。

2、、恒基与天恒联合拿下的地块,位于瑞悦府的东侧,东北侧约700米是地铁15号线孙河站。北侧待出让的M地块规划为商业用途,西北侧已经出让的L地块由城建集团和石榴集团拍下,政府要求做高端商业,低密度、自持,所以未来开发模式类似蓝港和祥云小镇,更偏休闲舒适一些。

从公示内容来看,该地块可能打造的是5-6层的洋房。外立面以大面积的玻璃幕墙与金属铝板为主,还有弧形的270°转角采光,让人非常期待。


孙河是距离城市核心区域最近的最后一片低密住宅用地,加之自然资源丰沛,得到政府的重视,首创、远洋、中粮、泰禾、懋源、保利等齐集孙河,这里注定会成为优质别墅孵化器。但是,孙河整个区域只规划了11块低密度的住宅用地,这两宗不限价地块是孙河最后的住宅产品。
它们的出现让被限价压抑已久的孙河重回北京豪宅队列,也是打算入驻孙河的朋友最后的机会。
2
中海稻田项目寰宇视界的户型图发出来了,一居,两居,三居,四居都有,这是中海又一个大满贯项目。从寰宇天下,到寰宇时代,再到寰宇视界,三次升级户型。
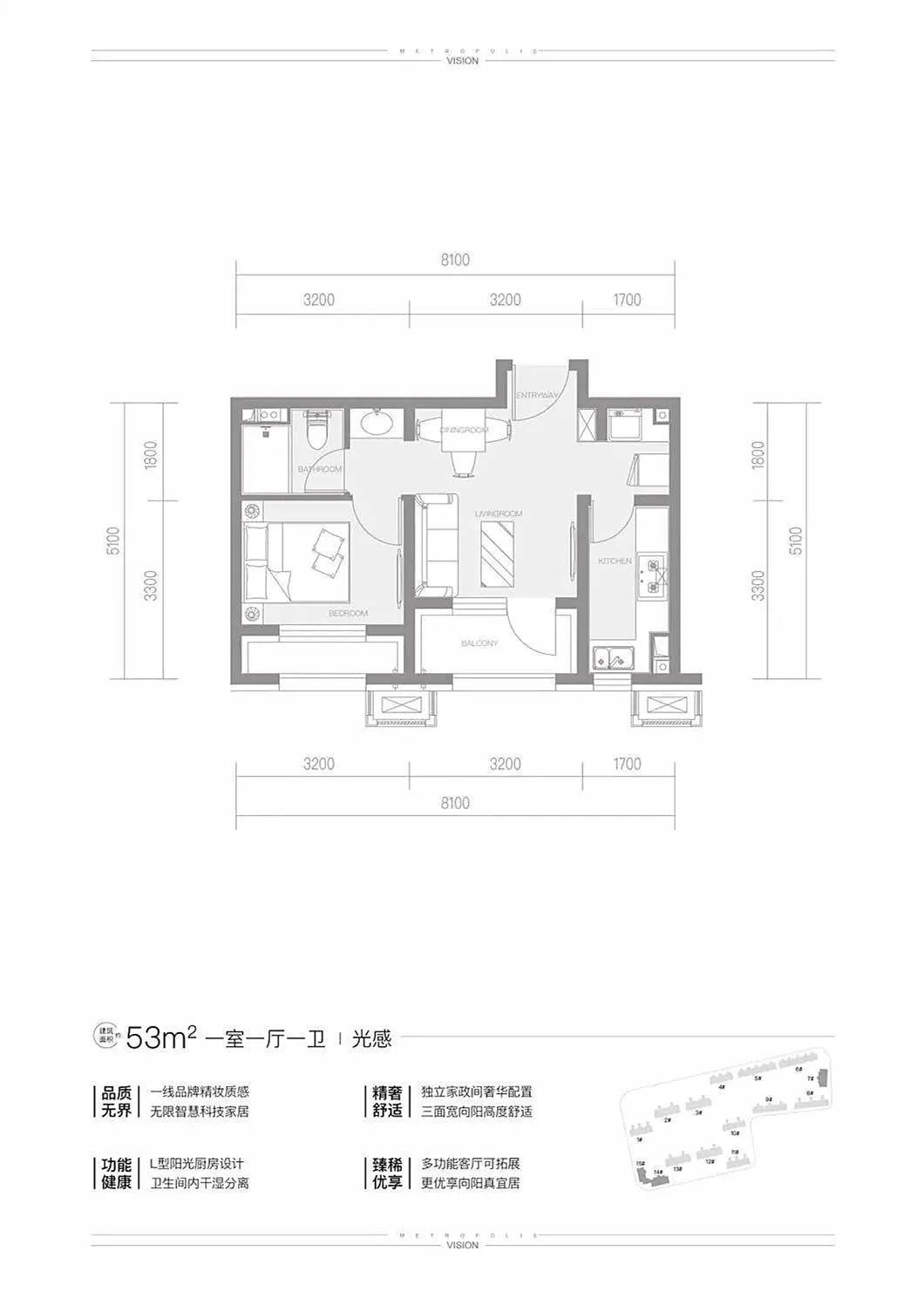
这次更是让人惊喜,出了三面宽的胖子一居。53平米一居整体面宽有8.1米,主卧还带飘窗,客厅还有阳台,卫生间干湿分离。目前唯一不明确的就是朝向,不过单从户型格局来看,这是帮主这两年看到的最出彩的一居小户型。

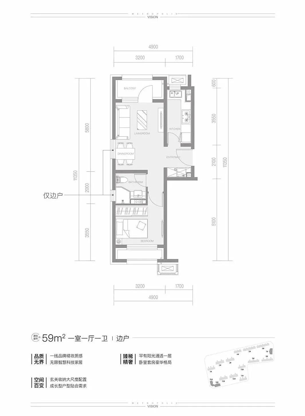
除了53平米三面宽的一居,此次曝光的还有59平米一室一厅户型,虽说是通透的格局,不过进深太长,面宽过窄,通风效果大大减弱。

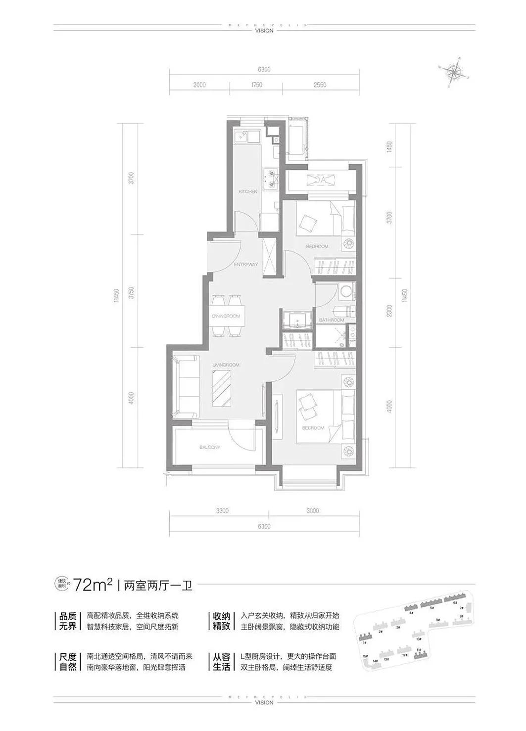
72平米两室两厅为南北朝向,从功能来看,两个卧室面积都不小,其中南向卧室带有飘窗,北向的设备阳台按照中海一贯的操作,极有可能可以利用起来。餐客厅一体化,进门还有玄关的设计,卫生间干湿分离。又是一个不错的小面积段户型。

96平米三居是南北通透的三面宽朝南设计,主卧套房非常豪华,不仅有衣帽空间,而且卫生间还有浴缸。从户型图来看,客厅带阳台,而且客厅部分还有一个单独的家政空间,目前市面上最流行的元素,都能从这个户型中找到影子。

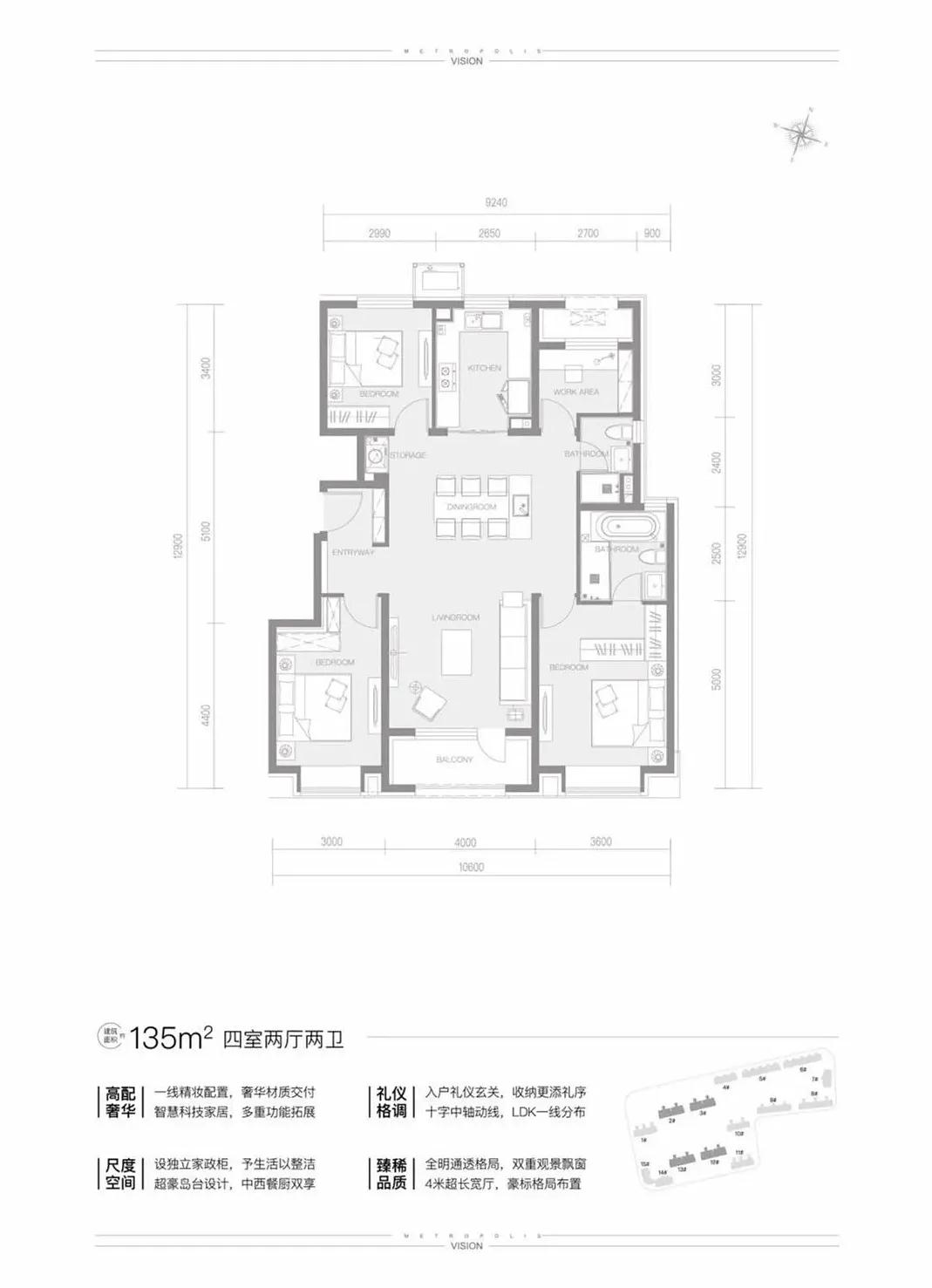
135平米四居也是南北通透的三面宽,从户型可以看到餐厅部分非常敞亮,这为家庭后期预留了很大的弹性,这部分空间不仅仅可以用来就餐,也可以用来运动学习等。

这个项目位于房山稻田站,是房山这几年比较稀缺的临铁盘,三站就进城,明显瞄着总部基地丽泽商务区。价格听说在三百万起,折合均价大概五万多,刚需入手一居两居也在承受范围之内。

这个项目估计热卖是不成问题的。目前比较欠缺的是片区周边没有大型商超的配套,逛商场还得去长阳半岛或者篱笆房奥莱。