
4月份之前,大家基本都没空关注买房这事儿,毕竟“健康”才是一切的根本,房子、消费都得靠边站。
4月复工后,楼市也慢慢复苏,但楼市的分化在这次疫情之后变得更加明显,不同区域之间、不同楼盘之间,更有价值、更有潜力的产品开始越卖越有自信,而另一部分优势不明显得项目却愈加惨淡。于是有那么几个项目开盘照样俏销,也有一些降价了也开局惨淡。
比如青山滨江区的——御江壹品·青山樽,默默的拿证,计划月底推几百套带精装房源,降价了292元/平,但是依然改变不了不温不火的关注度,自从售卖后就进入平销期,目前买它基本没有购买难度。
御江壹品·青山樽均价2.23万/平,比隔壁同样带装修的中冶·39大街项目(2.55万/平)便宜了近3千/平,甚至有的带装修房源比同区域的毛坯盘还便宜。
看似价格优势明显,按理说应该是“隔壁杀手”般的存在,可售卖情况差强人意。到底怎么回事儿?今天一起来看看!
N0.1 项目同青山印是亲“兄弟”,板块整体供过于求
从区位上看,御江壹品·青山樽位于青山区临江大道与抚顺街之间,建设三路交汇处,属于青山滨江商务区。

项目的北侧是青山江滩、临江大道;南侧是抚顺街和中冶·39大街项目之间仅隔着一条小马路,西侧是建设三路以及御江壹品商服地块,东侧是建设四路,联泰香域水岸项目。
项目和青山印是亲“兄弟”,但是御江壹品·青山樽比青山印距离长江的水岸近一些。
关于项目当年拿地
在2015年8月28日,御江壹品所在的青山滨江豪华组团地块曾因无人举牌遭流拍。同年11月26日,该地块重新编号为P(2015)148号地块再次挂牌出让。出让总价323000万元,较此前报价上涨3300万元,楼面地价约为4087元/平。
经过2家房企竞拍,P(2015)148号地块成交总价372500万元,成交楼面地价4715元/平,由武汉和纵胜地产有限公司竞得,溢价率15%。

P(2015)148号地块位于青山滨江商务区,地块由6宗小地块组成,分别为D-1地块、D-2地块、39-1地块、39-4地块、E-1地块、44地块。


从图中可以看到,地块被铁路走廊、建设二路、建设三路以及一块空地割裂开。商业是临江的一个独立地块。
地块要求
1、建成后引入全球500强企业并签署协议
该宗地块竞买要求显示,武汉国土资源局要求竞得人项目建成后引入1家以上(含1家)世界500强企业的省级以上区域总部、引入3家以上(含3家)全国性金融机构,并签署承诺函。
2、第二次挂牌降低高度、取消精装房要求
对比以往土地竞买要求来看,武汉国土资源局也是第一次提出如此严苛的要求;然而与之对应调整的是地块上建筑物层高。
2015年8月挂牌的P(2015)066、067、068号三宗地块中,要求竞买人在拿地后建起1栋350米、1栋300米、2栋200米、1栋150米以上高度的超高商务楼群,且地块范围内普通商品房必须为精装成品房(主次卧、客厅、餐厅等房间地面、墙面、天花板,卫生间和厨房洁具等全部安装完成)。
然而再次挂牌后,D1地块中的350米超高层降至1栋250米+140米,E1地块中的300米超高层降至220米,D2地块中的200米超高层降至120米,44地块中150米超高层地块降至100米。
3、商用建筑面积的比例有所降低
原来规划的E-2商服用地净用地面积约1.6万平,建筑面积约9万方平,建筑高度不低于200米,后来取消,变更为编号为39-4、净用地面积为22830平,总规划建筑面积不大于10.3万平的住宅用地。
整体看,总建筑面积由之前87万方变为最大建筑面积不超过79万方,总体量缩水8万方。但P(2015)148号地块中,商服面积从43万方缩水至32万方,但住宅建筑面积维持原样,最多不超过44.66万方。
壹品·青山樽的地块位于青山滨江商务区,是青山新开发的板块,虽然有江景资源但是周边没有和平大道沿线的配套成熟。

整个板块供应项目很多,区域内的项目基本都没有开盘日光,极个别拥有配套优势、学区优势或者江景优势的项目去化情况好一些。
N0.2 距离青山的交通利好都有段距离
5号线和12号线,过江隧道是青山区的几个交通利好,项目周边最近的地铁站是5号线(预计2021年通车)的建设二路站,距离项目大约1公里,5号线可以和在建的12号线在科普公园站换乘。

项目和地铁12号线以及过江隧道都有2公里以上的距离。

周边的公交车也不太“给力”,距离项目最近的公交站是抚顺街建设三路站、建设四路站,只有16路、368路两条公交线路,而步行800米左右到和平大道上的和平大道建设二路公交车站大约有10多条公交线路。
项目周边道路比较窄,比如抚顺街和建设二路、建设三路都是双向2车道,开车出行不是特别方便。主干道是和平大道和临江大道,目前主干道红绿灯很多,上下班高峰期易堵,不过项目位于武汉的二三环之间,通过二三环线以及和平大道、临江大道能够方便的通达汉口和武昌核心商圈。
N0.3 周边生活配套比较齐全 教育配套是亮点
项目自带有商业地块,但是地块和居住板块分开,其次商业地块面积不大,所以更多的商业需求需要依赖于周边的大型商业体。比如众圆广场,八大家红坊里、印象城购物中心、奥山世纪广场等。
小区规划有一所幼儿园,在项目南侧约150米处(江南春城旁)规划了吉林街小学新校区,目前该小学已经快建设完成,传言最早有望于2020年9月投入使用。这也是项目的一个重要的利好,因为吉林街小学算是青山区小学当中教学质量前三的学校了。

新增加的江南春城校区,是吉林街小学的新校区。2019年划片时建设二路片的江南春城、中建开元公馆、联泰香域水岸、依江畔园等社区全部都对口该校,从而结束了建设二路片新房学区差的历史,而且初中大部分对口的是任家路中学(重点中学),(具体的对口情况以孩子入学当年实际划片为准)。


青山休闲配套比较多,御江壹品·青山樽项目北侧是青山江滩公园,它全长7.5公里,规划有游泳池,篮球场,网球场,足球场,运动乐园等市民健身设施,也是2019年世界军运会沙滩排球赛主场地就在江滩公园。项目的东侧500米左右是和平公园,2公里左右还有科普公园、南干渠游园。
不过区位上也有一些不利因素,比如项目东南角位置有个再生资源回收站,从路边走过时会有刺鼻气味传出。
N0.4 已推楼栋不临江
御江壹品·青山樽规划用地面积约8.7万方,总建面约46.5万方,共规划有16栋住宅与1所幼儿园。
整体被铁路绿道(规划中)及公共道路分割成四个组团,后期会分开管理。目前所推的14-16号楼并不是江景房,而且临近旅顺街有一定的噪音影响。
从备案价来看,项目15号楼备案价约19656元/平另加3000元/平装修,16号楼备案价约18720元/平,另加3000元/平装修,这个价格比前期的14号楼差不多下降了292元/平。

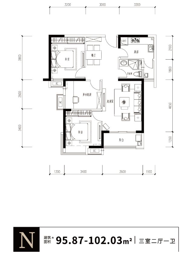
建筑面积约96-102平 3房2厅1卫的N户型

N户型位于14、15、16号楼的南向中间位置,是传统的全朝南设计的户型。
优点:南向的厨房、客厅和卧室都带有阳台或者飘窗。
不足:通透性不佳,餐厅采光一般。
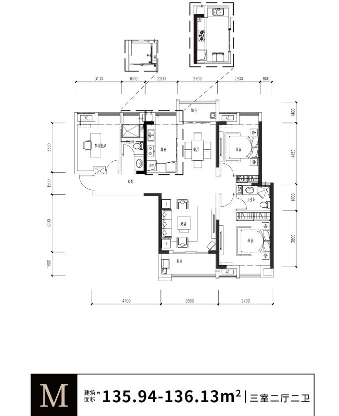
建筑面积约136平 3房2厅2卫的M户型

M户型位于14、15号楼单元相连位置
优点:南北通透房源,并且是对开的南北双阳台设计,采光通风效果好。
不足:动静分区不明显。
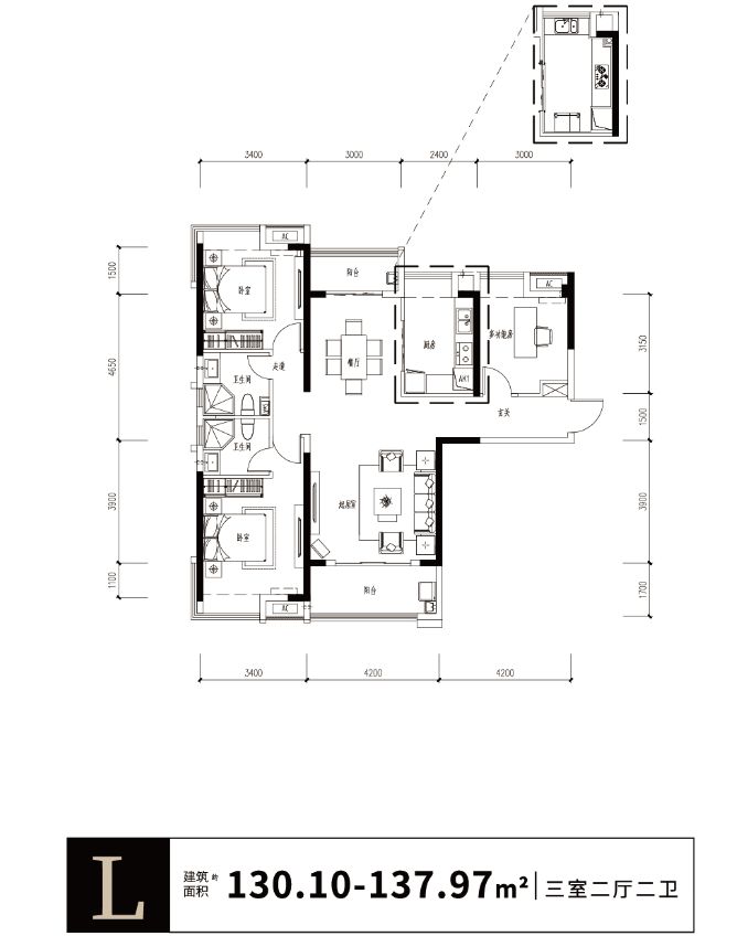
建筑面积约130-138平 3房2厅2卫的L户型

L户型位于14、15号楼边户以及16号楼的东端头位置
优点:南北通透房源,对开的南北双阳台设计,拓展面积较多。
不足:动静分区不明显。
建筑面积约130-138平 4房2厅2卫的L户型

P户型位于16号楼的西端头位置
优点:南北通透设计,不仅是南北双阳台设计而且是三面采光,每个房间都带有飘窗,拓展面积较多,主卧是带有卫生间和步入式衣帽间的套房。
不足:过道空间较多。
整体来说户型比较中规中矩,没有特别奇葩但也没有特别出彩的地方,虽然项目所推的户型不少但面积选择较为单一,除了建面约95-100平的户型以外就是130平以上的大户型,整体的购买门槛不低,选择余地较小。
综合点评:
①滨江板块是青山区现阶段重点发展以及政策倾斜的板块,不过目前配套不是特别完善便利。
②项目位于2-3环之间,自驾较为便利,过江隧道和两条地铁线的修建将会为青山滨江区的交通增力不少,不过御江壹品·青山樽同最近的地铁站也有1公里左右的距离,只能勉强算是地铁盘。
③项目的价格和周边几个楼盘对比有一定优势,但是放眼武汉来说并不是特别“实惠”,而且青山区域和同环线的其它区位比起来在板块活力逊色不少。
④项目虽然是滨江地块,但是北侧隔了个公园绿地,而且所推楼栋并不靠江,所以这个临江优势对于现在所推的房源来说基本可以忽略。