厦门糖丁室内灯光

以糖丁摄影所倡导的愉悦的玩耍拍摄为出发点,我们将对儿童的爱与关怀的理念植入室内空间及展陈设计,令使用者能以轻松的姿态去探索整个空间。每个人的梦境都入驻着一个五彩缤纷的世界。在本项目中,设计团队通过柔和、雅致的色彩,营造出一个具有梦幻感和故事性的空间,带你体验一场童梦之旅!项目位于美丽的海滨城市-厦门,宝龙一城西塔,占地面积600平。本案设计要服务于儿童摄影,儿童是第一主角,作为设计策划主体视觉,我们希望把一个美好世界带入儿童的现实,这既是品牌方糖丁摄影希望传递的,也是我们从设计角度进行的表达。在这里感谢项目方的配合,让作品能最终还原呈现出来。

接待大厅,灵感来源于牛奶所碰撞的流体设计,整个空间呈现牛奶的质感。马卡龙饼干样式前台,随意堆叠的设计 ,瞬间抓住你的眼球,粉嫩的渐变色,一圈圈,融进心里,在每个孩子心中都留存下美好。从童话到童画,设计师通过儿童的手绘图案,演化成天花吊灯的原型,太阳、云朵、彩虹,还有童年的纸飞机。为了呈现最佳的效果,光也是测试了不同材质吊灯和效果,最终以透明亚克力结合LED灯带,变成现有吊灯设计。这些生活中简单的图案元素以一种梦幻的方式,呈现了对于每位孩子梦的世界的畅想。童年记忆中,你是不是也想采一块洁白的云朵?有没有一只长颈鹿探出头来和你玩耍?晴空白云,背靠木马,牛奶般流体空间设计,呈现梦幻童真的拍摄乐园。设计师希望创造一个能激发人们想象力和好奇心的体验空间,既能让孩子喜欢,亦能平衡销售氛围。在这个空间中,以成人洽谈为主要功能,双向的空间视野让处于交谈中的父母和玩耍中的孩子彼此拥有安心的感觉。

通过家私的选择与配色,处处呈现柔软舒适的细节,简洁不失趣味性,防撞无尖角的设计更多地考虑了儿童在空间中的活动安全,让他们尽情玩耍的同时,家长也能够在旁安心洽谈。实现了糖丁摄影用爱包围的概念,强化来访者的情感共鸣。唯美的3D星空吊顶,趣味多彩的配色,圆润、俏皮,可爱的造型卡座空间,铜和水磨石月亮图案地板,带给孩子多元却不失考究的梦幻世界,缤纷波波球,室内游乐场,一处为家长量身定制亲子加温的理想栖息地。长廊设计的巧妙在于白色的视觉展现,在弱化空间界限性的同时,突出了饰物、软装、人,对于色彩感受的对比,这种留白的处理也让来访者有另一番体验。黄色光泽的泡泡被儿童造型小人吹起,漂浮长廊半空,吹进我们的记忆,这是设计师对儿时的怀念,是每个心中儿时的童话。创意吹泡泡长廊及等待区,游乐场般的喜乐感,博物馆似的新奇感,探寻儿童世界里的各种灵气。

▲厦门糖丁儿童摄影室内实景图

▲厦门糖丁儿童摄影室内实景图

▲厦门糖丁儿童摄影室内实景图

▲厦门糖丁儿童摄影室内实景图

▲厦门糖丁儿童摄影室内实景图

▲厦门糖丁儿童摄影室内实景图

▲厦门糖丁儿童摄影室内实景图

▲厦门糖丁儿童摄影室内实景图

▲厦门糖丁儿童摄影室内实景图

▲厦门糖丁儿童摄影室内实景图

▲厦门糖丁儿童摄影室内实景图

▲厦门糖丁儿童摄影外部夜景实景图

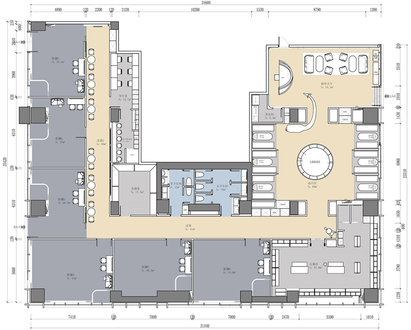
▲厦门糖丁儿童摄影平面图
项目标签
文章分类:室内灯光
区域位置:中国 福建 厦门
设计公司:品界设计
内容转自:LIGHT UP
©版权声明:平台尊重作品版权,精选作品均已注明作者和来源,网友分享作品属于原作者所有。
若涉及版权问题,请及时联系我们删除或修改。如需转载、链接、转贴或以其它方式使用本稿,须注明来源作者。