
温煦日光徐徐流淌,烘暖专属北欧的幸福室内温度,一转过身,带有朴实日式调性的餐厅悄然映现,成为宁静午后沏一壶茶、品尝生活慢时光的静谧场域。将曾留学日本女主人对于素雅和风的念想,与夫妻俩收藏童趣公仔模型的嗜好,以自然素材细腻揉合呈现,使空间每个角落皆是风景,正是擅于阐述空间独特性的恒岳设计蔡岳儒总监巧心之作。

Q:跟我们聊聊恒岳设计吧!
「动线的好与坏,牵扯到全室格局的配置。」蔡岳儒设计师说道。于是将日式精辟的手工艺术融入台湾的设计与工程,透过点线面方式将结构、收纳、光线与动线相互融合,勾勒出一笔流畅的空间视感。 Q:曾经留学日本的经验,对设计工作有何启发?
相较建筑外观为导向,继而决定室内轮廓的做法,日本则从日照程度、动线规划甚或空调位置等都有严谨规范,由内而外发展出建筑外型。基于此,对基本住宅设计格外重视,毕竟只有良好采光与动线,才能拥有舒适生活环境。

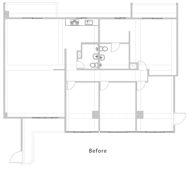
个案基本资料
屋龄20年/室内89.3㎡/格局3房2厅2卫/居住人数2大2小

<屋主需求> ・拥有钢琴摆放空间
・规划两间等尺度的女儿房・习惯在厨房研究料理,希望有专属工作平台・珍藏日本知名插画家的签名画,需有地方挂放・喜欢搜集各类玩具,需有展示及储放空间 <各别空间>1.玄关设计:
温暖复古花砖地坪洋溢自然灵动气息,设计师沿着玄关不规则轮廓,依序摆置具沉稳木色的鞋柜、原木矮凳并搭佐木百叶帘,使清新童趣氛围挹注一丝沉静调性。

个案基本资料
屋龄24年/室内175.2平米/格局3房2厅2卫/居住人数1大

<屋主需求>
・开阔明亮的客厅、餐厅与厨房,呈现放大延伸效果。・本身有着收藏吉他的兴趣,希望拥有合适展示空间。 <各别空间>1.客厅设计:
宛若一张柔软布幕轻覆于天花,圆润起伏线条细腻裹着贯穿于中央的横梁,虚化结构厚重量体外,藉由律动曲度维持既有净高,并巧妙露出吊隐式冷气出风口,使敞阔的客餐厅均具备良好空调环境,在无形间将公共区域相互串连,开启清朗透亮的全景视野。

让女主人得以随心情移动家具、在台面布置季节植栽花束或杂货小摆饰,成为家人归返时的温暖问候语,当日光筛过帘片流泻而入,缕缕光影洒落其中,烘托出温暖柔和的返家情景。 2.客厅设计:
基于平时会在家中弹奏乐曲,增辟一道防火隔音内门,确保悠扬琴声不造成邻居困扰,也予以住家多一重安全保障。敞开门后,简白基调搭配温润木质地坪,加上波纳蓝木沙发、几何地毯与大量浅木调,框塑出清爽明亮的北欧风情景。

3.餐厅设计:
当目光移转,一幅寂静和风画面席入眼底,将衔接客厅与餐厅的过道,采以女主人指定的粉嫩藕紫色调温和划分,并定制具有圆润语汇的玻璃壁柜清晰界定,末段端景所挂饰的画作,正是设计师对于用餐区风格的灵感来源。

来自女主人珍藏多年的亲笔画作,是日本知名插画家加藤真治老师所赠与,将贵重之作摆放在全室核心之最,不论置身何处皆能轻易聚焦观赏,同步衍生出沉稳内敛的日式调性,透过原木餐桌椅、水纹玻璃木滑门,烘托日本古朴风情。一旁则活用立柱纵深揉进钢琴与餐边柜,提升餐厨收纳机能外,使餐叙光景多了一缕优美琴声作伴。

4.厨房设计:
推开滑门,原先呈现锐利三角状的畸零格局,经由设计师细腻布局,透过定制方式拉齐轮廓横纵轴线条,框塑出宽裕且流畅的烹饪动线,同时依循柱体深度嵌入一道玻璃上柜,使收藏的日系食器、杯盘器皿皆能妆点于此,并展开一隅精巧台面,予以女主人专心研究料理的小天地。

5.主卧室设计:
将通往私领域的走廊增添画轨设置,使全家人共同完成的拼图裱框得以摆饰,在串连空间同时也细腻串起一家人的温暖情感。甫进主卧室,素净淡雅的花卉壁纸温和蔓延全室,烘托温馨惬意的睡眠情境。

鉴于女主人本身有在经营贩售日本杂货及荷兰米飞兔灯饰,因此设计师将既有复古化妆桌、简约童趣立灯做为摆设元素,使日常填满专属自身的生活痕迹。 6.女儿房设计:
将格局重新调整,把原有的和室与卫浴相互连贯,辟出敞阔的卧房空间。针对入口动线几经思量后,决定以单一入口设计发挥坪效最大值,并挹注对称手法使双间女儿房等比开展,同时植入一道收纳式滑门形成分野。


湖水蓝绿相映着简*粉白**嫩,佐上风格相异的把手配置,细诉着姊妹俩独特鲜明的性格,在滑门开阖之间,使空间彼此连贯却独立,让手足在相知相伴的成长路上,不论玩耍或吵闹皆是一辈子无可取代的珍贵记忆。

<总体规划>7.收纳规划:
基于女主人本身经营贩售日式杂货与荷兰米飞兔灯饰,夫妻俩亦有收藏食玩、公仔模型的兴趣,于是增辟独立储藏室收纳大型物件及商品,并于客厅、餐厅与厨房规划开放格柜、玻璃展示柜等,使珍藏物品成为空间一抹亮眼焦点。

8.动线规划:
创造流畅动线是首要关键,刻意将沙发不靠墙摆设,形成流动回字形配置,也使后方得以增设开放式书房,完善整体机能性,并将走道微幅缩减至85公分,加上电视柜斜面收边设计,拓展寝室空间同时,勾勒出顺畅无碍的动线。

9.灯光设计:
基地本身前后无遮蔽物阻挡自然光线,在规划上,以维持既有采光优势为主轴,透过开放式设计穿引日光敞亮全室;同时交错运用轨道灯及嵌灯,使原有楼板净高不受影响,并运用餐吊灯使北欧与日式和谐相融,赋予灯具串连风格用途。 10.建材挑选:
超耐磨木地板、日本进口壁纸、系统家具、水纹玻璃、木纹砖、木作、油漆 11.色彩搭配:
鉴于屋主喜欢原木色与木材质,于是全室以木头元素当作主轴,运用温润木地板、木制家具与具有天然木纹理的系统板材勾勒出自然清新氛围,同时利用蓝绿色泽做为点缀,透散活泼气息亦带出童趣北欧调性,并于壁面相佐女主人喜爱的藕紫色,温润空间表情也使空间划分于无形。
