梁模板扣件钢管支撑架计算书
依据规范:
《建筑施工脚手架安全技术统一标准》GB51210-2016
《建筑施工扣件式钢管脚手架安全技术规范》JGJ 130-2011
《建筑施工模板安全技术规范》JGJ 162-2008
《建筑结构荷载规范》GB50009-2012
《钢结构设计规范》GB50017-2003
《混凝土结构设计规范》GB50010-2010
《建筑地基基础设计规范》GB50007-2011
《建筑施工木脚手架安全技术规范》JGJ 164-2008
计算参数:
钢管强度为205.0 N/mm2,钢管强度折减系数取1.00。
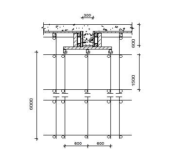
模板支架搭设高度为6.0m,
梁截面 B×D=300mm×600mm,立杆的纵距(跨度方向) l=1.20m,立杆的步距h=1.50m,
梁底增加3道承重立杆。
面板厚度18mm,剪切强度1.4N/mm2,抗弯强度15.0N/mm2,弹性模量6000.0N/mm2。
内龙骨采用60.×80.mm木方。
木方剪切强度1.3N/mm2,抗弯强度15.0N/mm2,弹性模量9000.0N/mm2。
梁底支撑龙骨长度 1.20m。
顶托采用木方: 100×100mm。
梁底按照均匀布置承重杆3根计算。
模板自重0.20kN/m2,混凝土钢筋自重25.50kN/m3。
振捣混凝土荷载标准值2.00kN/m2,施工均布荷载标准值2.50kN/m2。
扣件计算折减系数取1.00。

图1 梁模板支撑架立面简图
按照GB51210规范6.1.11条规定确定荷载组合分项系数如下:
由可变荷载效应控制的组合S=1.2×(25.50×0.60+0.20)+1.40×2.50=22.100kN/m2
由永久荷载效应控制的组合S=1.35×25.50×0.60+0.7×1.40×2.50=23.105kN/m2
由于永久荷载效应控制的组合S最大,
永久荷载分项系数取1.35,可变荷载分项系数取0.7×1.40=0.98
采用的钢管类型为φ48.3×3.6。
钢管惯性矩计算采用 I=π(D4-d4)/64,抵抗距计算采用 W=π(D4-d4)/32D。
一、模板面板计算
面板为受弯结构,需要验算其抗弯强度和刚度。模板面板的按照三跨连续梁计算。
静荷载标准值 q1 = 25.500×0.600×0.300+0.200×0.300=4.650kN/m
活荷载标准值 q2 = (2.000+2.500)×0.300=1.350kN/m
面板的截面惯性矩I和截面抵抗矩W分别为:
本算例中,截面惯性矩I和截面抵抗矩W分别为:
截面抵抗矩 W = 405px3;
截面惯性矩 I = 364.5px4;
(1)抗弯强度计算
f = γ0M / W < [f]
其中 f —— 面板的抗弯强度计算值(N/mm2);
γ0 —— 结构重要性系数;
M —— 面板的最大弯距(N.mm);
W —— 面板的净截面抵抗矩;
[f] —— 面板的抗弯强度设计值,取15.00N/mm2;
M = 0.100ql2
其中 q —— 荷载设计值(kN/m);
经计算得到 M = 0.100×(1.35×4.650+0.98×1.350)×0.400×0.400=0.122kN.m
经计算得到面板抗弯计算强度 f = γ0M/W = 1.00×0.122×1000×1000/16200=7.507N/mm2
面板的抗弯强度验算 f < [f],满足要求!
(2)抗剪计算
γ0γT= 3γ0γQ/2bh< [T]
其中最大剪力 Q=0.600×(1.35×4.650+0.98×1.350)×0.400=1.824kN
截面抗剪强度计算值 T=3×1.00×1824.0/(2×300.000×18.000)=0.507N/mm2
截面抗剪强度设计值 [T]=1.40N/mm2
面板抗剪强度验算小于 [T],满足要求!
(3)挠度计算
v = 0.677ql4 / 100EI < [v] = l / 250
面板最大挠度计算值 v = 0.677×4.650×4004/(100×6000×145800)=0.921mm
面板的最大挠度小于400.0/250,满足要求!
二、梁底支撑龙骨的计算
(一)梁底龙骨计算
作用荷载包括梁与模板自重荷载,施工活荷载等。
1.荷载的计算:
(1)钢筋混凝土梁自重(kN/m):
q1 = 25.500×0.600×0.400=6.120kN/m
(2)模板的自重线荷载(kN/m):
q2 = 0.200×0.400×(2×0.600+0.300)/0.300=0.400kN/m
(3)活荷载为施工荷载标准值与振捣混凝土时产生的荷载(kN):
经计算得到,活荷载标准值 P1 =(2.500+2.000)×0.300×0.400=0.540kN
均布荷载 q = 1.35×6.120+1.35×0.400=8.802kN/m
集中荷载 P = 0.98×0.540=0.529kN

龙骨计算简图

龙骨弯矩图(kN.m)

龙骨剪力图(kN)
变形的计算按照规范要求采用静荷载标准值,受力图与计算结果如下:

变形计算受力图

龙骨变形图(mm)
经过计算得到从左到右各支座力分别为
N1=0.039kN
N2=3.092kN
N3=0.039kN
经过计算得到最大弯矩 M= 0.075kN.m
经过计算得到最大支座 F= 3.092kN
经过计算得到最大变形 V= 0.013mm
龙骨的截面力学参数为
本算例中,截面惯性矩I和截面抵抗矩W分别为:
截面抵抗矩 W = 1600px3;
截面惯性矩 I = 6400px4;
(1)龙骨抗弯强度计算
抗弯计算强度 f = γ0M/W = 1.00×0.075×106/64000.0=1.17N/mm2
龙骨的抗弯计算强度小于15.0N/mm2,满足要求!
(2)龙骨抗剪计算
截面抗剪强度必须满足:
γ0T= 3γ0Q/2bh< [T]
截面抗剪强度计算值 T=3×1.00×1.281/(2×60.00×80.00)=0.400N/mm2
截面抗剪强度设计值 [T]=1.30N/mm2
龙骨的抗剪强度计算满足要求!
(3)龙骨挠度计算
最大变形 v =0.013mm
龙骨的最大挠度小于600.0/400(木方时取250),满足要求!
(二)梁底顶托梁计算
托梁按照集中与均布荷载下多跨连续梁计算。
均布荷载取托梁的自重 q= 0.108kN/m。

托梁计算简图

托梁弯矩图(kN.m)

托梁剪力图(kN)
变形的计算按照规范要求采用静荷载标准值,受力图与计算结果如下:

托梁变形计算受力图
托梁变形图(mm)
经过计算得到最大弯矩 M= 0.989kN.m
经过计算得到最大支座 F= 10.102kN
经过计算得到最大变形 V= 0.837mm
顶托梁的截面力学参数为
本算例中,截面惯性矩I和截面抵抗矩W分别为:
截面抵抗矩 W = 4166.75px3;
截面惯性矩 I = 20833.25px4;
(1)顶托梁抗弯强度计算
抗弯计算强度 f = γ0M/W = 1.00×0.989×106/166666.7=5.93N/mm2
顶托梁的抗弯计算强度小于15.0N/mm2,满足要求!
(2)顶托梁抗剪计算
截面抗剪强度必须满足:
γ0T= 3γ0Q/2bh< [T]
截面抗剪强度计算值 T=3×1.00×3917/(2×100×100)=0.588N/mm2
截面抗剪强度设计值 [T]=1.30N/mm2
顶托梁的抗剪强度计算满足要求!
(3)顶托梁挠度计算
最大变形 v =0.837mm
顶托梁的最大挠度小于1200.0/250,满足要求!
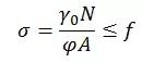
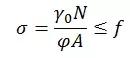
三、立杆的稳定性计算
1、按扣件脚手架规范计算立杆稳定性:
不考虑风荷载时,立杆的稳定性计算公式

其中 N —— 立杆的轴心压力设计值,它包括:
横杆的最大支座反力 N1=10.10kN(已经包括组合系数)
脚手架钢管的自重 N2 = 1.00×1.35×1.094=1.477kN
顶部立杆段,脚手架钢管的自重 N2 = 1.00×1.35×0.310=0.418kN
非顶部立杆段 N = 10.102+1.477=11.579kN
顶部立杆段 N = 10.102+0.418=10.520kN
φ —— 轴心受压立杆的稳定系数,由长细比l0/i 查表得到;
i —— 计算立杆的截面回转半径 (cm);i= 1.59
A —— 立杆净截面面积 (cm2); A = 5.06
W —— 立杆净截面抵抗矩(cm3);W = 5.26
σ —— 钢管立杆抗压强度计算值 (N/mm2);
[f] —— 钢管立杆抗压强度设计值,[f] = 205.00N/mm2;
l0 —— 计算长度 (m);
参照《扣件式规范》2011,由公式计算
顶部立杆段:l0 = ku1(h+2a) (1)
非顶部立杆段:l0 = ku2h (2)
k —— 计算长度附加系数,按照表5.4.6取值为1.155,当允许长细比验算时k取1;
u1,u2 —— 计算长度系数,参照《扣件式规范》附录C表;
a —— 立杆上端伸出顶层横杆中心线至模板支撑点的长度;a = 0.20m;
顶部立杆段:a=0.2m时,u1=1.649,l0=3.619m;
λ=3619/15.9=228.239
允许长细比(k取1) λ0=228.239/1.155=197.610<210 长细比验算满足要求!
φ=0.140
σ=1.00×10520/(0.140×505.5)=148.407N/mm2
a=0.5m时,u1=1.298,l0=3.748m;
λ=3748/15.9=236.391
允许长细比(k取1) λ0=236.391/1.155=204.668<210 长细比验算满足要求!
φ=0.131
σ=1.00×10520/(0.131×505.5)=158.451N/mm2
依据规范做承载力插值计算 a=0.200时,σ=148.407N/mm2,立杆的稳定性计算 σ<[f],满足要求!
非顶部立杆段:u2=2.089,l0=3.619m;
λ=3619/15.9=228.268
允许长细比(k取1) λ0=228.268/1.155=197.635<210 长细比验算满足要求!
φ=0.140
σ=1.00×11579/(0.140×505.5)=163.335N/mm2,立杆的稳定性计算 σ<[f],满足要求!
考虑风荷载时,立杆的稳定性计算公式为:

风荷载设计值产生的立杆段弯矩 MW计算公式
MW=1.4×0.6Wklah2/10
其中 Wk —— 风荷载标准值(kN/m2);
Wk=uz×us×w0 = 0.300×1.250×0.600=0.225kN/m2
h —— 立杆的步距,1.50m;
la —— 立杆纵向间距(梁截面方向),1.20m;
lb —— 立杆横向间距,1.20m;
Nw —— 考虑风荷载时,立杆的轴心压力最大值;
风荷载产生的弯矩 Mw=1.4×0.6×0.225×1.200×1.500×1.500/10=0.051kN.m;
风荷载设计值产生的立杆段轴力 Nwk计算公式
Nwk=(6n/(n+1)(n+2))*MTk/B
其中 MTk —— 模板支撑架计算单元在风荷载作用下的倾覆力矩标准值(kN.m),由公式计算:MTk = 0.5H2lawfk + HlaHmwmk
B —— 模板支撑架横向宽度(m);
n —— 模板支撑架计算单元立杆横向跨数;
Hm —— 模板支撑架顶部竖向栏杆围挡(模板)的高度(m)。
MTk = 0.225×6.0×1.20×(0.5×6.0+0.60)=5.832kN.m
Nwk = 6×8/(8+1)/(8+2)×(5.832/8.00)=0.389kN
Nw —— 考虑风荷载时,立杆的轴心压力最大值;
顶部立杆Nw=10.102+1.350×0.310+ 1.4×0.6×0.389=10.847kN
非顶部立杆Nw=10.102+1.350×1.094+ 1.4×0.6×0.389=11.905kN
顶部立杆段:a=0.2m时,u1=1.649,l0=3.619m;
λ=3619/15.9=228.239
允许长细比(k取1) λ0=228.239/1.155=197.610<210 长细比验算满足要求!
φ=0.140
σ=1.00×10847/(0.140×505.5)+1.00×51000/5262=162.711N/mm2
a=0.5m时,u1=1.298,l0=3.748m;
λ=3748/15.9=236.391
允许长细比(k取1) λ0=236.391/1.155=204.668<210 长细比验算满足要求!
φ=0.131
σ=1.00×10847/(0.131×505.5)+1.00×51000/5262=173.067N/mm2
依据规范做承载力插值计算 a=0.200时,σ=162.711N/mm2,立杆的稳定性计算 σ<[f],满足要求!
非顶部立杆段:u2=2.089,l0=3.619m;
λ=3619/15.9=228.268
允许长细比(k取1) λ0=228.268/1.155=197.635<210 长细比验算满足要求!
φ=0.140
σ=1.00×11905/(0.140×505.5)+1.00×51000/5262=177.639N/mm2
立杆的稳定性计算σ< [f],满足要求!
2、按模板规范计算立杆稳定性:
不考虑风荷载时,立杆的稳定性计算公式为:

其中 N —— 立杆的轴心压力最大值,它包括:
横杆的最大支座反力 N1=10.102kN(已经包括组合系数)
脚手架钢管的自重 N2 = 1.00×1.35×0.182×6.000=1.477kN
N = 10.102+1.477=11.579kN
i —— 计算立杆的截面回转半径,i=39.75px;
A —— 立杆净截面面积,A=126.375px2;
W —— 立杆净截面模量(抵抗矩),W=131.54999999999998px3;
[f] —— 钢管立杆抗压强度设计值,[f] = 205.00N/mm2;
a —— 立杆上端伸出顶层横杆中心线至模板支撑点的长度,a=0.20m;
h —— 最大步距,h=1.50m;
l0 —— 计算长度,取1.500+2×0.200=1.900m;
λ —— 长细比,为1900/15.9=120 <150 满足要求!
φ —— 轴心受压立杆的稳定系数,由长细比l0/i 查表得到0.458;
经计算得到σ=1.00×11579/(0.458×505.5)=50.007N/mm2,不考虑风荷载时立杆的稳定性计算 σ < [f],满足要求!
考虑风荷载时,立杆的稳定性计算公式为:

风荷载设计值产生的立杆段弯矩 MW计算公式
MW=1.4×0.6Wklah2/10
其中 Wk —— 风荷载标准值(kN/m2);
Wk=uz×us×w0 = 0.300×1.250×0.600=0.225kN/m2
h —— 立杆的步距,1.50m;
la —— 立杆纵向间距(梁截面方向),1.20m;
lb —— 立杆横向间距,1.20m;
风荷载产生的弯矩 Mw=1.4×0.6×0.225×1.200×1.500×1.500/10=0.051kN.m;
风荷载设计值产生的立杆段轴力 Nwk计算公式
Nwk=(6n/(n+1)(n+2))*MTk/B
其中 MTk —— 模板支撑架计算单元在风荷载作用下的倾覆力矩标准值(kN.m),由公式计算:MTk = 0.5H2lawfk + HlaHmwmk
B —— 模板支撑架横向宽度(m);
n —— 模板支撑架计算单元立杆横向跨数;
Hm —— 模板支撑架顶部竖向栏杆围挡(模板)的高度(m)。
MTk = 0.225×6.0×1.20×(0.5×6.0+0.60)=5.832kN.m
Nwk = 6×8/(8+1)/(8+2)×(5.832/8.00)=0.389kN
Nw —— 考虑风荷载时,立杆的轴心压力最大值;
Nw = 10.102+1.350×1.094+1.4×0.6×0.389=11.905kN
经计算得到σ=1.00×11905/(0.458×505.5)+1.00×51000/5262=61.115N/mm2
考虑风荷载时立杆的稳定性计算σ < [f],满足要求!
模板承重架应尽量利用剪力墙或柱作为连接连墙件,否则存在安全隐患。
四、模板支架整体稳定性计算
依据规范GB51210-2016,模板支架应进行整体抗倾覆验算。
支架的抗倾覆验算应满足下式要求:
MT<MR
式中: MT-支架的倾覆力矩设计值;
MR-支架的抗倾覆力矩设计值。

抗倾覆力矩:
MR=8.0002×1.200×(0.760+0.200)+2×(0.000×8.000×1.200)×8.000/2=73.696kN.m
倾覆力矩:
MT=3×1.000×5.832 = 17.496kN.m
模板支架整体抗倾覆验算 MT < MR,满足整体稳定性要求!