车型:别克英朗,配置1.8L 2HO发动机。
VIN:LSGPB63R2AS××××××。
行驶里程:41199km。
故障现象: 进店维修空调不制冷故障。
故障诊断:首先连接诊断仪GDS2检测,没有发现DTC故障码储存,如图1所示。

图1 无DTC故障码
然后观看动态的空调许可数据,发现压缩机并未吸合,数据也不正常,空调请求信号为“否”,如图2所示。

图2 空调请求信号为“否”
根据空调数据的收集,发现诊断提示:高压端压力超出范围,但实测高压侧的压力数据只有84kPa,而正常的数据应该在800~1000kPa。
看到数据之后,技师习惯性地先用试灯测试压缩机处有没有供电电源,可试灯并未点亮(如图3所示),怀疑可能是没有电源所导致的故障。

图3 试灯并未点亮
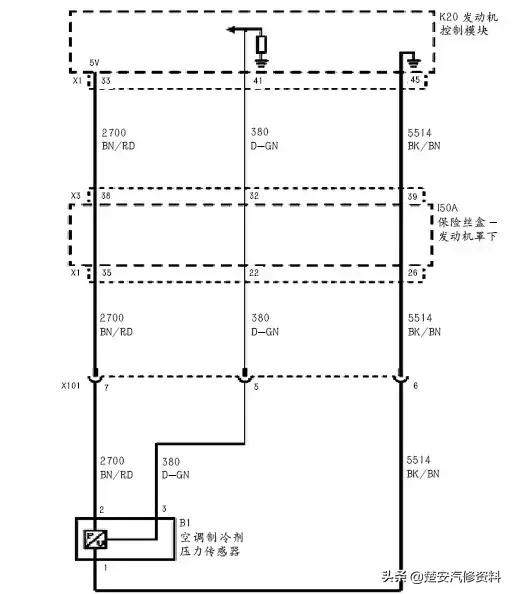
查阅如图4所示电路图。

图4 电路图
测量ECM提供的5V电压和搭铁都正常,所以可以排除线路上出现故障的猜测。
由于空调诊断数据中反映高压侧压力高,导致离合器未啮合的可能性,怀疑系统进入保护模式,所以没有供电。空调压力开关不好也会引起故障。随之更换了压力开关,故障依旧。观察数据没有任何变化,也就排除了压力开关故障的可能性。
静下心来分析引起空调不制冷的几个原因:
(1)制冷剂不足;
(2)空调压力传感器;
(3)空调压缩机;
(4)热膨胀阀故障;
(5)蒸发器温度传感器;
(6)加热器、鼓风机和空调系统控制模块故障。
此车在检查中已经对制冷剂进行过检测,制冷剂没有缺失;而压力开关、空调模块也进行了相应的替换。
通过线路检测以及更换多个部件之后问题依旧没有解决,此时没有了头绪。是不是把问题想的过于复杂了?影响压力开关的原因呢?空调压缩机在没有供电的情况下是不会啮合的,但蒸发温度和压力都与之有关。
再次询问客户之前有没有在外面修理过,客户说年初的时候出过一次事故,在外面的修理厂更换过冷凝器,因为天气原因一直没有使用过冷风所以并没有觉得有故障,以为这次是突发状况。
根据客户的描述,怀疑问题出在冷凝器上。技师拆下冷凝器做压力测试,最后发现其和压力开关接口不良,有泄漏,如图5所示。

图5 故障部件
之后在和客户沟通后重新更换了原厂冷凝器,加注冷媒后测试,并再次观察空调数据,全部正常了,出风口温度在6℃,如图6所示。

图6 空调数据
故障总结:市场中有些配件固然便宜,但质量得不到保障。这次是冷凝器的质量问题造成的故障隐患,使压力开关因泄漏没有检测到高压侧压力。维修过程中与客户的沟通非常重要,了解之前的维修过程,能让技师判断当前故障的逻辑关系,从而在维修过程中调整诊断策略和思路,这样就会让自己少走弯路。