装修技术收录于
华建环境设计研究所《华建施工技术-1801》
编制人:黄志钦
用于施工工艺教学使用
【规避危害建筑预埋管线的相关做法】
一、实事概况:
时下高层住宅建造施工过程中,为避免平层各户型产权纠纷问题,各户的强、弱电预埋管均沿公共电梯厅楼板预埋敷设,加上公共电梯厅普通照明、应急灯和疏散指示、自动报警系统等管线也是沿电梯厅楼板预埋敷设,从而造成电梯厅结构楼板预埋机电管线数量较多的情况,而且为保证管线预埋后,结构楼板不出现空鼓,预埋管线之间需留一定空隙,利于混凝土浇筑时能够震动至密实。所以,最终预埋出来的管线占据了公共电梯厅楼板50%~70%的板面。


二、规避隐患的相关做法:
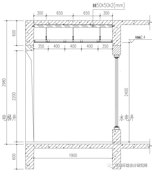
对于高层住宅建筑电梯前室,装修时普遍都会吊天花以提高住宅建筑的档次,而天花龙骨吊杆做法为:50系列不上人型热镀锌轻钢龙骨面封9mm厚硅钙板,主龙骨用Φ8吊筋拉吊,间距为800mm×800mm,副龙骨间距。为600mm×400mm。
结合《GB 50327-2001-住宅装饰装修工程施工规范》及相关图集,在高层住宅公共装修天花施工,需在钢筋混凝土板上打膨胀螺栓,再进行龙骨吊杆的固定安装。
相关做法节点如下图:

● 螺 栓 节 点

● 龙 骨 节 点
若按上述龙骨吊杆做法,必定会对预埋的线管造成多处的破坏,且预埋线管被破坏之后将难以修复。为求达到天花施工期间,保护已完成的结构楼板的预埋线管的目的。
华建君(华建环境设计研究所)建议高层住宅公共装修大面各层天花调整天花龙骨的固定方式,在结构楼板底增加角铁。(建议规格为:长×宽×厚=50mm×50mm×2mm)沿两侧梁固定,而吊杆则固定在方管之上,从而避免膨胀螺栓打穿破坏结构楼板的预埋线管。
做法如下图所示:

● 天 花 节 点

● 剖 面
以上内容由华建环境设计研究所(实验二室)编制整理