大家好,本案是19年设计施工的一个顶层复式,原房间客厅,南客房,厨房挑空,中间没有楼板,需要自己现浇,客厅南客房高度一致,二层可以正常使用,厨房空间小,浇筑后只有1.4米高,空间当做小设备间使用(主要放置净水软水设备)

1、2原始结构图
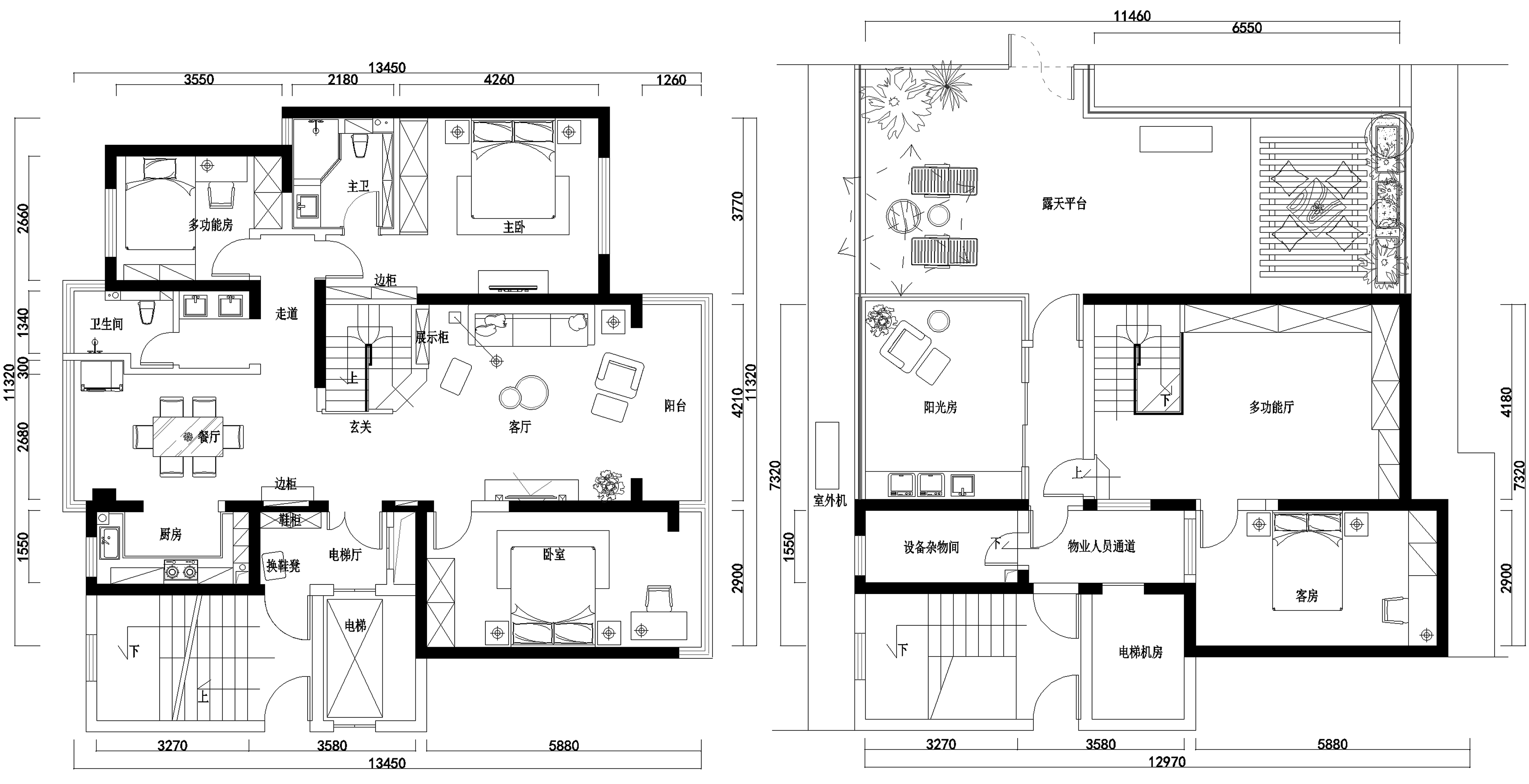
房子6楼顶层复式,南北通透,南北阳台均可纳入室内,房顶露天阳台可半封闭供自己使用,全小区中央空调,空调机位可以纳入卫生间,主机放置房顶,二楼客厅卧室层高原因使用不成中央空调,改用分体挂机,
房东一家3口,女儿20多岁近期结婚,在外地工作,偶尔回来居住,预留了女儿房和外孙房,男主人喜欢玩扑克,二楼客厅以后基本就是扑克厅了,女主人要在1楼预留个备用房间,也就是北卧室,线路按照榻榻米床和书房双重功能预留,家具先不摆放,楼梯位置是最头疼的,起初规划的现浇楼梯,依据层高算后没踏190左右,并且入户进厅变的比较小,只有1500左右了,还正对入户门,女主人强烈要求楼梯口不能对入户门,入户尽量不要看到楼梯,经过反复推敲,才确定楼梯方案,进厅净空达到1750,楼梯口不对入户门,踏步没踏170高260进深,*翻推**现浇楼梯方案,采用砖砌异形双层基座,上做实木楼梯,厨房比较小,冰箱外移,半内嵌墙体处理,牺牲客卫淋浴区空间,强电箱移位,强电整体重新做,从1楼引主线到6楼主电箱,房间就常规布局,变化不大,房顶前期先预留3个水口,照明,插座,后期再做阳光房和其它的。

墙体改动部分示意图
卫生间同层排水,壁挂马桶,两个卫生间都找地方预留了点小壁龛,二楼只有两个天窗,采光通风都不好,在能改动的墙体上掏窗户,增加一个去室外平台的安全门,室外平台有防水回填层,高于室内35,做了两个异型踏步,下面是平面布局

平面布局图
家里常住只有女主人一人,基本不怎么开火,女主人喜欢干净整洁的中性色,不喜欢太深的颜色(除了部分实木家具)方案整体采用无主灯设计,射灯基本也没用,主照明顶部暗藏筒灯和窗帘盒暗装灯带,氛围灯依靠台灯落地灯调节

1楼彩平

二楼彩平







卧室里面增加了点石膏线造型软化下线条,石膏线框,石膏线和顶部角花都采用的不闭合处理,实际粘出来效果很棒。

现在半成品,不是疫情的话应该开始装柜子了,期待疫情早点结束,感染的人早点恢复健康吧,为伟大的医疗工作者点赞,天佑我中华。