太原万科城市之光不论从地理位置还是周边配套设施来讲,都非常不错。叔对万科城市之光的项目进行了走访,并且针对大家关心的价格、户型等问题。做一些测评给大家作为近期的购房参考,来看看该楼盘到底值不值得买,适合哪些购房人群?
项目概况
万科城市之光位于长风街与亲贤北街东延之间,建设南路东约500米处。整体规划建面约200万㎡,城市之光项目位于建设路以东、东中环以西,纵贯长风亲贤两大黄金中轴,整体规划建面约200万㎡,分4期开发。一期分南区、北区及紫台东三个地块,其中,紧邻长风街的南区将携住宅、办公、公寓、泊寓(青年长租公寓)、活力商街、教育配套、社区5V配套等率先入市。首期面世产品为万科全新未来家迭代户型,建面约88㎡-165㎡,同时搭载万科3.0版的无限系精装修配置、美好家定制家装服务体系及INNOHOME全新装标体系。
容积率4.0,绿化率35%,项目数据比较平庸,城市之光虽然是大盘,但是由于被分割成几部分,所以大盘应有的大绿化,大活动场所的优势有所削弱。楼间距为50米,5层以上的住户采光不受影响,5层以下的也可以通过合理的布局变成间断性影响。

区位点评
项目位于长风街与亲贤北街东延之间,建设南路往东约500米处。项目东靠东中环,南邻长风东街,北邻亲贤街东延,西侧750米是万科紫台,1.2公里则是建设南路。无论出行选择是往北还是往南都很便捷,出门购物非常方便。同时该项目周边也是南城教好的一些教育资源的聚集地,省政府也已搬到长风街,区位优势比较明显。周边配套比较成熟,加之临*亲近**贤长风商圈,工作生活都较为便利。虽说当前地段稀缺。但是相比之下长风东街要比长风西街的区位发展稍差一些。价格也不低,目前售价约15500元/平方米。
交通评价
自驾车出行:自驾出行相对比较便利,东中环和改造过后的建设路都是南北向全程快速路,南北向交通便利性不言而喻,东西向的通行条件则相对要差一些,从城市之光通往河西的通行时间要长很多。项目距离火车南站和机场自驾车只需要十分钟以内,非常方便。
公交出行:小区门口已经有六条公交车线路,分别是:831路、837路、77路、70路、837支路、327路。公交往往都至东中环坞城东街口站下车,乘车很方便。项目周边共有6个公共自行车租赁点,您也可以选择绿色出行。
太原市地铁规划中,地铁1号线的规划有停靠站预计进站口离项目步行距离1公里以内。
商业配套
城市之光处于长风亲贤商圈的边缘地带,虽说周边商业环境比较成熟,不过距离都不太近。但好在未来有太古里和红星爱琴海的规划,离城市之光距离都在1公里左右,可以完善周边的配套问题。



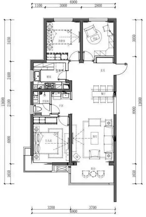
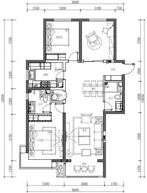
户型评价
万科城市之光目前主推135㎡、143㎡、178㎡户型,均价为15500元/平,AB区2020年12月30日预计交房,CD区2021年10月30日预计交房。
户型基本都是万科的常用户型,整体空间利用率比较高,通透性都比较好,缺点在于三室的户型有2个卧室朝北,对于家里有喜阳的老人长期居住来讲,这个户型恐怕不太合适。
装修标准

小户型的装修,同万科小镇的小户型装标基本相同,该装标客厅和卧室选择了木地板,质量一般;大户型的装修,同万科小镇的大户型装标基本相同,卧室采用了实木复合地板,客厅和餐厅采用石材地面;智能家居开发商营销的一个亮点,实质上关于智能家居的应用并不算全面和广泛,勉强算沾边,这点实际上可以给项目价格带来的提升空间并不大。这里要说的一点是项目选用了塑钢门窗,很多粉丝在购买万科的项目的时候都会吐槽万科使用塑钢门窗。其实好的塑钢从保温,隔热,密封,到造价都和断桥铝合金差不了多少。塑钢有好有坏,万科用的质量还算不错。
综合评价
整体来讲万科城市之光还是值得推荐的,从区位和交通来讲都对购房者来说算是比较好的选择。只要尽量避开5层以下的楼层,避免存在采光问题,基本没有太大缺点。项目位于长风街发展较为成熟的区域,周边生活氛围比较浓厚,配套也较为成熟,生活较为便利。
项目适合之前在城东区域生活或者在城东区域工作的改善人群,如果你在河西生活或者工作,可以果断放弃。如果你是外地人在太原的首次置业,选择城市之光要慎重的综合考量。