房屋信息
设计团队:重庆琢信装饰有限公司
楼盘名称:金科天元道1期
户型面积:96㎡
格局分布:三室一厅一厨二卫
硬/软装设计:徐 海 魏 鑫
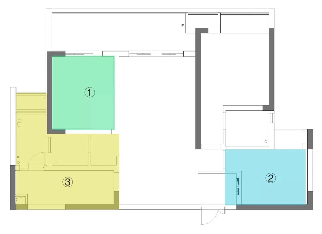
户型解析


①考虑到父母会经常来,所以至少要保证两个卧室,知道父母喜欢采光充足的卧室,设计师把客厅后面的卧室留给了父母。
②将另外的卧室作为一个多功能的空间!
③将厨房和公卫的门内移,自然形成冰箱的位置,拓宽了餐厅的视觉感;吧台和餐桌的结合,让空间有着更强的趣味性!
设计难点:原始餐厅位置厨卫动线关系比较零碎,餐桌的位置较为尴尬!
色彩分析

不同的色彩反映出不同的生活态度,现代都市女性,越来越多喜欢更个性的色彩。本次案例整体色调上使用的是深色系,搭配时下流行的金属,让我们去感受潜意识的独立与不凡。
入户 vestibule

回家的第一步就是开门,引入眼帘的是家的第一道风景,一灯一画简洁干净!入户其实是换鞋的地方,一点点的装饰,让换鞋都变得有格调。
客厅 living room

墙面没有过多的装饰,灰色的墙面契合地面,黑色的皮质沙发搭配白色单椅,地毯和墙面的挂画都是选择的人形画像,让客厅看上去沉稳优雅不失单调!


黑色电视柜和客厅吊灯相辅相成,搭配上素雅的窗帘,一点点的绿植,让整个空间大气、沉稳,又不失温馨。



餐厅·厨房 dinning&kitchen

小资、惬意是业主喜欢的,在这里,我们给略微单调的餐厅增加了吧台!

黑色的餐桌搭配米白皮质餐椅,结合水泥灰的酒柜,加上金色的餐厅吊灯的点缀,烘托出餐厅空间的氛围;吧台和
厨柜采用的是哑光水泥灰的板材,粗犷却极具质感;墙与地的深浅碰撞凸显空间的层次感!
主卧 bedroom

主卧色调较明亮。软装上设计师搭配了抽象的挂画,皮质的床,睡着更舒适,不需要过于复杂的床头柜,让卧室多一点点柔和。

次卧 bedroom

满足父母的需求,为父母选择了采光最佳的卧室,为了不让次卧在视觉上看着过于单一,床头用了暖光灯,瞬间感觉冬天也没那么寒冷啦~

书房 study room

水泥灰的柜门搭配木纹的柜体,简洁干练,增添了书房的自然与温馨!
卫生间 toilet

利用落水管的阳角位置做了一个卫生间的壁龛,解决了落水管阳角位置的突兀感,增加了实用功能!