鞋柜作为每家每户不可或缺的鞋子收纳柜,基本现代人装修都是要定制一个体积较大的鞋柜来储存鞋子,尤其是鞋子比较多的人,想要保持进门区域的简洁大方,一个大大的鞋柜是必须的了。在带有玄关的户型中,鞋柜一般装在玄关过道区域,这样一进门就可以换鞋放鞋,非常的简洁方便。

▲带有玄关的户型,鞋柜都布置在玄关区的侧边,简洁实用而大方。
如果房子带有玄关的话,鞋柜的摆放问题自然是迎刃而解;然而像一些不带玄关的户型,一进大门就是客厅或餐厅的情况,鞋柜的摆放就需要综合考虑客餐厅布置设计了。那么遇到这类户型的话,鞋柜该如何布置呢?下面来介绍一些设计布置方案!
// 1、鞋柜隔断,增加客餐厅私密感 //
用鞋柜来做隔断的情况,一般适合大门开在客餐厅的短边墙角落的户型,这种户型没有独立的玄关区域,但是布置上鞋柜作为隔断后,既可以增加客餐厅区域的私密性,又能让入户区域相对独立出来,形成一个“假玄关”的功能,让空间更加实用而美观。

▲大门开在短边墙的角落上,鞋柜装在大门对面,还能充当隔断功能。

▲鞋柜充当了隔断功能,避免大门一开就把整个客厅区域都一览无遗。

▲从大门进门,看到这样一个画面,鞋柜+装饰柜/屏风融为一体,让回家进门的空间显得更加优雅大气。
// 2、鞋柜沿着门背装,保持空间动线 //
同样是大门开在客餐厅的短边墙的角落上,鞋柜也可以沿着门背后的那面长边墙装。这样既可以保持空间的动线流畅,又能实现鞋柜摆放的实用收纳功能,让客餐厅空间显得宽松大方。

▲大门开在短边墙的角落上,鞋柜装在门背后的长边墙上,保持空间整体动线宽敞。

▲鞋柜装靠在长边墙,从进门延伸到客厅区域,既不影响动线,也能实用收纳。
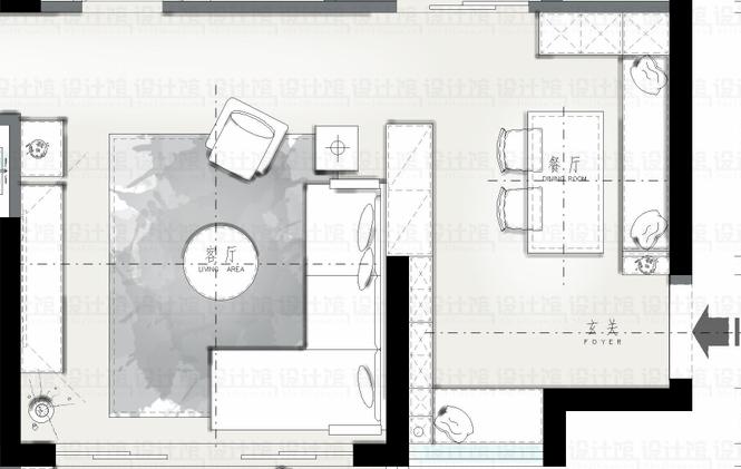
// 3、鞋柜平着大门布置,保持宽敞的空间 //
能把鞋柜与大门平着布置,一般是大门开在客餐厅的长边墙角落上的户型,这样的户型只能把鞋柜设置在大门旁边,否则进门换鞋就要踩进客餐厅区域了,日常生活会不方便。

▲大门开在长边墙的角落上,鞋柜平着大门装,方便回家后第一时间能换鞋。

▲根据这个小户型的实际情况,餐桌挨着鞋柜布置,我们把鞋柜与餐边柜设计成于一体的,并在柜子的侧边加入开放格架,方便存放常换的鞋子。
// 4、鞋柜装在大门侧边墙面,鞋柜更宽敞 //
同样是大门开在客餐厅的长边墙的角落上的户型,也可以把鞋柜装在短边的面墙,这样装鞋柜,可以装满整面短边的墙面,中间有开门或窗户的话,可以留空或加入矮柜的设计,抱枕开门开窗的基本功能,实现简洁实用的收纳设计。

▲大门开在长边墙的角落上,鞋柜沿着大门装在短边墙上,鞋柜可以装得更宽敞,可以收纳更多鞋子。

▲鞋柜沿着大门开门的方向,装在短边墙上,中间有门窗的话,可以适当地把门窗融入到鞋柜中间,保持空间的统一设计。
// 5、鞋柜的布置,要因地制宜 //
前面介绍的鞋柜,都是一些比较常见的户型,而在一些比较特殊的户型或设计中,鞋柜的布置相应结合户型情况与整体布置设计而定,设计的原则有2个:一个是尽量靠近大门,一个是不能影响空间的动线与家具布置。

▲开门是客餐厅,但客厅与餐厅中间有墙体,这类户型一般是老房子或户型改造后才会有。可以把鞋柜设置在对着大门的墙上

▲对着大门布置鞋柜,可以用矮柜,这样鞋柜上方可以摆放装饰品或绿植,避免进门后过于压抑,增加进门空间的精致感。
关于进门就是客厅或餐厅,没有独立玄关的户型,以上我介绍了5种鞋柜的摆放布置方案,各位可以参考以上方案,结合自家房子的实际户型与家具布置,选择适合自家装修设计的方案来具体布置。