
// 项目信息 //
地址 / 上塘宸章
户型 / 复式户型
面积 / 180㎡
风格 / 新中式
设计施工 / 浙江南鸿装饰
新中式之魂,在其简约灵动、优雅含蓄又充满格调的文化意蕴。它在传扬国风美学的同时,又巧妙融合了时代特性,让人第一眼便深陷其中。
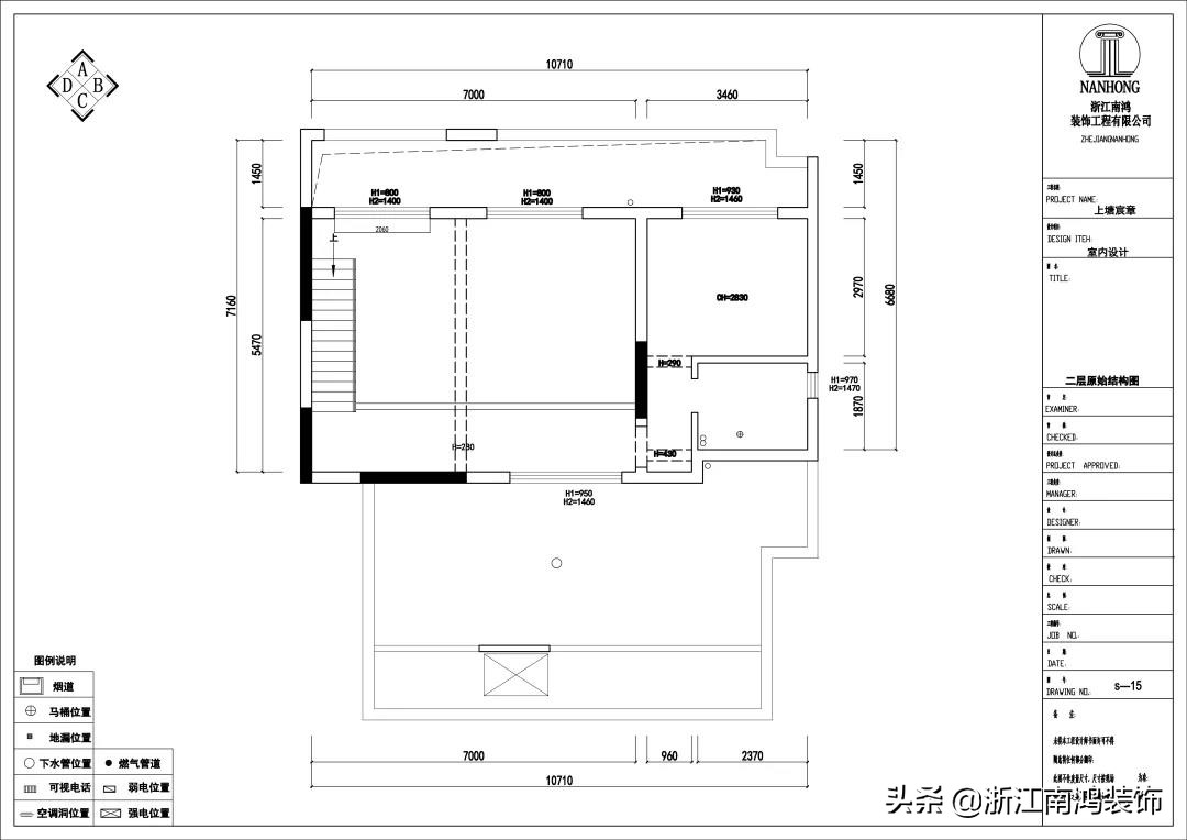
户 型 图


原始户型图
一家居住人口比较多,包括三个孩子一个老人,需要优先满足房间的需求;原楼梯正对入户门,位置不理想,需要调整。

▲平面设计图
①通过改动楼梯的位置,让光线和空间的利用率变高,也保证了居住的六口人都能有独立使用的房间和公共活动的空间;
②餐厅顶部梁很多,特意用了不锈钢条装饰,打造出新中式独有的造型吊顶。
01
客 厅


素雅的色彩,简洁的线条,富有文化韵味又不失设计感的空间格调,无声交织出新中式那优雅而沉稳的气度。
顶部为了缓解层高问题,选择了布局对称的无主灯设计,柔和的暖光也在一定程度上中和了大理石的冰冷。

结合楼梯区域做出电视背景墙,并将传统电视换成投影幕布,更具休闲意味。留白的电视墙与深色家具相衬,视觉对比鲜明。

客厅与阳台之间以铜制雕花屏风隔断,在划分区域的同时,也起到了非常好的装饰效果。

沙发后的宽敞过道留出了钢琴的位置,墙面做分体式回纹柜子满足收纳需求,钢琴嵌于收纳区之中,和谐相融。


02
餐 厅

餐厅恰好处于“交通要道”,居中摆放的餐桌好比一个枢纽,将每个独立空间相互串联起来,隐形门的效果则让整体装饰风格得到统一。

餐厅顶部用深色不锈钢线条勾勒,搭配华贵的主灯来增添用餐的仪式感。餐边柜旁规划了冰箱位,借此释放出厨房空间。
03
楼 梯

大理石材质铺就的楼梯区域美观大气,台阶高度约为18cm,踏步边的墙面位置安装上了感应灯,方便全家人夜间走动。
04
卧 室


二楼主卧房,相比公区域而言,这里的色彩使用更为浓烈,鲜艳色调提供冲击性视觉的同时释放出强大张力,为空间注入华贵气息。背景墙采用布艺硬包结合定制壁画,层次感丰富。


一楼长辈房,深灰的墙布铺垫安稳基调,色彩丰富的装饰画小小提亮空间,不致沉闷,两侧安上壁灯,补充光源的同时能更好地烘托氛围。
05
儿 童 房


儿童房一,选用小女孩最爱的粉色打造,家具软装灯饰与粉色呼应,呈现柔和的梦幻童趣。

儿童房二,色调和布置上更加简洁清爽,利用白色高低床打造睡眠区,并沿窗边设计出双人位学习区,实用性强。