
△ 国际交流中心二层屋面平台 ©章鱼见筑
设计单位 浙江大学建筑设计研究院有限公司
项目地点 浙江省杭州市萧山区振宁路
建筑面积 7570平方米
建设时间 2019年9月
杭州第二中学钱江学校位于杭州市萧山区钱江世纪城。项目规划为48个班的中学。作为拥有120年悠久历史的杭州第二中学,新校区设计以东河校区的灰砖以及滨江校区的红砖相结合。新校区内核心区公共建筑为红砖建筑,外围实验楼、教学楼和男女生宿舍楼等采用灰色系砖或多彩真石漆建筑。

△ 女生宿舍楼鸟瞰 ©章鱼见筑

△ 女生宿舍楼南立面 ©章鱼见筑
方案设计之初男女生宿舍楼为前后平行布置的两栋楼。后听取校方宝贵意见,处于高中时期的男女生应尽量避免视线及流线的相互干扰。故将男女宿舍楼分开布置,男生宿舍楼布置于校园东北角,临近运动场、篮球场等体育设施。女生宿舍设于校园西北角,与一层小尺度国际交流中心围合成校园中心花园。

△ 晨光下的女生宿舍楼 ©章鱼见筑
因男生宿舍与女生宿舍功能造型相似,故本案着重选择女生宿舍楼进行介绍。
建筑设计
考虑到女生多恬静、柔美的性格特征,女生宿舍楼依水而设。设计师脑海中描绘着这样一幅场景:晒满晨光的水面,倒映着三两而坐在晨读的学生。到了傍晚,学生从教学楼返回宿舍楼途径国际交流中心二层屋面平台,休憩、嬉戏、驻足远眺,此处成为学生放松心情的去处。

△ 华灯初上的女生宿舍楼 ©章鱼见筑
有别于传统的宿舍楼,幽暗的长走廊串联着一间间寝室单元。本设计结合地形,将建筑一分为三,相互错动。转折处设置阳台,让阳光洒进建筑。阳光给建筑带来了温度,设计给学生带来了温情,转折处的公共空间为学生提供了交流活动的场所。
三个错动的单元各有一部楼梯,可进行垂直独立管理,为校方增加了年级分区的另一种可能性。





△ 分析图 ©浙江大学建筑设计研究院有限公司
建筑主色调为灰色,在寝室阳台与入口处点缀了橘红色墙面,为建筑增添了一份暖意与活力,并与校园内红砖建筑有了群体建筑间的呼应。

△ 主入口侧墙 ©章鱼见筑

△ 女生宿舍楼东北角 ©章鱼见筑
考虑到女生的住所需要一定的私密性,阳台处下挂以及竖向的斜面遮挡了阳台晾晒的衣物以及阳台洗漱台。避免外立面被晾晒衣物破坏的同时,斜面在阳光照射下产生的光影效果,为建筑赋予了一种韵律美。

△ 南立面局部 ©章鱼见筑

△ 女生宿舍楼东南角 ©章鱼见筑
室内设计
宿舍户型为六人间,为了避免户内走廊侧采光不足,尽可能压缩户型进深,同时家具紧凑集约布置。户内由两组上下铺、两组上铺下桌以及两组收纳柜组成,满足住宿条件同时兼顾寝室内学习要求。
同时为应对中学生早晨上学时间统一、时间紧凑的特点,户内通过干湿分离设计了三处洗漱盆应对使用高峰时段。

△ 寝室分析图 ©浙江大学建筑设计研究院有限公司

△ 寝室轴测图 ©浙江大学建筑设计研究院有限公司
每个寝室入户门与走廊设过渡空间,在心理上增强了学生对于寝室的归宿感。

△ 走廊分析图 ©浙江大学建筑设计研究院有限公司
为丰富学生课余生活,宿舍一层设活动室,是学生增进友谊的小天地,同时也是家长接待室,为来访家长提供探视空间,不必进入寝室内打扰其他同学。

△ 活动室分析图 ©浙江大学建筑设计研究院有限公司

△ 宿舍楼门厅 ©章鱼见筑

△ 宿舍楼走廊 ©章鱼见筑

△ 寝室入户空间 ©章鱼见筑
结语
宿舍楼原本是一种功能相对简单的建筑类型,但是通过对细节的用心处理后,从实际功能出发,让使用者体会到设计中的心意所在,宿舍楼也能成为一座不平凡的建筑。
本项目所留下的遗憾是,受限于满足学生住宿人数要求与不能突破总建筑面积两个因素制约,未能将三个单元间连接部北面的活动室实现,本项目只实现了南面的观景活动阳台。原设想北面空间可复合活动室、茶水间等便于学生生活又便于校方集中管理的多功能空间。

△ 女生宿舍西南角 ©章鱼见筑

△ 午后的女生宿舍楼 ©章鱼见筑

△ 女生宿舍楼与国际交流中心 ©章鱼见筑
设计图纸 ▽

△ 总平面图 ©浙江大学建筑设计研究院有限公司

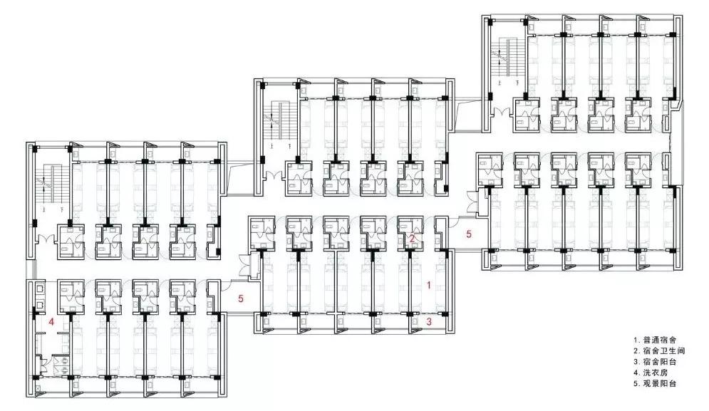
△ 标准层平面图 ©浙江大学建筑设计研究院有限公司

△ 南立面图 ©浙江大学建筑设计研究院有限公司

△ 东立面图(左)、剖面图(右) ©浙江大学建筑设计研究院有限公司
完整项目信息
项目名称:杭州第二中学钱江校区学生宿舍楼
项目类型:建筑
项目地点:浙江省杭州市萧山区振宁路
主创建筑师:范须壮、徐荪
设计团队完整名单:范须壮、邝洋、徐荪、张元升、朱恺、王溯
业主:杭州市教育资产运营管理中心
造价:2271万
建成状态:建成
设计时间:2015年10月—2016年10月
建设时间:2016年11月—2019年9月
总建筑面积:7570平方米
建筑:范须壮、邝洋、徐荪、张元升、朱恺、王溯
结构:钱磊、阚建忠、韩俊
景观:姚浩军、李将甫、周文强
室内:李静源、周媛、罗宝珍、王丰
设备:陈激、郑国兴、任晓东、杨国忠、方火明、孙登峰、黄钦鹏、邵春廷、王杭、叶敏捷
施工:浙江宝盛建设集团有限公司
材料:
面砖:爱克陶、多彩真
石漆:三棵树、low-e
玻璃:南玻
摄影师:章鱼见筑
本文来自网络,侵删