
案例地址:金科公园王府
案例面积:138平米
案例风格:简约
主要用材:实木地板、大理石瓷砖、实木橱柜、艺术壁纸等。

设计师郑伟 所属分公司:红星分公司从业经验:13年
设计理念:简约但不简单,豪华但不奢侈,崇尚以人为本的个性化设计。
设计作品:保利高尔夫、尊爵堡、龙湖春森彼岸、坡岭顿小镇、棕榈泉、万科悦府、恒大华府、龙湖江与城等。
印象·黑与白


前期需求把握
-
简约风格(冷色调),喜欢清静素雅的感觉;
-
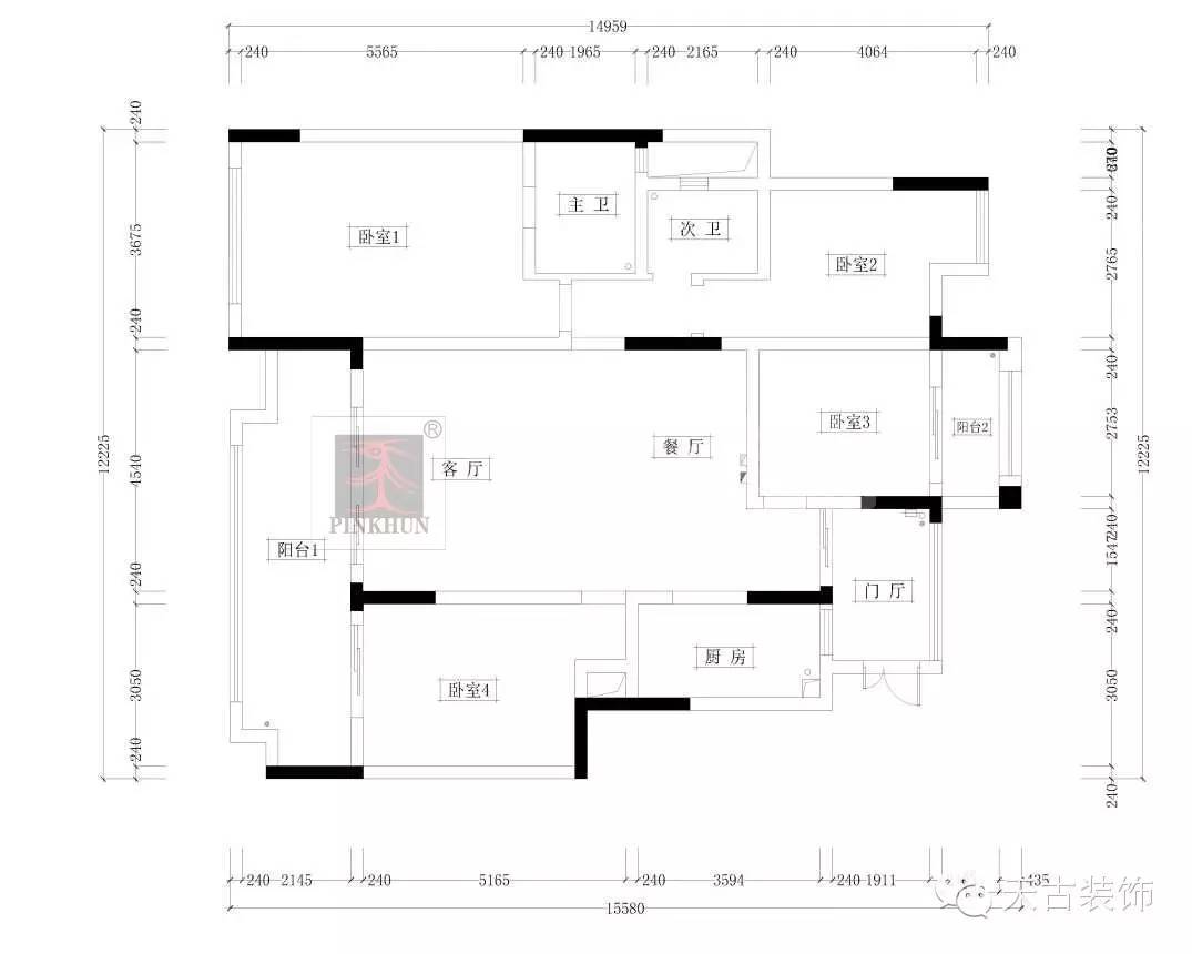
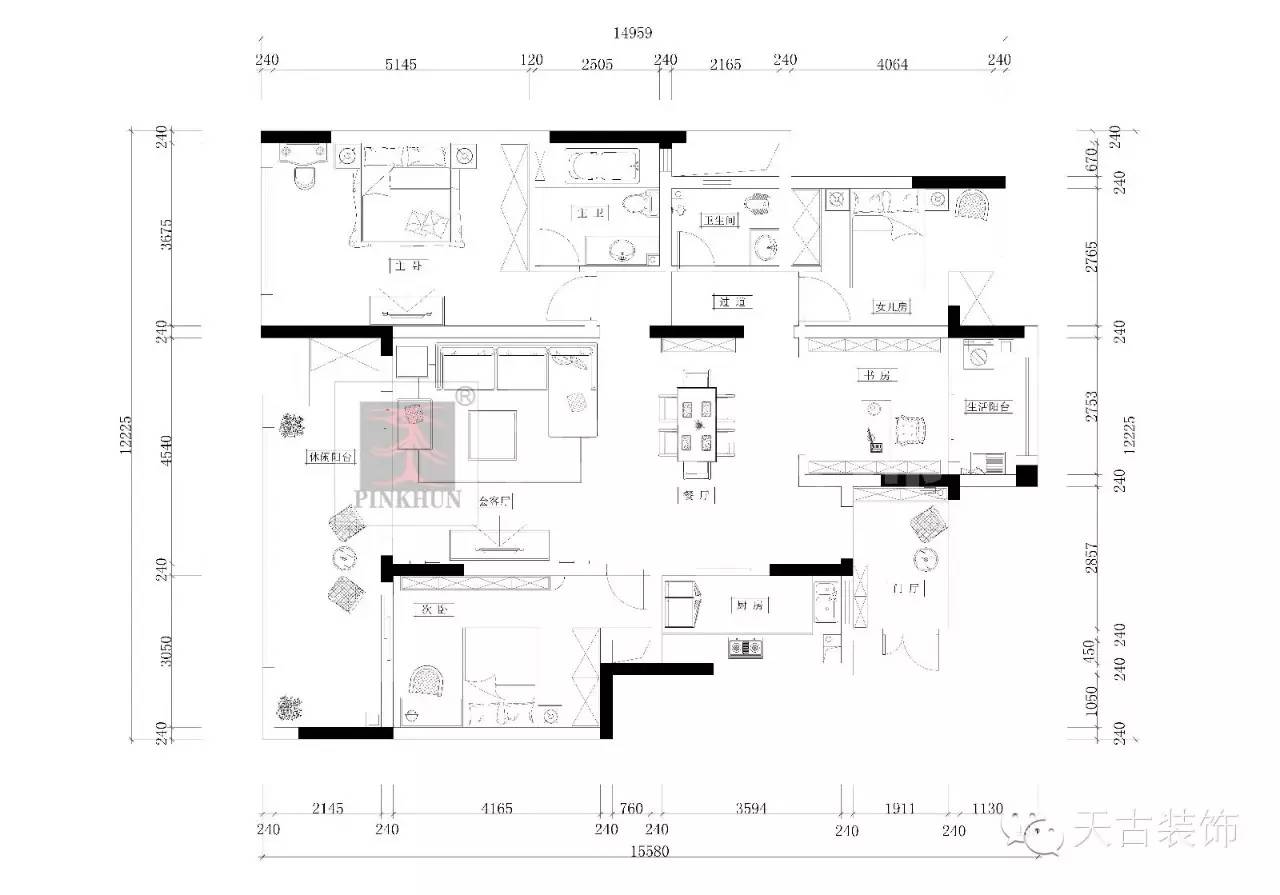
特殊要求:三间卧室,一间书房,希望进入主卧室更为独立些,不要主卫生间门正对卧室,觉得餐厅偏小;
3.预算40万内。


【入户实景】





【餐厅实景】



【客厅实景】



【书房实景】

精简对比的黑白两极色在结合后表现出其独特的艺术魅力。


【主卧实景】


【次卧实景】


简约不等于简单,它是经过深思熟虑和创新得出的设计与思路的延展,不是简单的“堆砌”和平淡的“摆放”。




【设计手稿】
更多案例查询可关注天古装饰微信:cqtgzs