2020年青岛主城区的楼市,“浮山后”是一个绕不开的话题。主城区有改善意向的客户,总要往浮山后跑一跑,但却惊人的发现,如今的浮山后,已经到了“坐三望四”的水平线上。
先是2019年远洋万和城34500高价开盘,逢开必抢……
再是2020年远洋万科公馆高层冲到了38000,市北金地宸悦高层34000、洋房38000不遑多让……
而金茂携最高端产品系“金茂府”布局西韩,铺天盖地的广告中叫嚣着38000-40000,令人咋舌……

数据来源:市场调研
过去的“不想要”真正变成了现在的“买不起”。
浮山后,大有全线冲击40000之势,凭什么?
这里真正蕴含的逻辑是,青岛的改善住宅市场格局悄然间发生了变迁……
传统豪门市南已无地开发,仅有沿海一线高端海景住宅面向全国顶豪销售,代表的绝非青岛购买力。普宅伴随房龄老化,向老破小一步步滑落,仅通过学区及便捷性保值;
新贵崂山麦岛如海信君澜、石老人如银丰玖玺城大有接棒市南沿海豪宅之势。观光园以东的沙子口片区虽环境优美,生活配套却难以跟上,更适宜以“第二居所”形式面向大众。
而崂山境内,“收割机”青铁华润城售罄后,仅区政府旁佳源华府及青大科大崂山校区旁的鲁商、新盘海尔融创崂山壹号院有供货,价格直奔50000而去。

望尘莫及浮山前
青岛主城大众化的首改、二次改善,可承受的总价区间,400-600万可谓匹配度最高,超过600万,市场则走向小众化豪改。
伴随市南饱和化、崂山核心区豪宅化,辖崂山和市北两区交界的浮山后承接主城改善需求也就顺理成章了。
东依崂山核心区,南临浮山,西望市北CBD,北接新都心。浮山后的资源优势确实已跃然纸上。

浮山后全景资源分布图(手绘稿,略有偏差)
1、 教育:富源路小学、合肥路小学、崂山第二实验小学、格兰德小学、同安路小学、浮山小学等,崂山七中、六十七中、第二实验中学、格兰德中学,不可谓不优质不完备;
2、 商超:片区内2014年开业的永旺位居浮山后核心区域,老牌接地气的卜蜂莲花、大润发,远洋万和城项目规划的丽达广场,通达便捷的新都心凯德、崂山大拇指、华润万象汇(规划中);
3、 医疗:浮山后正中心的综合性三甲医院山大齐鲁医院、青岛万千宠爱于一身的三甲妇女儿童医院、东侧临近三甲崂山青医附院;
4、 地铁:规划的地铁4号线途经辽阳路在浮山后片区设置了4个站点;
5、 娱乐:国信体育中心,CBA、中超联赛、明星演唱会,应有尽有。
只是可惜,金地悦峰结案后,浮山后经历了多年的无盘供应期,在2019年重新引人关注时,房价却处在了高位的水平上。
这里面,有新都心核心区开发渐进尾声,挤压了部分改善客户至浮山后的客观背景,有地价推动房价的水涨船高,有2019年市场低谷改善客户观望,积压至疫情后的2020年集中释放需求的行情原因。
在2020年,浮山后突然冒出来5、6个新盘的时间点上,以劲松五路为界,有“崂山情节”的,可供选择远洋万和公馆、东宸府、紫御尚府、金茂府(崂山地块)
1、 远洋万和公馆
可谓是浮山后在售楼盘里地段最优质的的项目之一,周围遍布了金地悦峰、鲁信长春花园、湖光山色、远洋风景、海尔东城国际等“富人区”里。远洋有深耕浮山后多年的历史。配置了4栋9-11层小高+1栋19层中高+4栋26-27层高层。
精装高层售价38000,洋房42000,面积段119-169㎡。
总价段基本来到了450-700万范围内,是整个片区的价格领导者。
项目核心价值点:富人区地段优势;容积率2.8,片区内最低,总共722户;密度保证了舒适度;小区配备了6班幼儿园。
只是装修标准差强人意。

远洋万和公馆区位图

远洋万和公馆鸟瞰图
2、 华新园东宸府
作为本地开发商,华新园开发了良辰美景、花好月圆、东李河岸首府等楼盘,在市区内拿地的实力很强。而此次在崂山开发的东宸府可谓是华新园的品牌升级作品。
临近劲松七路地铁口,可谓正地铁房,距离大润发也是一步之遥。
项目容积率3.1,采取了高低配,由6栋4-5层叠拼/洋房+3栋25-32F高层+1栋安置房组成。高层预计售价35000,目前认筹阶段,109-143平,总价段380-510万。
项目核心价值点:浮山后唯一别墅/真洋房业态(据说内部关系定的七七八八),高层精装标准高,户型赠送大,得房率高;正地铁房;
只是高低配的劣势在于,社区景观基本被吞噬;高层3T6的配置略显拥挤。

华新园东宸府区位图

华新园东宸府鸟瞰图
3、 紫御尚府
北泰置地开发,地块是北国之春的后续,其实早在2017年就已经报规,拖来拖去终于在今年开发了。
项目被规划的同德路一分为二,3.26的容积率,南北各5栋24-25F高层,精装修。122-145平,价格未出。
核心价值点:均好性排布,社区景观面充足,临近合肥路小学,外宣展示的社区大堂、景观及装修良好,但仍需实景展示和样板房验证;
只是户型是硬伤,在一线房企和本土华新园的夹击下,对开发商的经验和实力都有很大的考验,对定价也是一个考验。

紫御尚府平面图

紫御尚府鸟瞰图
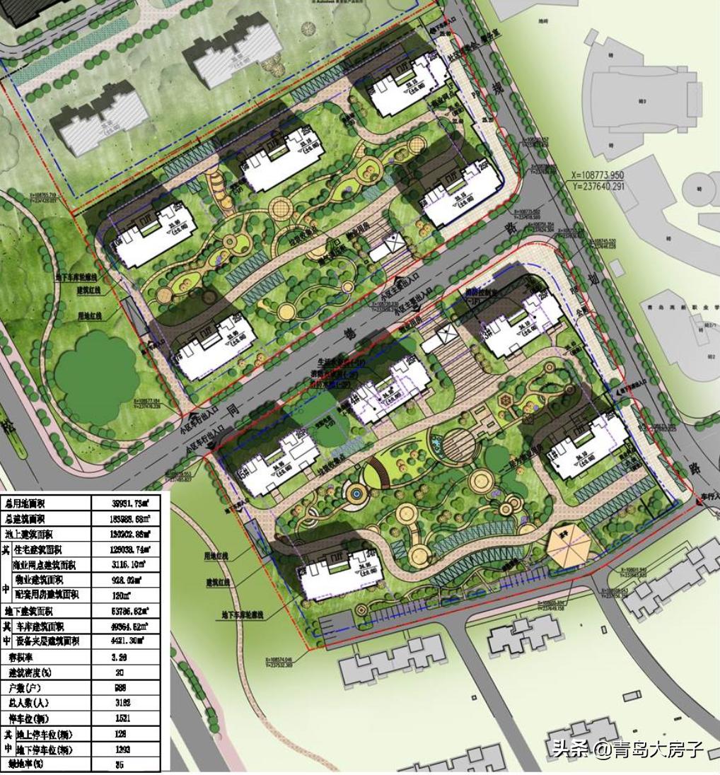
4、 大云谷金茂府
整个7月份,金茂府几乎承包了主城区半数的媒体资源,铺天盖地的广告让人眼花缭乱。而在奥帆中心举办的发布会更是请来了老戏骨吴刚和著名节目主持人杨澜,逼格可见一斑。
西韩地段在整个浮山后片区认知偏弱,此次海尔与金茂的联合操盘采用了金茂最高端的产品系“府”系。王炸是12大科技系统,样板间已开放,说是要验资方可参观。价格释放是38000-40000,以产品之长,补地段之短,硬刚远洋而去。
崂山2个地块容积率4.06、4.38,首开的地块由4栋23-25F+2栋31F高层组成,规划面积119、143、165、184、228㎡,总价段450-900万而去。
核心价值点:“金茂府”系、12大科技系统、金茂、海尔强强联合,浮山后最大体量项目,纯改善社区,23-25F无连廊2T2户设计;社区超大景观面。
劣势同样明显,容积率>4,无地铁利好,西韩的认知度在浮山后偏弱。
坐看金茂府是否可用产品突围?

大云谷金茂府崂山地块平面图

大云谷金茂府崂山地块鸟瞰图
浮山后市北片区同样有4个项目,远洋万和城、金地宸悦、保利大国璟及尾盘的和达君玥。
1、 金地宸悦
与远洋一样,金地也有深耕浮山后的历史,当年悦峰的销售神话仍在脑海前浮现。
金地宸悦地处河马石,容积率3.14,总建面8万方,采用了3栋高层+4栋9-10F小高的配置。高层115-129㎡,精装均价34000,总价390-450万,洋房143-180㎡,精装均价38000,总价540-700万。
核心价值点:金地项目小而精,精装呈现效果好;项目距离地铁近,临近富源路小学,金地浮山后的美誉度。
金地所在的河马石城市界面稍差,单价基本与远洋万和城、东宸府持平。

金地宸悦鸟瞰图

金地宸悦
2、 远洋万和城
2019年浮山后唯一在售楼盘,当前已基本尾盘,仅剩余了部分村里的房子,也已经加推出来,均价33500,比去年便宜了点,也可看作是竞品增多背景下,远洋截留金地、华新园、金茂府客源的举动。
核心价值点:崂山市北交界处,正地铁口,城市综合体,丽达咫尺之遥。
远洋精装标准确实难能匹配改善客户预期,作为片区内容积率最高的项目,部分楼宇不足30m的楼间距让人有点挠头。

远洋万和城区位图

远洋万和城鸟瞰图
3、 保利大国璟
浮山后超级流量盘,保利在叶公馆、天汇之后布局的另一盘,项目由几个小地块组成。已基本接近尾盘,在此不费笔墨。
核心价值点:性价比!性价比!性价比!30000块含精装虽比去年有涨幅,但相比较浮山后其他项目,价格不能再美丽。精装标准与天汇基本一致。保利深耕新都心、浮山后多年。
当然,保利所在的区位相比较其他项目有劣势,城市界面稍显原生态,后期周边环境改善仍需时日(*迁拆**费时费力费钱费律师等等),距离地铁稍远。

保利大国璟区位图

保利大国璟鸟瞰图
4、 和达君玥
浮山后与新都心交界处,和达在新都心成功开发了和达中心城、城上城后的又一项目。目前已至尾盘阶段。
核心价值点:价格——28000含精装,片区内最低价;超宽楼间距,临近新都心与浮山后,可享受两区配套
和达君玥被杨家群片区形成了割裂之势,客户眼里很难将和达看做真正的“浮山后”盘,而临近黑龙江的劣势也让很多客户担心噪音的影响。不过项目已至尾盘阶段时节,性价比也慢慢凸显出来了。

和达君玥区位图

和达君玥鸟瞰图
总之,这几个盘卖完后,浮山后大概率会再次进入无新房可售的阶段,重中之重是,以后也几乎没地可开发了,这8个盘可能是上车浮山后新房的最后机会。而且,不管多么挑剔的客户,面对当前8盘可供选择,总能找到适合自己的。
地段控——远洋万和公馆;
崂山控而预算紧张——华新园或观望紫御尚府;
产品控——金茂府、金地宸悦;
景观控——紫御尚府、金茂府;
低密控——远洋万和公馆、金地宸悦府;
地铁控——远洋万和城、华新园;
总价控——保利大国璟、和达君玥
睿智的您,想好买哪里了吗?