银十也接近尾声了,近日, 10月扬州市区预销售排行榜前十名,以及江都区预销售排行榜前五名都新鲜出炉!
本月的预销售排行榜(按销售面积)中,扬州市区预销售榜首是北区红盘 远洋红星扬州天铂;江都区预销售榜首是雅居乐江城雅郡!

(数据来源于扬州房地产信息网,仅供参考,网签数据可能有延迟)
1、10月扬州市区预销售排行榜出炉!
扬州10月份市区预销售排行榜(按销售面积)的 前三甲分别是 北区远洋红星扬州天铂 、 西区奥园湖滨名都、东南新城碧桂园陵江府 !
TOP1 : 远洋红星扬州天铂 ,预销售 87套 ,预销售面积 9707㎡ ;
TOP2 : 奥园湖滨名都 ,预销售 46套 ,预销售面积 6464㎡ ;
TOP3 : 碧桂园陵江府 ,预销售 46套 ,预销售面积 6097㎡ 。

TOP1:远洋红星扬州天铂
远洋红星扬州天铂 以预销售 87套 、预销售面积 9707㎡ 的成绩, 成为2021年扬州市区10月预销售排行榜第一名!

远洋红星扬州天铂位于城北,距离瘦西湖、蜀冈西峰生态公园不远。 项目总体量约60万方,规划 约9万㎡自持综合体商业,自建幼儿园。

项目打造【两轴·一心·一环·三组合·五园】的景观布局,规划有儿童主题乐园、约800M环氧跑道、颐养空间等,业主不仅能赏园观景 ,也能享受健康休闲运动体验!

远洋红星扬州天铂示意图
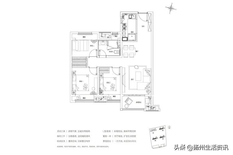
项目住宅建面约97-128㎡,装修交 付,配备 新风、地暖、中央空调、净水系统、智能家居系统五件套。

▼ 建面约97㎡户型-3房2厅1卫

▼ 建面约110㎡户型-3房2厅2卫

▼ 建面约128㎡户型-4房2厅2卫

TOP2:奥园湖滨名都
奥园湖滨名都 以预销售 46套 、预销售面积 6464㎡ 的成绩, 成为2021年扬州市区10月预销售排行榜第二名!

奥园湖滨名都位于西区京华城板块,附近各种配套齐全。
商业 : 京华城、昌建广场、R-MALL、星耀天地、五彩世界 五大商业综合体环绕;
交通 :对外有 沪苏通铁路和宁扬城际, 对内则有 文昌路、站南路、京华城路 等多个交通主干道;
教育 :这里有 扬州育才小学、邗江实验学校、梅岭中学等名校 ,都是扬州知名的教育资源配套。
休闲配套: 新大剧院、扬州体育公园、师姑塔体育公园,周边体育馆、篮球场、足球场、羽毛球场等一应俱全。
生态配套: 明月湖、湖滨公园、揽月河风光带等。
奥园湖滨名都项目共分A、B两个地块开发,A地块为商业地块,为3.5万方邻里中心;B地块为高端精品住宅产品。小区内景观设计与北侧揽月河风光带交相呼应,设置儿童活动场地、公共活动场地、休闲娱乐广场等。

目前项目在售户型建面约145-160㎡,即将清盘!
▼建面约145㎡-四室两厅两卫

▼建面约148㎡-四室两厅两卫

▼建面约151㎡-四室两厅两卫

TOP3:碧桂园陵江府
碧桂园陵江府 以预销售 47套 、预销售面积 6209㎡ 的成绩, 成为2021年扬州市区10月预销售排行榜第三名!

碧桂园陵江府位于广陵区江都南路与七里河路交汇处。
碧桂园陵江府目前在售的是 二期公园里项目 ,二期主力产品为 5层洋房,容积率约1.6,让业主尽享悠然舒适的居住体验!

碧桂园陵江府示意图
二期南侧,就是沿七里河而建的 国防主题公园,总占地面积约3.04万㎡,相当于72个篮球场大小,目前已经建成开放。
另外, 园区内打造多种绿化、立体水景,外有国防主题公园,内有社区美景。

碧桂园陵江府示意图
另外,碧桂园陵江府位置优越,周边配套也在不断完善!
1、交通路网升级
9月底, 市区快速路北线通车,扬州向快速路成环又迈进了一大步!而碧桂园陵江府,就在“环内”!其交通便利性,可见一斑!

2、教育暴风提档
①、东花园小学迁建,规模为8轨48个班,刚刚投入使用!
②、育才实验学校预计今年下半年开工建设,选址在开发路以南、汤汪路两侧地块,距离碧桂园陵江府项目直线距离仅约800米;
③、碧桂园陵江府旁规划的公立幼儿园也将在今年开建,建成后,陵江府小业主们在家门口就可以上学。
此外, 文峰小学、沙口小学也都进入了教育集团化时代!加上朱自清中学、新汤汪小学、育才实验学校等,东南新城教育将攀上新高峰!

3、医疗设施逐渐完善
①、广陵区中医院及广陵区公共卫生中心异地新建
该项目位于广陵区东南新城,横九路以南、规划路以东、开发路以北、文峰路以西, 项目投资约5.5亿元,面积约55807.72㎡,据了解,项目预计下个月开工,计划2年建成!

图|东南新城公众号
②、汤汪卫生服务中心异地新建
项目占地16亩,总建筑面积2.8万㎡,总投资3000万元,今年一季度开工建设。

图|东南新城公众号
③、华南康养中心
项目位于文苑路南侧、渡江南路东侧, 占地面积17亩,总投资2.2亿元。

图|东南新城公众号
2、10月扬州江都区预销售排行榜出炉!
扬州市江都区10月份预销售排行榜(按销售面积)的前三甲分别是 雅居乐江城雅郡 、 恒悦华府 、 中集禹洲江山赋 !
TOP1 : 雅居乐江城雅郡 ,预销售 81 套 ,预销售面积 7748㎡ ;
TOP2 : 恒悦华府 ,预销售 61套 ,预销售面积 7416㎡ ;
TOP3 : 中集禹洲江山赋 ,预销售 23套 ,预销售面积 2861㎡ 。

雅居乐江城雅郡以预销售 81套 、预销售面积 7748㎡ 的成绩, 成为2021年扬州江都区10月预销售排行榜第一名!
上个月江都区的预销售榜首也是雅居乐江城雅郡,成绩非常亮眼!

雅居乐江城雅郡 位于 扬州市江都区龙城路与金湾快速路交叉口。

交通: 项目附近有 文昌路、万福路、龙川路、金湾快速路等主干道汇聚于此 ,另外项目 距离扬州高铁东站也非常近, 周边交通非常便捷。
教育: 江城雅郡附近学校众多,有 江都区实验幼儿园、江都区实验小学、江都区第三中学等。

商业: 周边大型商业体有 金鹰国际购物中心、佳源广场 ,附近还有 大润发超市,有农贸市场 ,不管是日常生活还是高端购物需求,都能满足。
医疗: 周边还有 第三人民医院 这样的重要医疗配套。
生态: 江城雅郡周边生态环境也很优越,有 龙川体育休闲公园、南水北调源头公园、廖家沟城市中央公园、马可波罗花世界等 。

廖家沟/图虫创意
目前项目三期在售,户型建面约85-175㎡!
建面约85㎡

建面约115㎡

建面约122㎡

来源:扬州楼市