说在前面:
我是这篇案例的设计师,也是本文的作者亮子。做为设计师可以结交待我如知己的客人是何等的荣幸,我记得第一次滑雪上终极赛道就是我亲爱的客人耐心教导后的成果,我也被他誉为最有天赋的学生,哈哈。我们的相识也是朋友的推荐,很感激这种相遇。附上一张我们去滑雪的亲密照,他的眼里满满都是我,哈哈。好了言归正传我接下来进入正题。

客人诉求:
- 需要满足可以同时容纳两个区域的休息功能。
- 需要尽可能的大的调整空间。
- 要有足够的私密空间让会客区和生活区可以很好的分离开。
- 厨房功能要强大是生活重点。
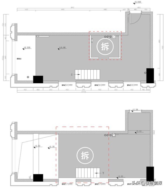
户型图

原始户型需改进缺陷。
- 入户门太过直白一揽无余,厨房位置不够合理。
- 一层卫生间的位置不合理,无形压缩了使用面积动线太曲折。
- 挑空区域被压缩的过于狭小没有通透的视野。
- 房屋层高局限4.1米,隔层均分会降低舒适度。

改造后解决方案:

- 门厅化零为整,在增加独立厨房的同时也营造出了一个独立的门厅。
- 卫生间的位置前置,满足功能的同时尽可能大的压缩了使用面积释放出空间给动线提高生活品质。
- 二层的重新整合给一层客厅留下了足够的挑高,大大提高了生活品质。
- 由于房子层高只有4.1米如果常规均分将很难有舒适高度,我们做了立面空间的取舍巧妙的应用主卧床体的抬高,来弥补楼下餐厅的常用高度。
接下来我们通过几张原始户型的现场照片感受一下房屋未改造前的状态。没有得到释放的空间看似增大了二层的实用面积但是格局及其不合理,也大大的压缩了loft应有的房高特性。



通过厨房墙体的重新分割,我们获得了一个独立的玄关区,最大增程度的增加了鞋帽储物,同时也匹配了换鞋落座的功能。

门厅和客厅的衔接处原有是一层卫生间,延长了去客厅的动线。我们增加了120厘米的地台:
1/ 是满足走下水的管道用。
2/ 压缩走廊高度更能彰显客厅的挑高优势。
3/ 卫生间的小变动大大的提升了动线的合理性。

沙发的组合形式也是结合现场特点,利用本身就有太高的地台做内嵌设计,多出的空间正好取代沙发边柜的功能,目的也是尽可能的释放可活动空间。

房屋原有的地台在设计初期感觉很突入,在梳理后考虑空间的特殊性保留了地台高度,正好通过木板的应用和客厅地砖做出反差,也可以拥有席地而坐的生活随意性。

客厅是一个居所里很重要的互动空间,我们摒弃了传统的电视组合关系想营造更随意的会客场景,把顶面和墙面连为一体增加层次的同时也拥有了观影的功能诉求。


墙体大面积应用灰色艺术涂料,和白色墙体增加反差。增加肌理应对单一的视觉疲劳。


餐厅是主要活动区域,由于房高局限性我们做了立面空间的取舍巧妙的应用主卧床体的抬高,来弥补楼下餐厅的常用高度。保证用餐区在2.3米的舒适高度。

由于空间的紧凑,我们在楼梯的设计时借用两部台阶的高度差在不占用空间的同时,也满足了4人位的落座需求。通过设计细节给空间应有的智慧。

楼梯的下方也很好的利用增加洗衣功能。

楼梯的悬挑是建立在楼板立柱向上与顶面固定解决承重的同时,来做借力满足视觉通透性。厨房门在楼梯下方,用与墙面的同样材质来涂刷门体,增加统一性也更美观。

厨房利用原有的走廊做成密闭的中厨L型的台面更实用收纳。


客厅俯瞰图

拉上窗帘我们就变身观影模式。

床只有地台和床垫组成,床头柜也是借用衣柜的空间组成。

主卫,及衣帽柜。

衣柜别有洞天,打开门保留了一个暗室。

一层客卫为了释放更多公共空间,尽可能压缩了卫生间面积,只保留水盆及马桶的功能。


观影模式。
施工现场:




碎碎念,因为改变生活我们相识并成为了好友。多了更多的语重心长,认真的聆听生活感悟也有助于我们更好的成长。感恩每一次遇见。“无艺术,不设计!”我们将进行到底。最后祝愿所有的客人生活愉快,幸福美满!

编辑留言:
大家好,我是文章的编辑雄大,每次收到亮子的设计案例,我都带着期待的心情去阅读修改。与其说是修改文字,其实我是在聆听他与每户业主家的故事。就如他在文初所欲言,他和服务过的业主几乎都成为了“良师益友”。不信?你可以看看下面这些他与业主之间的故事,你肯定会认可我的想法:
73㎡的常规两居如何变得趣味横生?
三居变两居的取舍,餐厅也可以成为焦点
生活简约,但爱丰满
设计一套房,交一个好友,用心了,才能做出满意的设计
这就是亮子,一位在北京的独立设计师,做了10多年设计的他,多年前开始做自己的设计工作室,如今积累了一大批好口碑的客户,爱画画的他有一个习惯,就是会根据客户家的空间风格搭配为自己的客户量身绘制的一副油画,作为送给业主的乔迁之喜的礼物。亮子为全国地区的《装修情报》读者粉丝开设了“北京独立设计师读者群”,想找他聊聊设计的,私信小编哟~