小区名称: 星城国际
装修风格: 现代简约
面积:120平
设计师: 苏航
设计师微信ID(1383811419)
装修公司: 美巢装饰
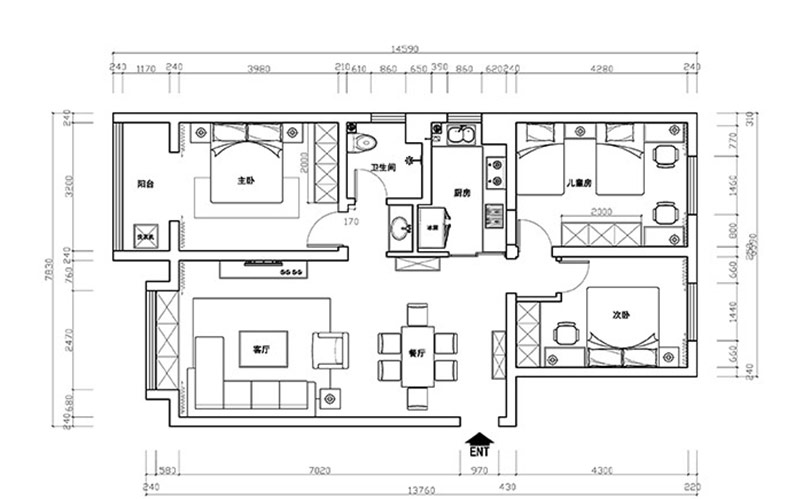
本案例突主要突出了现代的极简理念,以功能化为主。空间布局不合理,厨卫改动较大,厨房改后面积增大,合理利用空间,卫生间改为干湿分离。
案例说明:整体空间看起来连贯而富有节奏,简约而不简单,在现代生活节奏快,人们总想找到一处清静之地,在这里可以让我们身心放松,平和的思考。

郑州星城国际120平三室两厅现代简约装修效果图案例——客厅效果图,精心布置,电视墙选用微晶石与镜子两种材料,反射性极强,使空间更加明亮通透,原墙暖色乳胶漆与白色微晶石之间冷暖对比,明亮不冰冷。

星城国际3室2厅装修现代简约效果图样板间方案——餐厅全景效果图

星城国际三室两厅现代简约装修120平效果图案例——客餐厅布局效果图

郑州星城国际120平现代简约装修案例——平面布局图

郑州星城国际120平三室两厅现代简约装修案例效果图——客厅全景布局
▼▼▼设计师服务河南全省地区
如果你正打算装修,添加设计师微信:13838114119(长按可复制)
了解更多装修攻略和案例设计可关注微信公众号:zzfwzj(长按可复制)