楼盘名称:景华领莑(景华春天家园)
项目地址:龙岗吉华路与新龙路交汇处(下水径A出口附近)
占地面积:13609.93m²
建筑面积:97824.8m²
开发商:深圳市景华投资发展有限公司
楼栋数:2栋
总户数:430户(商品房300户,保障性住房130户)
停车位:531个(车位比约0.9)
绿化率:40%
容积率:6.02
产权:70年
一、项目简介
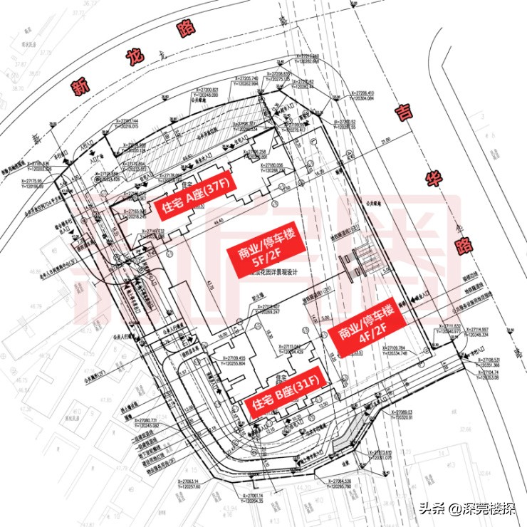
景华领莑(又名景华春天家园),是布吉大众山工业区旧改,项目位于吉华路与新龙路交汇处,距离下水径地铁站300米左右。景华领莑建设用地13609.93㎡,总建筑面积97824.8㎡,其中住宅(含保障性住宅)建面43534㎡,商业建面21438㎡,日照中心450㎡,公厕80㎡,物业服务用房170㎡。

景华领莑共规划2座住宅塔楼,其中A座37层,建筑高度119.7m;B座31层,建筑高度99.9m,另外项目还带有4-5层的商业裙房,以及2层地下室。其中裙房1至3层为商业,4至5层以及地下2层为车库,6层为架空层及花园,7层以上为住宅和保障房。


根据规划信息显示,景华领莑住宅共计560套,其中商品房住宅430套,保障性住房130套(含36.16平52套,67平26套,67.21平52套),保障性住宅房全部位于B座。另外,项目停车位531个(地上277个,地下254个),车位比约0.9。

8月份走访该项目时,景华领莑楼栋主体已全部封顶,正在进行展示中心及道路的施工,现场销售还没有进场,咨询电话也还未对外公布。目前现场展示中心及样板间开放中。


景华领莑样板间装修中

景华领莑实景图
在施工现场,小编还发现项目样板间疑似在装修中,外墙的玻璃已经装上,位置在11-12楼左右。从工程进度来看,景华领莑最快或在9月份可开放展示中心,10月份可入市。
二、配套和环境
1、交通配套
景华领莑门口即是吉华路主干道,自驾可至布龙路,从而转水官/清平高速。公共交通方面,项目100米范围内有布吉客货运输站,1公里范围内的公交站台多达10几个,可直达龙岗、罗湖和福田各区。

另外,在轨道交通方面,项目距离地铁5号线下水径A出口约300米,搭乘2站地铁可抵达深圳东站火车站,或者是地铁布吉站,布吉站目前可换乘3号线,未来还可换乘14号线,14号线是从福田通往坪山的1条快线,目前已经动工,预计2022年通车。

2、周边环境
景华领莑背靠下水径村,吉华路一路之隔是长龙村,周边主要以农民房和小产权房为主,整体环境较为破旧和杂乱,未来环境改善方式只能依靠旧改。

目前片区内旧改已列入更新单元的有8个,申报更新的有7个,总更新面积达270.8公顷。截止至今,已经动工的旧改有大众山工业区旧改(景华领莑)、金稻田旧改(万科红、百合公园小镇、信义金御半山)、松元头旧改(里城玺樾山)、招商三联旧改、佳兆业南门墩旧改等。


而紧靠景华领莑的下水径片区旧改、大靓花园旧改以及布吉一村东心岭旧改都还处于未动工状态,所以短期内周遭环境或难以改善。
3、学区学校
根据教育局划片,目前景华领莑的小学学区属于水径小学,水径小学占地面积13286㎡,建筑面积为8423㎡,共有26个教学班。

而景华领莑的初中学区目前是布吉中学、龙岭初级中学公办班(民办学校),其中布吉中学占地面积46499m²,建筑面积30000余m²,有42个教学班;龙岭学校占地25000㎡,是一所9年制学校,其中初*共中**有24个班,分为公办班和民办班,根据今年9月的录取情况,公办班共有266个学位。

根据2017年四大版录取率,龙岭学校在龙岗区排名第四,仅次于百合外国语、深圳中学龙岗初级中学以及龙岗外国语学校。而布吉中学的排名则靠后,在龙岗区排第39名。

4、周边商业
景华领莑周边多是农民房和小产权房,因此商业不发达,以低端的住宅底商为主,200米范围内有肉菜市场以及生活超市,而稍微大型一些的综合超市像华润万家,则需要步行700米至海心汇福园小区,或者是1公里以外的翠枫豪园小区。

片区内的大型商场分布在木棉湾和百鸽笼站附近,景华领莑距离布吉天虹约1.9公里,驾车需11分钟,步行需25分钟;而距离华润万象汇约4.3公里,驾车需22分钟,地铁3个站。

三、房价预测
目前景华领莑周边在售的新房住宅共有7个,单价从4万/平到6.3万/平不等,且基本是带装修交付。其中,“近地铁+大社区+带学校”的楼盘单价在6万/平以上,符合该属性的楼盘有万科麓山、信义金御半山3期;“带装修+近公园”的楼盘单价在5万/平以上,符合该属性的楼盘有里城玺樾山、东方盛世花园二期;“小户型+近公园”的楼盘单价也在5万/平以上,符合该属性的楼盘有凯旋TRC;其余地段配套或交通户型等优势不太明显的楼盘,价格则相对较低,单价在4万/平左右,有花语馨花园、长庆小时代。

从片区内挂牌的二手房来看,房源主要集中分布在上水径和布吉关附近,下水径和长龙周边的二手房住宅则相对较少。


从价格方面来看,根据楼龄的不同,上水径片区二手房价格在2.9-6.2万/平之间,整体均价为4.3万/平,其中挂牌价相对较高的是万科麓城小区,单价在5万/平以上。
布吉关片区二手房价格在2.8-6.3万/平之间,整体均价也是4.3万/平,其中挂牌价相对较高的是半山道1号礼宾府、万科红小区,单价在5万/平以上。
而下水径和长龙片区因为商品房住宅较少,且楼龄较高,所以二手房挂牌价均不高,据链家网显示,该区域内的二手房价格在2.8-5.1万/平之间,整体均价在3.7万/平左右,其中挂牌价相对较高的是尚水天成小区。
目前景华领莑的户型信息及交楼标准还尚未可知,但综合周边一二手房的价格走势,以及近地铁的交通优势,景华领莑住宅带装修价格预计在5-5.5万/平之间,当然这只是小编的猜测,具体还要参考最终的价格备案。
四、小编点评
1、景华领莑100米范围内有布吉客运站,300米范围内有地铁5号线下水径站,同时搭乘2站可至深圳东站,或在布吉换乘地铁3号线,以及未来的14号线,交通非常便利。
2、景华领莑东侧毗邻吉华路,车流量较大,其余三面均有大片农民房,周边环境相对杂乱,且短期内改善的可能性不大。
3、片区内主要以低端的住宅底商为主,距离最大的综合超市华润万家下水径店约700米,距离大型商场天虹及华润万象汇则分别要2公里和4公里以上,购物不算太方便。
4、项目体量较小,还带近1/3的保障性住房,因此可售房源比较少,同时车位比也不足1:1。