
北宸之光
The Light of Polaris
中国,沈阳
Shenyang, China
为政以德,譬如北辰,居其所,而众星共之。
——《论语·为政》
北宸之星,亘古恒久,千百年来为旅人指引方向,不动其位,不移其情。
引言
“ INTRODUCTION”
_
项目设计结合大区形象,采用现代化设计,并融合中国传统文化“折扇”的设计元素,体现了传统文化元素与新世纪材料的相生相衍。
干净大气的立面竖向折扇,简洁大气的顶面设计,与两边商业虚实结合的体块关系,设计用理性的线条韵律表达着如诗般的传统文化美学。

项目背景
“ PROJECT BACKGROUND”
_

北宸之光位处于洪、沈北、皇姑三区交汇处,临近大学城,居住氛围初步成熟。北侧为城市主干道正良一路,沿街的布局为城市展现了崭新的脸谱形象。

设计理念
“ DESIGN CONCEPT ”
_
作为社区面向城市的交往客厅,项目采用具有中国传统文化符号的“折扇“为设计元素,造型沿着整体弧面展开,以大开大合之势将建筑两翼向四周生长舒展。

位置设于正良一路南侧,沿街展示面采用铝板+玻璃的组合方式,形成“一折一合”、“一明一暗”的虚实对比关系。

◎体块生成

生而文雅,收放有度,开之则用,合之则藏,扇面可书画,扇骨可雕琢,为文人雅士宠
脸谱形象
“ FACEBOOK IMAGE”
_
* “宅”的第一眼印象
* “家”的第一声问候
7m的悬挑雨棚,由里向外逐渐卷起,辅以精美的网格亮化设计,完整覆盖入口处的泊车空间,以敞开姿态、温馨光影保证居民们无风雨入园,为人们带来归家的第一声问候。

同时通过曲面的抑扬关系突出形体的纯粹与飘浮之感,以自然流淌的弧线将建筑体量轻轻托起,打造云上轻阁的缥缈意境。
深灰色的铝板锐利有力,通透的玻璃展现生机,再配上弧形的雨棚,既有坚硬,又有柔软,给人以高雅气质。


大面积的玻璃给予了通透感,在一定程度上模糊了建筑内外的界限,使社区入堂成为一个有机的整体空间。
黄昏时刻,伴随点点星光,透露出室内的暖黄色光影,大厅中的人们或坐或立,或交谈或嬉闹,使得漂泊的、疲惫的人们终于有了一种归家的幸福感。

建筑空间
“ BUILDING SPACE ”
_

入口处7m的悬挑雨棚,像宽容的慈母容纳了归家的人们,为居民们遮风挡雨,撑起一片天地。
沿着归家的小道,居民们通过玻璃的延展效果,感受到家的温暖,达到共情的效果,在这里,承载着归家的第一道温暖。

前场
“ FRONT COURT ”
_
步入大堂,映入眼帘的便是亮丽璀璨的社区大堂。大堂设有物业服务前台,提供贴心服务,并设有儿童活动区、快递收纳等,兼具美学仪式感与生活功能性。光滑的大理石地面、深灰色金属铝边框,辅以强烈既视感的星空吊灯,呈现了富丽璀璨的大堂空间。
在这里,承载着归家的第二道温暖,为疲惫的归家者们带来一分温度与感动。

◎星空吊灯

◎儿童活动区

◎快递区及拆包区
展示
“ 掬一捧声色光影 俯仰间观星戴月 ”
_
随后进入展示区,光源的通达性令人眼前一亮,多层次的灯光设计与材质搭配,很好地把控了空间的节奏和温度。
顶部的主灯以多重灵动的弧线,建立轻巧现代的空间氛围,打破既有城市空间的想象,解构当下风潮。洽谈区借由自然光线和建筑空间的铺层,提炼空间结构,以顶棚波浪金属板材质进行多次映射,幻化出光的场域。

主灯设计以星辰之光为题,通过大小光源交相辉映,打造星河摇曳生姿,俯拾之间见日月的光影效果。
材料与结构
“ MATERIALS AND STRUCTURES ”
_

一层建筑玻璃采用高透玻璃,展示室内丰富空间,增强室内丰富空间的展示性。
二层建筑玻璃采用透明度渐变的玻璃,由中间向两侧透明度递减,以增加建筑视觉上的序列性。


◎雨篷仰视图
入口雨棚吊顶材质选用浅灰色冲孔铝板,冲孔铝板采用一定冲孔方式,表达入口的变化及昭示性。
结语
“ CONCLUSION ”
_
城市的不断更新与发展,人们的生活需求也不断发生着改变,北宸之光以中国传统文化符号的“折扇“为设计理念,结合现代化的铝板和玻璃材料,精心打造众星心向,时代坐标的北方明灯,为繁忙城市的追梦人铺就一场星光之旅。
北宸之光的设计探索着关于人居、关于生活方式的新课题,启发着设计师对于未来场景的探索与想象,而我们将在这样的探索中坚定方向,以北宸为始,“居其所而众星共之”。

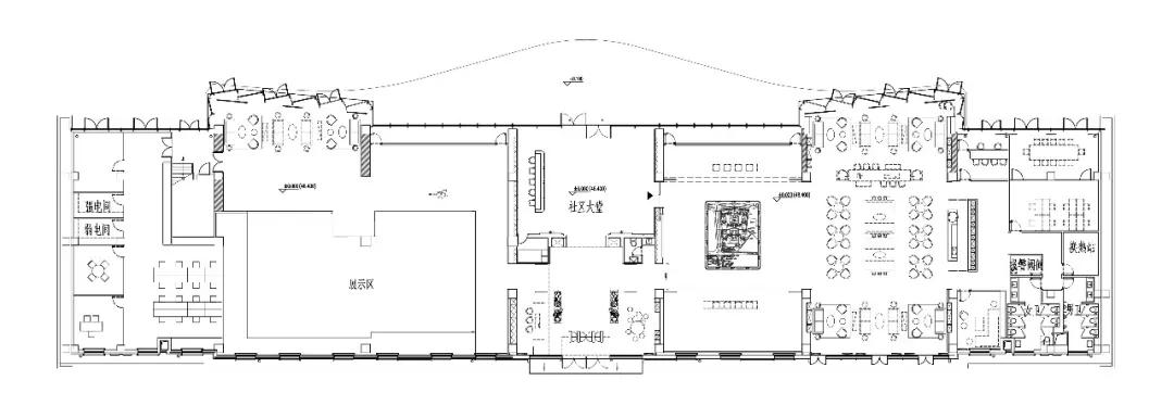
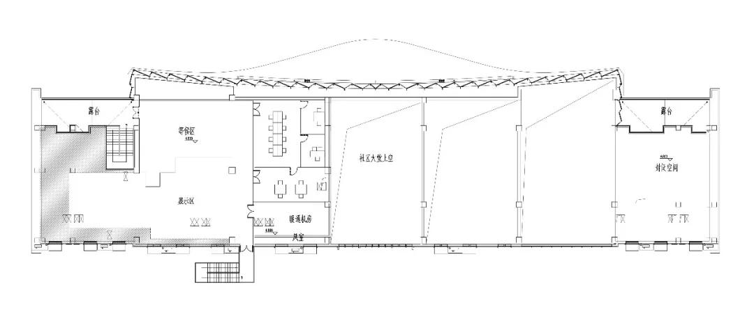
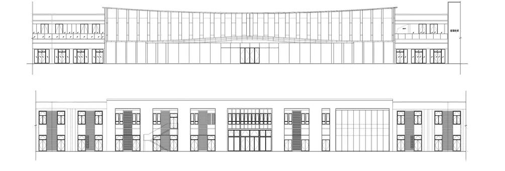
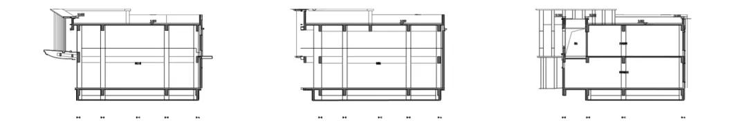
技术图纸
“ TECHNICAL DRAWINGS ”
_

◎一层平面图

◎二层平面图

◎立面图

◎剖面图
工程档案
项目名称 | 沈阳万科北宸之光
项目位置 | 沈北新区正良一路
业主单位 | 沈阳万科房地产开发有限公司
建筑设计 | 上海日清建筑设计有限公司
项目总负责 | 宋照方
设计团队 | 易爱生 *克王**文 程锐 汪晔 李文科 张腾腾 崔娟
室内设计 | 上海意嘉丰室内设计有限公司
景观设计 | 凯盛尚景(北京)景观规划设计有限公司
建筑面积 | 2462.58㎡
建筑摄影 | 行知影像