刀把型户型,又成为手枪型户型,是设计的难点,很多人购房的时候,因为考虑风水等问题,一般会刻意避开。但在老外设计师眼里,同样也能够设计出精彩来。
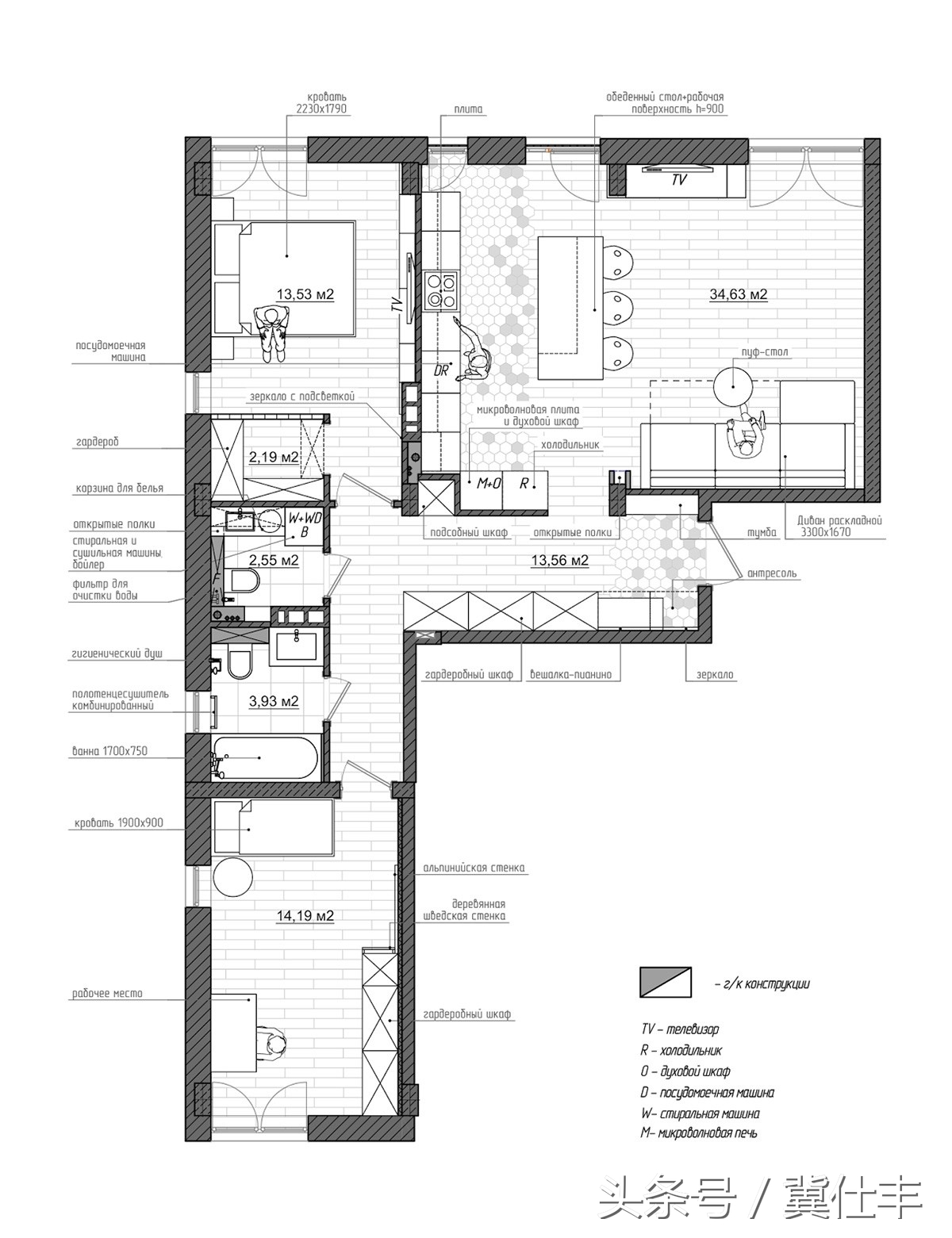
接下来,秀巢网小编就和大家一起分享一下这个案例,看老外设计师如何处理这样的户型的,对户型图感兴趣的,直接翻到最后一张图就可以了。

客厅,青色系,几何构图

客厅的另一侧是厨房区域

电视安装在柜子里

厨房区域的瓷砖很出彩,让整个空间有着与众不同的韵味

壁灯墙上的一束黄漆,让整个墙面多了几分活跃

玄关柜子很实用,也很有美感

玄关处的地砖也采用了菱形铺贴的方法,很出彩,尤其是和地板的结合,很有匠心

灰色墙面的HI字,使用了LED材料,很有艺术感

卧室的床头背景墙,使用了菱形材料,立体感很强,让这个卧室很有品质感

卧室的电视墙也采用了同样的菱形材料

卧室开辟了一个衣帽间,很紧凑,透光玻璃的运用,漂亮的同时也兼具实用性

这就是温馨可爱的儿童房了

丰富的墙面,有涂鸦板,有漫画墙

儿童房的小床也使用了青色系的床品,很温馨

黄色的椅子和书桌腿,再加上红色的家具配饰,色彩也很丰富

卫生间电器很紧凑的摆放

卫生间的储物功能很强大

另一个坐便器采用挂壁安装,后面的空间也很好的利用了起来

淋浴房

浴室柜全貌

典型的刀把型户型
对于一个这样的89㎡户型的房子,而且还属于刀把型,老外设计师操刀设计的时候,重点对功能进行了重新划分,动静分区很合理,在设计手法上,除了完美的配色之外,还采用了大量的几何图形进行装饰,并对瓷砖等装饰材料进行了重点的选择,高颜值的卫生间也增色不少,儿童房设计的也很满足孩子的天性,最终,不但掩盖了这个户型的缺陷,还让这个房子有着与众不同的魅力。
更系统的家装知识分享地——秀巢网微信公众号:shownest(长按可复制)