



贵阳是座正在全面发展且颜值与气质并存的山水名城。
我们的住宅区地理位置优越,自然风光优美,面积虽小,却做到了景观层次丰富、功能全面,给业主带来绝佳的居住体验。
历时六百多天,在山水林之间,雅居之境,悄然现身。

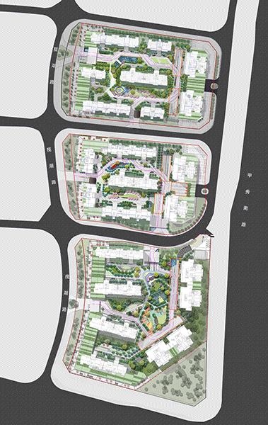
【贵阳龙湖·景粼天著】项目位于贵州省贵阳市南部,北接阿哈湖国家湿地公园、南望花溪国家湿地公园、西接天河潭风景区、东临十里河滩,集商务办公、金融商贸、展览展示、公共服务为一体,是区内功能和形象核心,堪称贵阳南端新门户,是贵阳打造高品质的产品和高素质的物业服务的首选优质区域。

▇ 本次项目主要以F地块和G地块为主要设计版块
【贵阳龙湖·景粼天著】大区景观整体简约中不失气质,寻觅当地自然美学之名;我们希望打造一个理性却不张扬的社区,不仅能给人们带来家的温暖,更重要的是赋予一个自然与端庄并存的生活栖息空间。设计团队希望通过营造大自然的清新感,带入现代城市之中,让人们感受更多不同的生活空间,在相互交融的居住空间里,满足人们对家的追求。


F地块名为悠澜,在景观手法上以小见大,打造的不只是景色优美的住宅区,而是一种价值观,是用世界的语言叙写贵阳故事,是从人的角度出发诠释现代化的居住文明。



“竹柏荫于层石,绣薄丛于泉侧”,层级水景结合案名景墙,以及周边精致修剪的灌木,共同打造安静雅致的居住氛围。

F地块消防道和登高面面积较大,我们巧妙的利用宅间空间,布置小面积的活动场地,满足全龄段活动的需求。采用安全的EPDM材质,体现人性化关怀。

入户空间旁的植物组团让业主犹如居住于自然之间,门口的草坪灯既可以照明,又不会影响到低层住户休息,细节处体现人文关怀。

我们在设计上将当地特色融入景观的同时结合秋海棠、芒草、鼠尾草等多种多样花草的种植和点缀,用各具特色的景致为社群的生活增添色彩,打造活泼温馨的住宅景观。


G地块名为水云,比F地块面积更大、功能也更加全面。该项目景观在现代美学的基础上,实现以人为中心,满足居民对居住环境从生理、安全、社交、休闲和审美五个层次的需求,打造多功能的居住社区。

”主入口门楼“同样采用水景结合格栅的设计,给居民以尊贵的视觉感受;人车分流,智能管控,保证安全出行和归家。


LOGO墙一侧为延伸感的条形水景,结合公共客厅另一侧为云朵造型的廊架,铁艺构架的竹子美学结合水景设计,下临水,上凌云。


都说“远亲不如近邻”,邻里关系需求在居住环境中也是至关重要的,居民相互认识、帮助、交换思想和信息交互方面起着重要的作用,社群特设邻里花园,以丽莎香茶菜、秋海棠、绣球花、水果兰 、新西兰亚麻、花叶玉蝉花等多种花草打造多重丰富花境,提升居民居住体验。


草坪间的汀步造型采用了贵阳当地传统的竹节纹理,加上草坪上的互动雕塑,以及大面积黄色木春菊的种植,绿化环境的同时,满足居民审美需求、提升居民的幸福感。


景观除了现代简洁之外,完美的结合了生活功能需求,设置了环形健康跑道,儿童活动区,老人健身区及青年活动的区域。场地入口的温馨提示,看护的休憩空间,体现了居住区的温馨氛围。



【贵阳龙湖·景粼天著】项目的大区的景观设计,是考虑空间和人的关系,从动线、节奏和逻辑多方面出发,以人文、历史、空间、环境、艺术为线索设计出多元而独特的生活社区。
项目详细信息
项目名称:贵阳龙湖·景粼天著
设计单位:易境设计
设计团队:刘琨 郭美娜 何丽丹 王青岚 许浩杰
项目人员:雷红博 何欣奇 唐立兵 冯婕 陆媛琪 刘鸿瑞 刘静 沈朝标 姜俊
景观面积:F地块11514㎡,G地块24452㎡
项目客户:贵阳龙湖景观部
摄影团队:桔伴视觉摄影 左斯洋
项目设计&完成时间:2018年 & 2020

文字排版 /上海易境
图片摄影 / 上海易境