石家庄现代简约大宅设计效果 (石家庄想象国际100平两居室装修)

小区名称:想象国际

小区面积:156平米

风格:现代简约

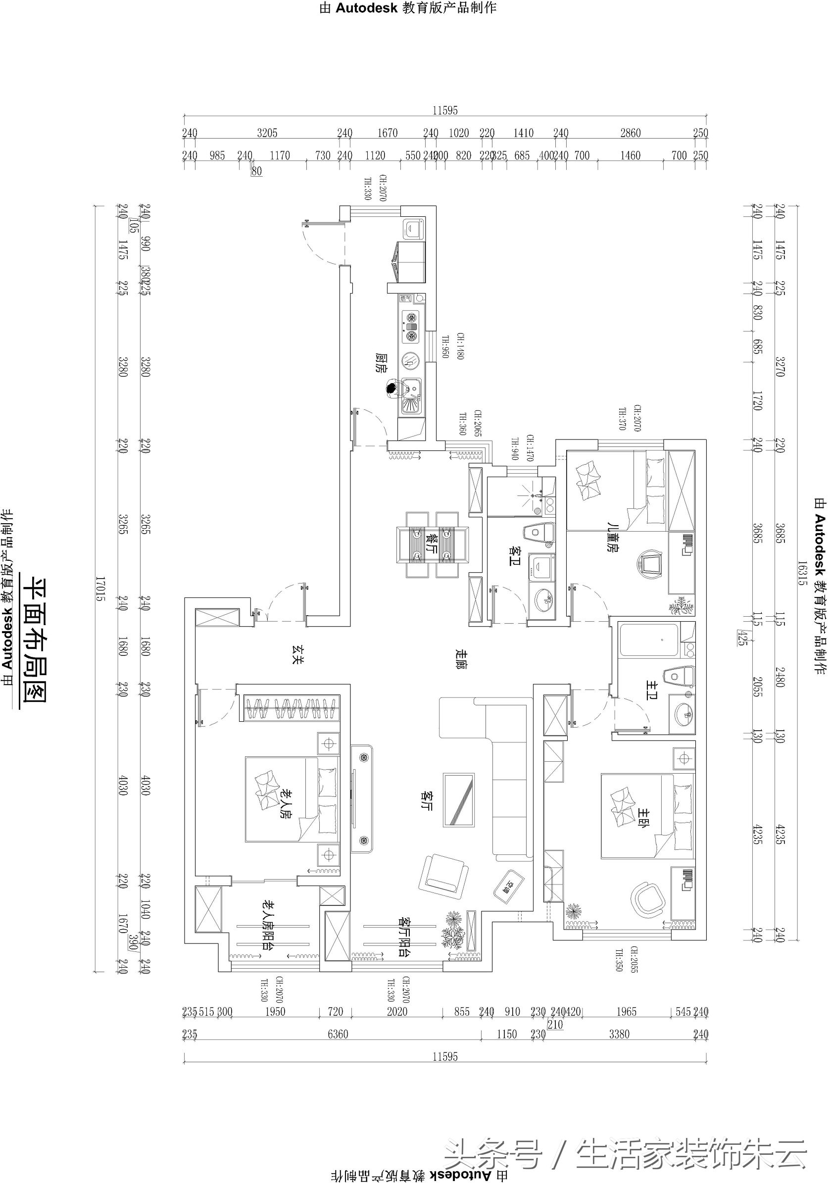
石家庄现代简约设计案例,石家庄想象国际装修效果图

石家庄现代简约设计案例,石家庄想象国际装修效果图

石家庄现代简约设计案例,石家庄想象国际装修效果图

石家庄现代简约设计案例,石家庄想象国际装修效果图

石家庄现代简约设计案例,石家庄想象国际装修效果图

石家庄现代简约设计案例,石家庄想象国际装修效果图

石家庄现代简约设计案例,石家庄想象国际装修效果图

石家庄现代简约设计案例,石家庄想象国际装修效果图

石家庄现代简约设计案例,石家庄想象国际装修效果图

石家庄现代简约设计案例,石家庄想象国际装修效果图

石家庄现代简约设计案例,石家庄想象国际装修效果图

想了解装修,设计的朋友可以加我的微信号15233640926,(微信和手机同步哦)也可订阅我的头条号给我评论留言讨论哦~~~可以免费给您提供方案和报价哦