门窗杆件截面惯性矩 I 和抵抗矩 W 是建筑门窗抗风压计算的重要参数,那么如何读取门窗型材惯性矩 I 和抵抗矩 W 呢?本期聊聊这个话题,不妥之处敬请指正!
— 1 —
门窗型材截面I和W值有何作用?
门窗幕墙杆件结构设计时我们主要关注其强度(以应力表征)和刚度(以挠度表征)。
铝合金门窗、塑料门窗、玻璃幕墙等相关标准规范中均给出了杆件强度(应力)和刚度(挠度)计算公式。
铝合金门窗杆件强度(应力 σ )计算公式:

式中:
M x——杆件绕x轴的弯矩设计值,N·mm;
M y——杆件绕y轴的弯矩设计值,N·mm;
W x——杆件截面绕x轴的截面抵抗矩,mm3;
W y——杆件截面绕y轴的截面抵抗矩,mm3;
γ ——塑性发展系数,可取1.0;
f ——型材抗弯强度设计值,N/mm2。
铝合金门窗杆件刚度(挠度 μ )变形(简支梁矩形荷载为例)计算公式:

式中:
q k——矩形荷载的线荷载标准值,N/mm;
Q k——矩形荷载的标准值,N;
l ——杆件长度,mm;
E ——材料的弹性模量,N/mm2;
I ——截面的惯性矩,mm4。
由上述公式可知,截面惯性矩 I 和抵抗矩 W 是门窗幕墙杆件强度和刚度计算的基础参数,对于门窗幕墙抗风压性能计算十分重要。
— 2 —
如何读取门窗型材截面I和W值?
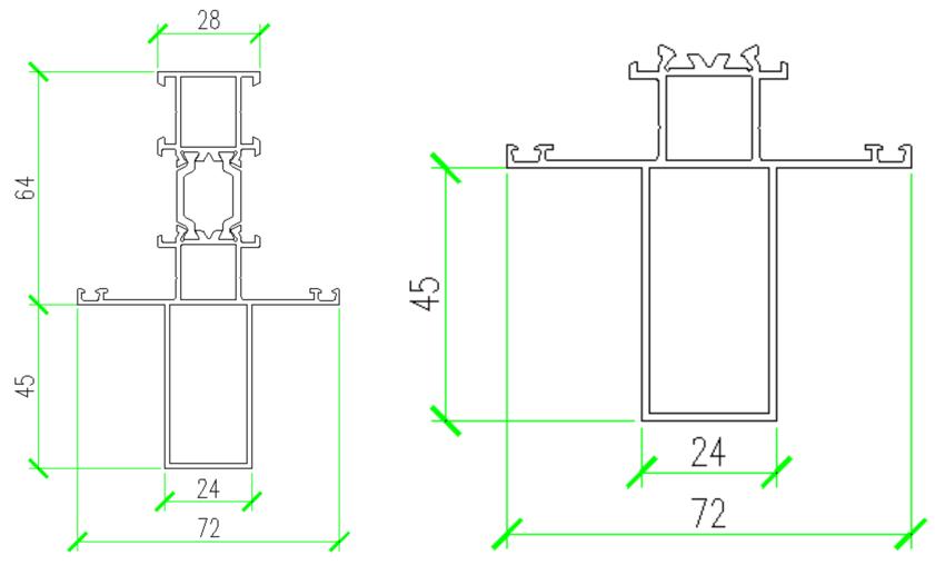
截面惯性矩和抵抗矩可以从CAD中直接读取,以某隔热铝合金型材为例,见图1。

图1 隔热铝合金型材 图2 隔热铝合金型材室外部分
该型材由内外两部分铝合金型材和隔热条组成,为简化起见,以室外侧铝合金型材(见图2)为例,步骤如下:
(1)建立面域
CAD质量特性是针对面域的,面域是利用型材截面创建的封闭区域,方法如下:
选择“绘图-面域(或输入命令:reg)”,选择全部截面,执行命令,软件会提示“已创建3个面域”。
此时,这3个面域相互独立,并未形成型材截面,需要从型材轮廓面域中减去内部空腔面域,见图3。

图3 面域处理
选择“修改-实体编辑-差集(或输入命令:su)”,用鼠标型材外轮廓,空格后软件提示“选择要减去的实体或面域”,用鼠标依次点击型材内部空腔面域,空格执行命令后,将生成型材实际截面形状,见图4。

图4 型材截面
(2)查询质心
选择“工具-查询-面域/质量特性(或者输入命令:massprop)”,空格执行命令后点击生成的面域,结果见图5。

图5 型材截面特性(CAD默认原点)
此时得到的惯性矩是基于CAD默认原点的值,而我们需要的是基于型材截面质心的惯性矩,因此需要我们将CAD原点移动至型材截面质心位置。
输入ucs,空格执行命令,软件将提示“指定UCS的原点或[面(F)/命名(NA)/对象(OB)/上一个(P)/视图(V)/世界(W)/X/Y/Z/Z轴(ZA)]<世界>:”。
输入上一步查询所得质心坐标,本例即(2310.0419, 1410.8090),空格执行命令,可以看到CAD坐标原点移到了型材质心,再空格确认。
(3)查询质量特性
再次选择“工具-查询-面域/质量特性(或者输入命令:massprop)”,空格执行命令后点击生成的面域,即可得到截面质量特性,见图6。

图6 型材截面特性(质心为原点)
此时得到的 x 方向的惯性矩X:154561.9453,即是惯性矩 I 值( I x),Y轴负方向的坐标-38.6741即是偏心距e值,x方向抵抗矩Wx=Ix/e=3996.5234。
则整理后截面特性为:
A 面积为: 383mm2
I x 惯性矩为: 154562mm4
I y 惯性矩为: 83868mm4
W x 抗弯矩为: 3997mm3
W y 抗弯矩为: 2330mm3
其中型材截面面积在玻璃幕墙立柱抗弯承载力计算时会用到。
— 3 —
典型门窗杆件截面参数读取探讨
以常见的铝合金门窗和塑料门窗型材杆件作为典型案例进行探讨。
(1)铝合金门窗型材
铝合金门窗型材分为普铝型材和隔热铝合金型材,普铝型材可直接参考上述过程读取截面特性。
隔热铝合金型材截面特性计算较为复杂,JG 175-2011《建筑用隔热铝合金型材》附录A和附录B给出了穿条式和浇注式隔热型材等效惯性矩计算方法。
实践中多采用一些专业插件进行读取,某隔热铝合金型材整体截面特性见图7。

图7 隔热铝合金型材整体截面特性
(2)塑料门窗型材
塑料门窗型材一般由塑料型材和钢衬组成,二者为叠合式构件(详见叠合式vs组合式,组合截面如何计算?),需对塑料型材和钢衬单独读取截面特性。
某塑料型材和钢衬截面特性分别见图8和图9。

图8 某塑料型材截面特性

图9 某钢衬截面特性
则整理后截面特性为:
I 型材 惯性矩为:1735457mm4
W x型材 抗弯矩为:31558mm3
I 钢衬 惯性矩为:42328mm4
W x钢衬 抗弯矩为:2228mm3
需要说明的是,塑料型材弹性模量E约为2500MPa,钢材弹性模量E为210000MPa,但塑料型材惯性矩较大,尤其是超低、近零能耗建筑用窗塑料型材截面较大,刚度贡献不容忽略。
本例中二者刚度分别为:
E塑I塑=2500×1735457=4,338,642,500
E钢I钢=210000×42328=8,888,880,000
E塑I塑/E钢I钢=0.49
即塑料型材刚度贡献约为钢衬的1/2,约为整个型材截面的1/3,因此在计算塑料门窗杆件刚度时,应综合考虑塑料型材和钢衬的截面特性。
— 4 —
结论
门窗幕墙杆件抗风压结构设计时我们主要关注其强度(以应力表征)和刚度(以挠度表征),截面惯性矩I和抵抗矩W是门窗幕墙抗风压结构设计时的重要参数。
截面惯性矩和抵抗矩可以从CAD中直接读取,分为三步:(1)建立面域;(2)查询质心;(3)查询质量特性。
普铝型材可直接读取截面特性;隔热铝合金型材截面特性理论计算较为复杂,可参考JG 175-2011的附录A和附录B,实践中多采用专业插件进行读取。
塑料门窗型材一般由塑料型材和钢衬组成,二者为叠合式构件,需对塑料型材和钢衬单独读取截面特性;计算塑料门窗杆件刚度时,应综合考虑塑料型材和钢衬的截面特性。
抗风压性能是保证门窗幕墙安全的第一步,而杆件截面力学特性又是抗风压性能设计计算的基础,准确读取杆件截面力学特性对于保证门窗幕墙抗风压安全具有重要意义。
相关文章:
叠合式vs组合式,组合截面如何计算?
门窗风荷载如何计算?
3种中竖框哪种最优?某工程铝木复合窗优化设计分析!
线性or指数?抗风压性能与窗型尺寸变化关系探讨
PPT分享 | 万成龙:玻璃幕墙结构计算培训(2013年版)
为什么说抗风压性能测评是保证门窗安全的第一步?