
哲学、艺术和科学,其目的都是为了让人类的生活趋向高深,使它从单纯的生理存在中升华,并把个人引向自由。
——爱因斯坦
△项目视频
当公司发展进入一个新的时期,古木子月空间事务所的办公室也需要有一个新的升级。在经过一段时间的寻找之后,设计师决定将公司搬到位于宁波东部新城的八骏湾园区内。
作为一家独立设计公司的办公室,这里不会仅仅只承载基础的办公功能,而是会在很大程度上去体现设计师对于当下和未来的设计方向的思考和观点,并用这一实际的空间,去影响自己的员工和到访的业主。


立意 Core idea
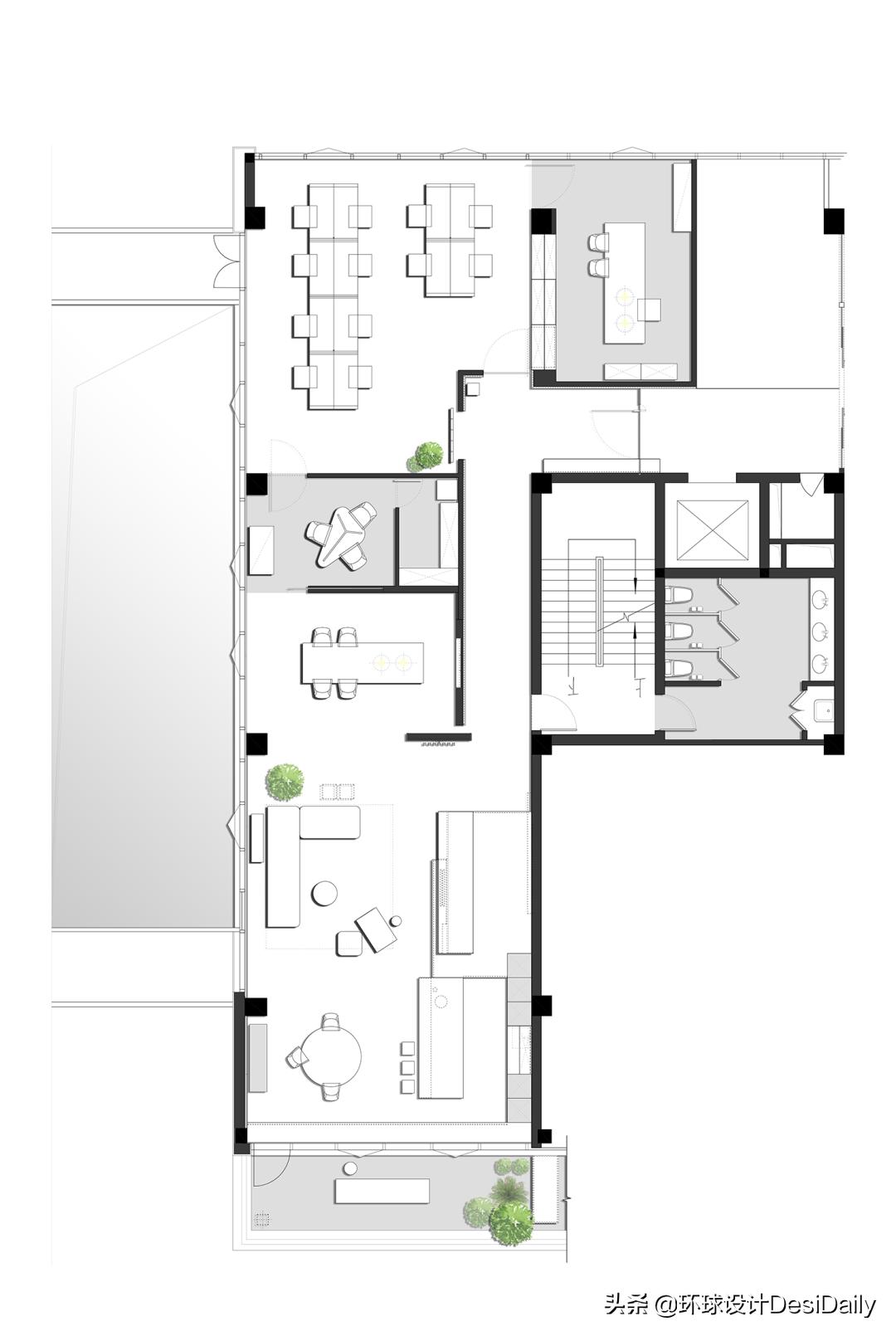
项目所在建筑是一幢二层的独栋办公楼,事务所位于建筑的二层,面积约300平米,三面采光,并拥有一个开放式的户外阳台。
新办公室以艺术为主线连接办公与休闲功能,缩小工位在空间中的占比,扩大公共开放空间,提高生活化的配置,把品质生活体验作为工作之余的调味,让工作与生活和艺术交织在一起。正如设计师所说:设计是一种职业,一份工作,但这份工作的意义,在于提升生活的品质和艺术的修养,在于让人变得更加自由和愉悦。同样,这份自由和愉悦,不仅仅针对设计服务的业主,也包括设计从业者们自己。

构成与动线 composition&Moving line
纵览整个空间,设计师用解构的手法营造空间骨架,以东方的意境营造氛围。在空间的构成上,通过非对称、错位、穿插、悬空、纵贯等设计手法,运用模数分割法、天地墙对角、对缝,达到物断韵连的展现效果,用少量的材料和精致的工艺,体现物造的精髓和设计的价值。

从楼梯出来,左转便是事务所的入口。玻璃材质与涂料之间有着肌理和材质的对比,而光的介入,让线条和块面的明暗关系变得更加强烈。但这种标准的现代设计,因为有了新材料的应用和进光量的控制,给予人的第一印象,却是东方山水的神韵:U型玻璃的轻盈朦胧如同起雾的江面,而深灰色的墙面,所呈现的冷峻深邃,如同对岸的峭壁与高山。




L型走廊本是最大的设计障碍,因为过道狭长而昏暗,所以设计师的解决方案是做一条不像过道的艺术走廊,用地打光与镜面去模糊或者倒置空间。所以,墙面采用U型玻璃由下往上打光,并植入智能感应设备,当有人进入,光便会自动亮起。用光去迎接人,既有仪式感,又有亲切感。


过道顶部是大面积的镜面不锈钢,随着空间上下延伸,恍惚之间,使人忘却了置身空间之中。走过转角,大片的光引导着方向,往里走,空间便慢慢地呈现,直至豁然开朗,室内的布置尽入眼帘,人的体验感也油然而生,就如同《桃花源记》开篇中所描述的那样:初极狭,才通人。复行数十步,豁然开朗。土地平旷,屋舍俨然,有良田、美池、桑竹之属。




功能 function
100平米的开放式空间构建一个会客、聚会、选样、休闲的空间。多功能区位于空间南部,多维度的设计构成,错落,叠加,镜面等设计手法的应用,简单的黑白灰呈现丰富的视觉构成,艺术、设计与生活的关系开始揭开面纱。

空间有两处抬高,一处是去露台的一字型台阶,都是悬浮状态,解决停顿功能之余,也使得出入露台多了些许仪式感。第二处为厅中间的选型区,将其抬高呈方形,这两个形状也是组成空间最基础的架构,而口字型抬高处恰好满足客厅围炉的壁炉之用,一举两得。



中岛台具有多种功能,摆上材料,摆上模型,摆上图纸,是设计师和业主选材的场所;当它安静地在那里,则是空间中安静的休憩之地。



橱柜、水吧和圆桌形成一个标配的餐厅模型,嘉格纳电器满足蒸烤烘焙的多样化功能,让员工拥有一处用餐的绝佳环境,也是公司招待亲密伙伴的绝佳地点。






空间中部是会议室,这里是设计师头脑风暴的场所,也是给客户提案的地方,有时候也充当设计总监的办公桌。




空间北部则是简洁的办公区和会客茶室,功能化的设备,隐藏繁琐的线条,设备挂件,让整洁的办公环境给人清晰的逻辑和轻松的氛围。部分的暖色配置,削减黑白的冷硬,提点人内心的温度。


艺术 Art
当代生活的追逐已经从表层的华丽转向精神的内需,虽然追求奢华本身也是精神需求的体现,但无疑,对艺术的欣赏和拥有,更彰显精神世界的精彩和丰富。

空间中的每一样器物都来自于设计者的精心挑选,设计的美体现在物的形态与功能之中,生活中的器物,传递着人对生活的热爱,所以它们归属于这个空间,又不仅仅只属于这个空间;他们在归属于生活,又不仅仅只用于生活……站在艺术的角度,器物不只是器物,设计也不只是设计。





壁炉的火焰跳动,如同轻盈的舞蹈,在黑夜里绽放光明,在寒冷中给予热爱,而夜幕之下的阳台上,温润的光散逸,将地面和墙面覆上一层朦胧的纱,河对面的大楼,有未熄的灯火,仿如星辉……




△平面图
项目名称|古木子月空间设计事务所办公室
项目地址|中国 宁波
项目面积|300㎡
设计单位|古木子月空间设计事务所
设计总监|李财赋
设计团队|胡荣、鲍威力
软装设计|咩咩羊陈设设计
主要材料|U型玻璃、镜面不锈钢、岩板、pvc地毯、本杰明漆
部分品牌|B&B Italia、 Molteni&C、Flos、Tradition、Gaggenau
项目摄影|徐义稳
项目视频|稷樾传媒

李财赋
古木子月空间设计事务所创始人
T10+设计联盟联合发起人
IEED国际生态环境设计联盟(大中华区)常务理事
宁波市建筑装饰行业协会设计分会副会长

古木子月空间事务所成立于2010年,秉持“立已达人、成人之美”的哲学态度,以规划、建筑、室内与陈设等全面的设计系统为不同领域的高端客户提供特定的设计定制服务。设计创作讲究物理功能、注重空间体验、善于现代手法、崇于东方精神,作品呈现当代性、自然性与人文性。
部分案例
▽




△佳而灵办公总部





△申山乡宿





△徽商故里



△泊景秋月白




△宁波府
推荐阅读
▽

B&B Italia、Molteni&C、Living Divani 等顶级品牌最新设计

首发 . 南筑设计|初熹烟火味,温酒掩柴扉

首发 . 时上建筑 沈墨|850m² 光之家

首发 . 宽品设计|夕方谧暮,静在咫尺

清欢。

自然营造。
独家首发,未经授权,严禁转载,欢迎转发至朋友圈。

更多精彩请关注
▽
