
两处乡村极简民宿
1-外界景观的遮挡与引进 / 被“掀起”的天空之院
2-自然环境的最大化引入 / 大乐之野 – 千岛湖店
【民宿一】
被“掀起”的天空之院
外界景观的遮挡与引进
建筑设计:十域建筑
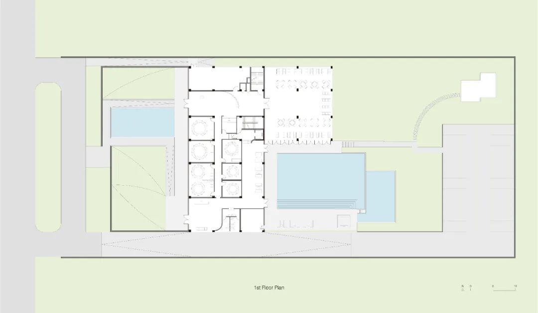
酒店位于云台山景区附近,被工业用地、烂尾小区和破败民房包围的杂乱小环境,对于景区酒店是致命的弱点,幸而场地中依然可以遥望云台山。酒店包含48个多样的房间、独立营业的餐厅、宴会厅、游泳池、地下车库,以及为二期建设预留的空间。怎样在这样的场域中扬长避短,在极其紧张的空间、预算和时间内,兼容复杂多样的功能、营造独一无二的高品质空间体验,是本项目面临的一系列挑战。

© 张超

© 张超
常见的酒店和民宿,每个房间都是一个外向的方格子,以便最大化摄取外界景观,酒店整体也往往成为方格子的堆叠。“外向的方格子”已成为当代酒店约定俗成的空间范式。

© 张超

© 张超
我们回到“客人在房间内的体验”这个原点重新构思,颠覆了这种常规范式:首先将房间对外视线以下的部分全部遮挡,然后将视线以上的开口“掀起”,引进更多的阳光、天空和山景;落地玻璃拉门模糊了室内外的界限,营造出私享的微型庭院。

分析图

© 张超

© 张超

© 张超
室内与内院在视觉上完全贯通,将客人的注意力引向画卷一样展开的开口。从日出到日落,阳光与弧形的墙面在不同的角度都会产生不同的光影效果。

分析图

© 张超

© 张超

© 张超
建筑前庭院的地面亦被“掀起”,像抽象的山形,与远处真实的云台山遥相呼应;同时通过将首层抬高半层,高效解决了复杂的人车流线,也实现了场地土方平衡。从首层室内向外望,磨砂玻璃包围中的透明开窗,将前庭和远山框在一起,又形成了动人的借景和框景。

© 张超

© 张超

© 张超

庭院 © 张超
“掀”的手法延伸至酒店的方方面面:在首层公共区域,半弧形的连续空间仿佛从墙面掀起,成为客人的主要行走流线;在客房层,墙面掀起成为房间号码标识;餐厅的引导台和房间内的抽屉拉手,也由“掀”而产生。

© 张超

© 张超

© 张超

© 张超
天空之院以突破常规的手法,营造出微型院落的房间模式和不可复制的动人体验。设计没有浅显地引用中国传统视觉元素,却将“藏”与“露”、借景与框景等造园方*论法**进行了极致的运用。

项目图纸

项目区位

场地环境

场地环境

首层平面图

二层平面图

三层平面图

四层平面图

负一层平面图
建筑设计:十域建筑
地址:云台大道,修武县,河南,中国
项目年份:2020
建筑面积:4900㎡
室内设计/图形设计:徐小萌,Hannah Wang
景观设计:徐小萌
结构咨询:和作结构建筑研究所
施工图设计:河南省城乡规划设计研究总院
土建施工:修武县都福永团队
装潢及景观施工:河南省居泰隆装饰工程有限公司
摄影师:张超
【民宿二】
大乐之野·千岛湖室内设计
自然环境的最大化引入
设计方:即域建筑设计工作室
第一原理(First Principle)最初是由亚里士多德提出的哲学概念,代表“一个最基本的命题或假设,不能被省略或删除,也不能被违反”。我们使用它作为对这个项目中复杂问题最基本的思考原则,从原初开始重新推演,剔除了僵化的经验式的空间语汇与个体过于主观的人为干预,在整个项目进程中不断溯源追问,以期从设计的过程和结果两个层面得到一个简单而接近项目本质的“第一性”空间。
▼视频© 唐徐国
▼金山坪村,从千岛湖看向基地

▼从大乐之野上方看向千岛湖

在千岛湖西侧水岸交界的金山坪村,自然环境的最大化引入与人工痕迹的最大化退让成为了第一设计原则。作为城市中喧嚣居住环境的反面,我们认为这个民宿空间最大的价值是帮助使用者得到内省式的自我回归。而这并非来自对外在环境的消极屏蔽,与之相反,在室内环境中,外部的自然环境恰恰成为了这一过程积极的路引。
▼C栋外观

▼从C栋客厅的室外看向室内,以及玻璃反射中的千岛湖 © 侯睿

首先考虑的议题就是自然如何引入。
框景作为最直接的空间操作手段,在第一时间即成为了讨论的焦点。我们在介入项目之初与已进入施工图阶段的建筑设计团队进行了多次立面的调整,看与被看的基本论题被反复推敲,直到最后达成了一个相对平衡的状态。
▼公共区域©史佳鑫

▼从A栋二层看向村庄和远山 ©史佳鑫

▼C栋二层的客房,落地窗带来的连续景观面 © 唐徐国

下一步,室内空间的物质性被最大程度地削弱。
在形式操作的层面,以装饰性的手段将所有建筑工业化的表达抹去,没有结构的暴露,也尽可能隐藏了机电的痕迹,平整的天地墙将空间的高潮引向窗外的自然本身。
▼接待区域,©史佳鑫

▼门厅 ©史佳鑫

在材料操作的层面,用质朴的黑白灰色调与木材回应原始村落的记忆。不过分强调设计感也不刻意回避当代性,一切以和谐的氛围为主旨。
▼客房概览 © 唐徐国


▼卧室和透明浴室 © 唐徐国

在器物选择的层面,恰当合用是判断的标准。在最大限度精简的前提下,满足功能使用上的舒适。
▼内饰细节©史佳鑫

©唐徐国

在执行这些操作的过程中,外部环境自然而然地成为了整个空间体验不可割裂的组成部分,而这种存在形式也恰好构成了对在地性的回应——剥去窗外的千岛湖,空间就不是完整的;而不同状态的外部环境又反过来赋予了同一空间几乎完全不同的性格。
▼基地周边的自然环境,在不同的天气条件下 © 大乐之野

▼晴空夕阳下的阁楼房© 唐徐国

▼阴雨天气中的另一种表情 ©史佳鑫


最终通过这一系列主动规避的过于主体性与竞争性的设计操作,空间与自然达成了礼貌的沟通与互相渗透的平衡。
▼根据不同的立面条件、不同的室内条件确定的不同框景做法(洗手间) ©史佳鑫 © 唐徐国

▼泳池平台© 唐徐国-天华建筑

▼夜景 © 唐徐国-天华建筑

▼大乐之野 · 千岛湖 © 唐徐国-天华建筑

▼一层平面图 © 即域建筑

▼剖面图 © 即域建筑

项目名称:大乐之野 – 千岛湖设计方:即域建筑设计工作室项目设计 & 完成年份:2019.05 – 2020.09主创及设计团队:主创设计师:侯睿,朱丽瑾设计团队:王一申,陶舒婷,徐翰骅项目地址:杭州淳安县千岛湖镇鲁能千岛胜地建筑面积:1349㎡摄影版权:唐徐国,史佳鑫,侯睿,阿元,大乐之野软装设计:苏州大田软装设计;建筑设计:天华建筑