小区名称:世华龙樾
建筑面积:160平米
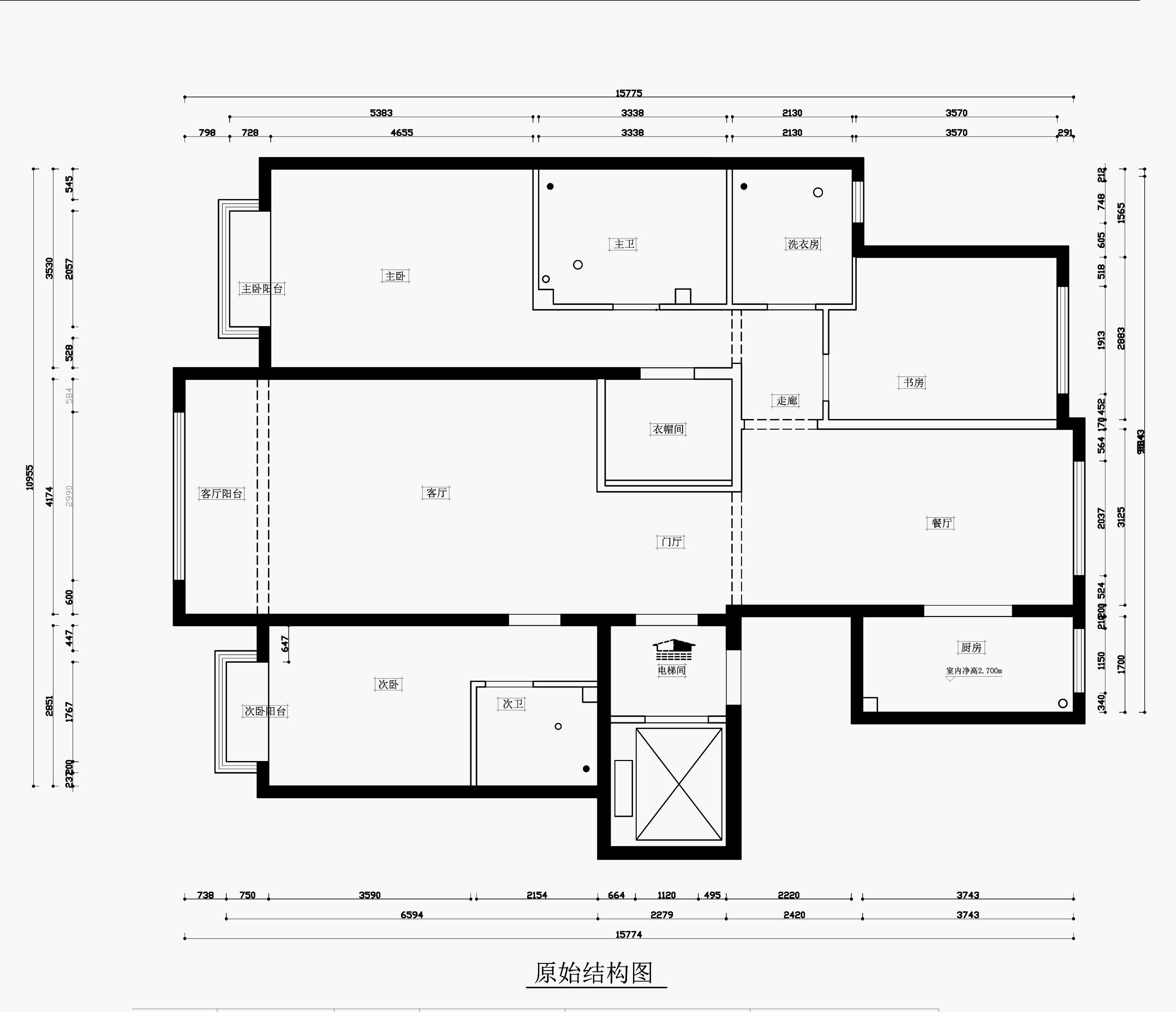
户型:三室两厅一厨三卫
工程预算:36万元
风格定位:北欧风格
案是为世华龙樾客户设计的北欧阳光主题方案。客户非常欣赏那种简单,不受约束的空间感,十分追求生活品质和细节,本方案为客户打造出一个娴静淡雅舒适,主色调采用中性色彩进行柔和过度,适合老人、小孩共同居住的家。本案的整体风格为北欧风格,此方案既能满足业主的需求,又能满足客户的审美需求。

彩色平面图
户型分析及功能规划: 本案采用大量的具有代表性的北欧家具,白色、原木色及灰色的等浅色系列的装饰,在整体风格的衬托下增添了一些北欧风的层次感,墙面大面积的灰色墙漆,浅色木质护墙板,文化砖的墙面更增加了温馨舒适感。公共区域的地面采用浅色系地砖和淡彩绘地毯搭配深色的皮质沙发,凸显大气沉稳,搭配简单的线条美更增加北欧风的现代感。
客厅
客厅家具主要是浅色和深色的搭配,暖色及冷色契合,相互对照相互呼应。增加了整个的空间的色彩柔和度,不是那么的单调,也不是那么的突兀。浅色地毯上才有线条的墨色喷绘,既简单又高雅,在简单的圆形吊灯的映衬下,让整体的感觉又比较温馨和舒适,从而让整个空间显得更为沉静,而娴静中略带有一点优雅。深色三人主沙发及灰色的单人布艺墩子搭配,更能让家人感受的家的悠闲和舒适。浅蓝色的窗帘和白色纱帘搭配,顶面不做任何装饰,只是走一圈简单的单层石膏板装饰。极致简单,而又不失去北欧风的那种柔和感。原木色的护墙板作为电视背景墙,立刻让空间的北欧感觉凸显十足。剩余空间摆放一个简单的书桌,搭配整面墙的白色文化砖,也使得整个空间略带欧洲历史感。

餐厅
餐区的家具作为空间一大亮点出现,原木色的餐桌餐椅搭配餐上方简约吊灯,墙面简单的欧洲装饰画,让整个空间尽显北欧阳光的清新感。地面铺贴了浅色系列的地砖,和顶面石膏板吊顶装饰,两个面的相互结合和呼应,使得整个空间的三围立体感更协调。简单的家具显得格外别致、舒心,在暖黄色的筒光的映衬下营造了一种轻松、愉悦、温馨的就餐氛围。

主卧
卧室是为家人提供休息的区域,所以整个空间色彩搭配要求更柔和。整个空间的色彩基调就是木色系列,原木色衣柜,原木色地板,棕色的壁纸点缀了简单装饰物,尽显卧室的那种舒适及静谧感。

原始结构图