
▷ 项目信息
项目:远洋·荔山住区
(南山荔山工业园城市更新)
地点:广东省深圳市南山区
时间:2019年
规模:134,000㎡
状态:方案深化
业主:远洋集团
设计团队:吴卫、陆文健、梁志伟、庄汉森、李志强、张智、余玮波、许仕娟
项目概况
Overview
项目位于前海妈湾片区和大南山自然保护区之间,地理位置优越,交通便捷。项目以建设国际化都市住区的整体定位,以面向未来的国际一流社区的规划理念,打造生态宜居住区,提升城市形象的标杆项目。

设计理念
Concept
本项目拥有得天独厚的景观资源,便利的交通,设计以城市高端人群为依托,打造高端奢豪社区。在布局上,将塔楼沿外围布置,围合中心大庭院,形成内部庭院景观。沿南侧塔楼户户看山景,沿北侧塔楼户户看大庭院,且透过间隙间接看山。

△外部景观资源最大化
设计中引入了国际化的概念,强调室内外环境的氛围和体验感的营造,强调流线体验化、配置圈层化、产品私家化和宽景化,打造低价格,高品质的国际山景豪宅。

设计策略
Strategy
1、板式公建化,景观价值最大化,货值最大化
所有楼栋全点式布局,错位布置,前低后高,通风采光好,视线互不遮挡,所有户型都能获得外部山景,实现规划逻辑与景观资源价值最大化。

2、流线体验化,配置圈层化,产品私家化
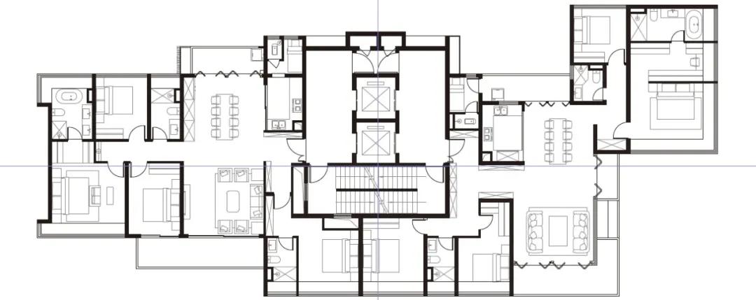
在满足规范的前提下争取最多的拓展面积,飘窗、阳台、挑空等设计成就高附加值的户型。此外,尊贵的入户体验,空间组合灵活变换,精细化设计,配置升级,实现豪宅生活户型。

△户型设计

立面设计
Facade
设计在造型上采用了现代典雅风格,公建化立面设计,以简洁明快为主调,注重细部处理和精细化设计,突出建筑时尚、现代、高贵气质及精致轻奢的城市风情。

△住宅立面

△商业立面

△展示厅立面


///

△T2户型图

△T3户型图