项目档案
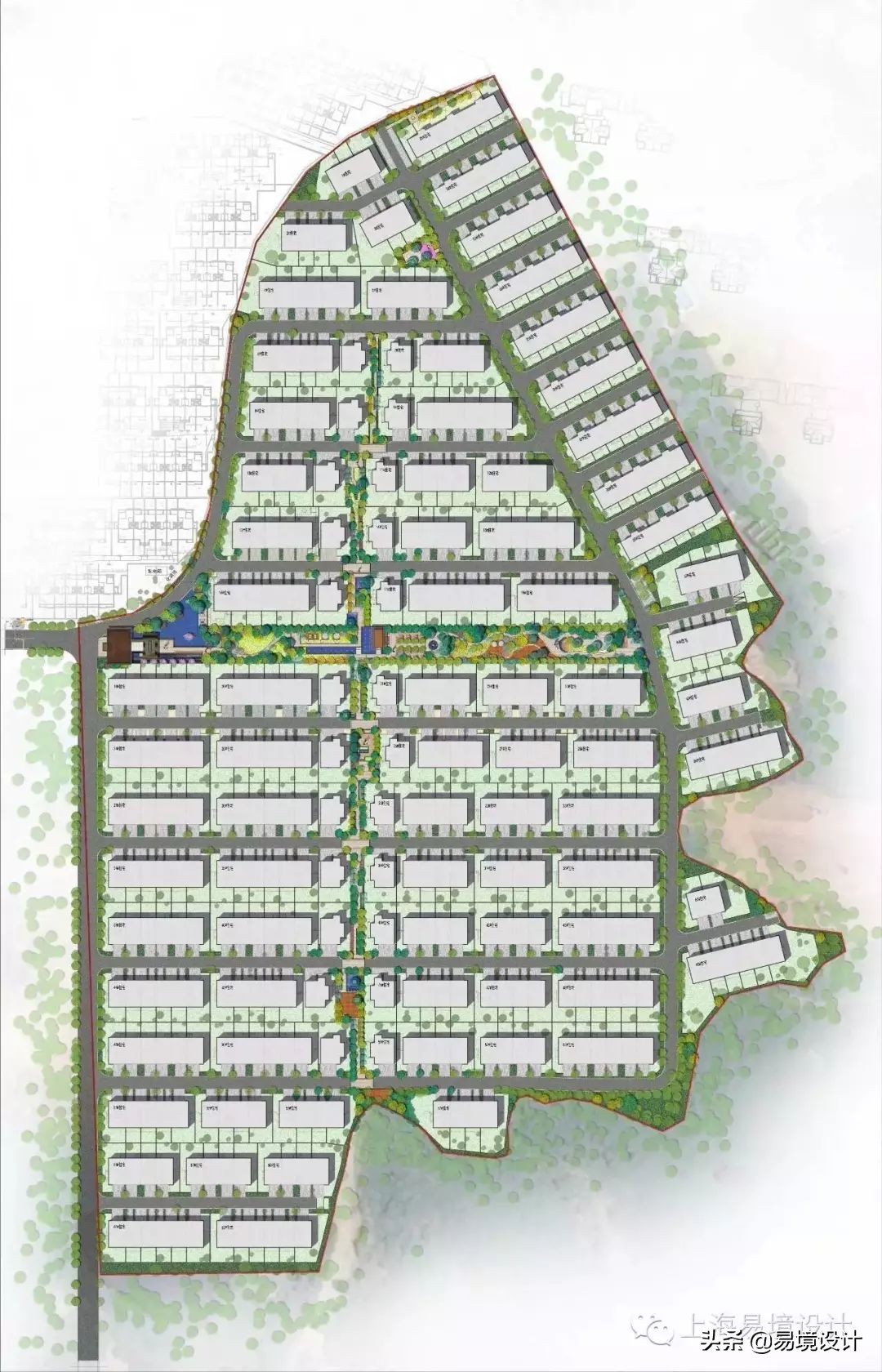
项目地点:长沙市望城区,金星路与银星路交汇处
开发单位:龙湖地产
景观设计:上海易境设计
占地面积:20公顷
绿化率:35%
建成时间:2016
项目类型:类独栋、联排、叠拼别墅
业主团队:李智武、周蓉
设计团队:刘琨、章浩、Herbert、刘宇、雷红博、欧阳静婷、戚长源、谢兰奎 、左田静
设计点评
取湘地之特色,汲取其空间礼序、文化元素、及自然风貌,融于项目使其具有当地特色。打造具有湘地特色的度假,新中式王府花园,演绎现代中式云端雅致生活。



项目概况
作为龙湖集团布局长沙的重点项目—“璟宸原著”,位于长沙谷山风景区,拥有得天独厚的自然环境优势,追求传统文化与现代诗意墅居生活的结合,龙湖倾力打造湘风原著的升级产品璟宸原著,作为长沙别墅名片。



定位策略
本项目沿袭龙湖颐和系别墅洋房产品系列,将以13万方的山景空间,打造颐和系别致花园庭院式洋房,作为谷山景区居住的最终形态,以其超低的容积率、尊贵感的居住体验风靡市场。而本项目已经迎来了第三次洋房产品的升级,成为第 3 代龙湖颐和系洋房旗舰作品。
以水为脉,以山景空间的引借,打造诗意的墅居体验,精心将展示区的功能空间依次串联在各个“境”空间之中,步移景异,构成谷山诗景,达到现实与理想的交融,时间与恐惧不断变化的视觉与心灵体验。

设计理念
在传统视觉景观设计为主的理念中寻找新的突破点,更多文化体验,更多意境的诠释,带来新的文化墅居体验感。
景观设计
一山一水构天下
以水为脉,以山引借,以诗造景,以意释境

一进,如画山城谷水滨---山水相映筑景其中,入口处通过湖面倒影建筑借景谷山,间筑如画景观住区
二进,璟玉山水有洞天---诗意意境禅意空间,十字轴中心,通过镜面水面形成幽静环境感受住区的别有洞天
三进,湘风如锦袖珍园---湘属肌理浓缩于园,休闲活动区,借湘地自然之景,造璟宸自然之美
四归,香草名溪潇湘路---色味声香归家之路























易境景观是中国知名景观设计公司,龙湖地产战略合作伙伴,项目合作地域广泛。其余知名合作方包括绿地、新城控股、世茂、九龙仓、银亿、保利、华夏幸福基业、上海世博局、上海F1国际赛车场有限公司等。