
设计:刘学文(2018年设计2019年施工,目前未完工)

我想这个工地应该从这张照片开始讲述,因为确实路程不近,先要做四个小时的飞机,然后再去火车站买票做动车。整个过程比较周折劳顿,到了酒店需要先休息。

在工地的房顶上为了能看到这片海也是费了不少脑筋,后续会提到!


沿着这条小路可以走到这个项目的院子,一路蜿蜒,风景很美。


终于到了,附上房子的正面照和背面照,从正面看多出来的露台部分特别大,比例不协调,后期有创作空间,这个先记录下来。背面照是正入户门的位置,同样的比例不协调,显得进门的地方很小气。不注意的话很难发现这里有个入户门吧,后期在设计上看看有没有可调整的方案


通过对房子的了解,第一要移位置的就是这个楼梯,楼梯位置在一进门的左手边,让整个房子的结构看上去凌乱,并且占用的面积过大,使得一层和二层的公共空间都为了这个楼梯服务了。动,一定得动。


这个中央空调的室外机居然占据了房子的一个拐角,这让我实在接受不了,本来面积不大的房子让这个家伙占去了好大一部分,院子那么大的地方找一个角落放这个设备他不香么。这是设计时要改造的其中之一。顺着这个地方一抬头,这面积浪费了着实可惜,如果这里有一挂楼梯从二层通往天台,在楼梯下方的一层封起来,可以加大一层的使用面积,这真是个好想法。


房子两侧这么茂密的植被,我想一定是蛇虫鼠蚁最好的藏身之所,我要帮客户解决掉这一隐患。而且这种低矮的植被从视觉效果上也并不美观。


客厅的视野很好,做别墅设计应该是由内向外做。因为院子同样非常重要。窗户由于常年累月的被海风侵蚀,密封和隔音的性能已经差很多了,后期一定要换掉。


量房结束后这次来房子的任务也已经完成,在小区里面逛一逛,这个小区环境还真是很棒的。这么大一片海滩,干净的沙子还是比较烫脚的。
从工地回来开始做平面设计和效果图制作。通过一段时间的梳理、构思、头脑风暴后一套完整的方案呈现出来了!!!


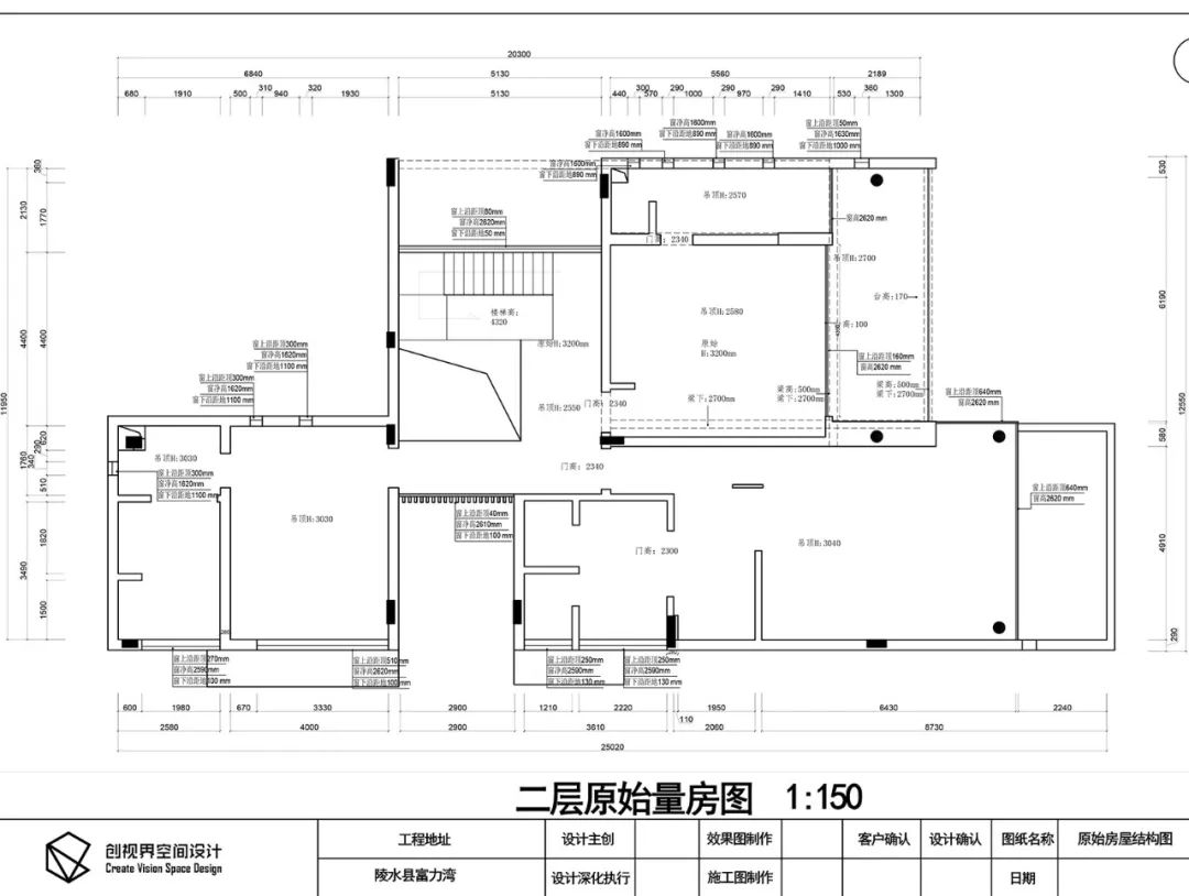
一层和二层的原始量房图已经画出来了,箭头所指的地方是主入户门一层左边入户门的地方从图纸上看更清楚,确实和现场感受是一样的,由于旁边的墙体出来太多,让入户门感觉很挤。进门后左手边的楼梯和设备占去了房子太大的面积,既不实用也不美观。二层原始格局中规中矩,没有什么亮点可言,比较失败的还是楼梯的位置。

入户门往外移,多出来的部分做进门的衣帽柜和卫生间。在往里走左手边是茶室(原楼梯和设备的位置),右手边是改造后的楼梯间,这样动线比较清晰,客餐厅和西厨被设计在了视野做好的地方,并且加大了面积。这个小区风景优美,但购物并不方便,中厨主要围绕着实用来展开,除了一个比较大的冰箱以外,还设计了一个冰柜。大面积的操作台面可以同时几个人一起在厨房忙活。大量的储物间可以满足一家人的日常使用。因为是第二居所,几个家庭同时在这个房子居住的机会比较多,所以宽大的客餐厅让多人同时实用时并不局促。

二层分成两个区域,公共空间设计成起居室和水吧区,同时兼顾阅读区的功能,从二层起居室可以通往楼顶天台。三个卧室套间设计有睡眠区,休闲区,衣帽间和卫生间,让在这里休息的人使用起来非常方便。其中两个卧室的功能更加强大,在卧室都增加了泡池和露台。


客厅出了两种感觉,一个偏自然一些,一个偏现代一些。最后采用了第二种感觉来进行设计。尽量减少室内部分的装饰,我个人也比较喜欢做减法的设计,旧木板,文化石,水泥墙面这些比较质朴的材质贯穿整个设计,之后的设计一气呵成。





方案经过几次沟通后,最终确定好。接下来就开始进入施工阶段




通往房顶的楼梯也已经做好,这个设计我认为是二层公共区域比较重要的设计内容,而在做这个楼梯之前,有说从屋里做圆形楼梯往露台走的,有说把楼顶楼梯部分封闭起来的,各种建议接踵而来的感受也许只有设计师才能懂,有时候在设计落地的同时会出现各种各样的问题导致设计走样,我认为坚持已定的设计思路很关键,把楼梯放在外面,大大增加了室内的使用面积,而且楼梯本身的结构感让空间层次丰富不呆板。由于我的坚持,让这个很美的画面得以呈现出来。



通往二层室内部分的楼梯从原来进门的右手边改到了左手边,这样的好处也是增加了进门处的使用空间。楼梯结构的设计有必要着重说一下,由于结构有梁的限制,第一跑比较长,第二跑和第三跑比较短,如果不加宽前几个踏步的话,会让楼梯看上去瘦长和小气。我用卡片挡住加宽部分的楼梯大家可以感受一下,确实是不好看。但在没有做这个楼梯之前,我在现场有种舌战群儒的感觉,力排众议,最终仍然是因为坚持,才有了这么漂亮的楼梯结构。为了能有更延展的视野,我在设计时增加了窗户部分的面积,第三张图是站在二层照的,像一幅油画。


在拆除客厅的筏板时遇到了筏板下面的暗梁,为了不破坏屋子的承重结构,果断修改方案。其实在原始的建筑图里并没有这两根暗梁的体现,所以才导致了客厅的方案修改。

在露台上看不见海,最好的视野都被这个坡屋顶给遮挡住了。我提出做一个看台,这样可以站在看台上看海,方案和业主一拍即合,说干就干。




已经做完防锈处理,跃跃欲试的准备上去看看,下面发两张站在这个看台上拍的照片,达到了预期效果。再次特别感谢常工对设计方案的支持。


站在看台上往远看,前面是海,后面是山,效果比较理想。在这个看台上放一张长桌,一家人,喝着茶,看着海,聊着天,晚上抬头看着星星,这样的画面有家的感觉。
今天先分享到这里,项目在持续的装修中,我的装修日记也陆续和大家分享,下期见!!!

刘学文 合伙人&首席设计师
设计是值得用一生的时间去做的事
【从业时间】:14年
【从业经历】:2016年至今在创视界空间设计事务所任设计师,2013年自由设计师,2009—2012担任赤峰东易日盛集团主任级设计师
【获奖】:
2010年东易集团总部获得空间设计一等奖,2010年荣获红星美凯龙和赤峰市装饰协会共同举办的设计大赛中一举荣获“创意最佳奖”,2011年荣获东易日盛内蒙地区产值最佳奖,2011年荣获亚太区室内设计优秀奖,2012年《亚星国际公寓》荣获2012年筑巢奖优秀奖,2013年《双珑原著》荣获金堂奖创意奖,2015年《远洋天著》荣获亚太区室内设计优秀奖,2016年《世爵华府》荣获筑巢奖优秀奖,2018年《公园大道》获IDS国际设计先锋榜最具空间表现奖,2018年《公园大道》获中国设计大赛金奖
【设计项目】:
《红廷别墅》、《优山美地》、《公园大道》、《皇家帝苑》、《远洋天著》、《中天御苑》、《孔雀城》、《富力湾》、《温哥华森林》、《中海九号公馆》、《华睿园》、《富河国际》、《孔雀城》、《德润公馆》、《丽樽别墅》、《水木兰亭》、《泰和王 府》、《滟澜新宸》、《红杉溪谷》、《好望山》、《绿茵别墅》、《会展誉景》、《公园大道》、《金融街》、《万象新天》、《澳林春天》等
创视界空间装饰三大优势
1.勇于担责 从施工开始到房屋交付的过程中出现任何设计问题,都由设计师替客户全权负责协调解决。
2.缩短工期 施工前,设计方案、施工方案和产品采购全部完成。施工过程中,不需要再与业主探讨任何设计问题,也不用因等待产品的到位而拖延施工进度。
3.完美落地 由于设计方案的完善、施工方案的严谨、配饰产品、主材产品的采购前置,从而保证设计的完美落地。
行业内唯一有设计标准服务标准的企业
设计标准
- 硬装设计, 全套施工图设计
- 产品配搭,与风格配套的产品搭配设计
- 软装配饰,完美软装配饰方案
服务标准
1,硬装施工 工地跟踪服务 节点控制
2,软装配饰 协同客户将方案落地执
家庭装饰行业唯一一个设定了设计服务监督体系的企业
设计师在服务过程中所有节点控制必须参与,并由业主及相关施工负责任人签字确认,设计师拍照上传到项目群,客服人员纪录在案,用作项目完工给设计师评定分数使用。
咨询我们请打电话4008004740

微信扫一扫关注该公众号