前言
本文所涉及之户型尺寸及楼盘信息,均为老钟通过个人渠道获知,最终版本信息以开发商官方公布为准;
本文中老钟所陈述之观点,仅为个人看法,不作为买房唯一依据,也不代表老钟推荐购买某楼盘或某个户型;
周日晚上发了高新区楼盘评测中篇,结果审核了四个小时,凌晨才给我发布。不知今日之下篇又会审核多久。
本篇为高新区楼盘评测终结篇,大成郡暂不纳入评测范围,因为我实在没时间了,后续还有一批9月要开的楼盘,已经被粉丝们催死。
项目整体评价
万科东潮之滨在6月19日已经拿了首批次的预售证,均价31000,首批478套房子秒光。

9月马上加推1/2/6/9/10/13/14七栋楼,其中五栋高层,两栋小高层。
老钟个人最喜欢的6号楼,南向临河,东侧无遮挡,西侧有5号楼为其遮挡西晒。唯一缺点东侧有幼儿园,小屁孩的欢乐声可能会有点吵。
其次是小高层10号楼,南向可以说毫无遮挡,日照采光不错。东侧临马路,但看规划是条小路,车流量应该不大。但是买这栋楼的一楼二楼要注意,幼儿园北侧围墙栏杆距离10号楼可能会比较近(个人经验判断,仅供参考)。
关于不利因素
某区规划局网站上的项目规划设计方案稍纵即逝,所以我找不到东潮之滨的总平图,无法详细的跟各位讲解项目总图。
但是万科还是一家很自律的公司,从项目沙盘上对于不利因素的标注就能略知一二。每一个红线内的不利因素全部标注清楚,以我个人经验而言,无一遗漏。这点做的非常好,点赞!
我拍了三张关于不利因素的照片,并部分用红圈标注,各位可以查看一二。

关于不利因素,我这里简单展开聊聊。
所谓不利因素,即对你居住可能会造成影响的因素点。
不利因素主要分为红线外和红线内两类。所谓红线,只这块地的用地红线,通俗说红线内就是楼盘的围墙内。
红线内不利因素主要是:变电房/配电房/地下室通风井/垃圾站/水泵房/公厕等等,还有变异户型。
红线外不利因素主要指有可能会造成噪音/辐射/震动等对居住产生影响的因素,比如高架/高铁/高压线/火葬场/垃圾处理站/殡仪馆等等。
红线外的比较容易识别,红线内的不利因素需要各位仔细去识别。当然,大部分不利因素其实更多是心理影响而已。
但有一种,比如地下室风井,这玩意儿存在的目的是将地下室的空气吸出,并导入新鲜空气,运行的时候会产生大量噪音甚至震动。
老钟之前在苏州卖过一个别墅楼盘,有几户外墙边就安排着这样的排风机,一旦运行的时候,噪音震天。

像红圈内的这种地下室风井,要问清楚销售,排风机是在地面还是地下。我目测应该是地下,对居住影响应该不大。
14号楼西北侧有机动车行入口,对于西边户的影响可能存在,买这几户的人可以问销售,车行口上方是否有顶盖,如果有顶盖,应该对于噪音的阻隔有帮助作用。

关于不利因素就说到这里,各位买房还是要学会自己去发现和了解这些问题。
最后补充一句:根据宁波住建局的要求,开发商和业主签订合同时,必须以书面形式明确告知业主,其所购房源周边有哪些不利因素。
东潮之滨的一些小亮点
坦白说现在的住宅,对于绿化的投入和设计,很少能看到有亮点的项目。
对于东潮之滨,老钟说一下个人觉得还可以的几个小亮点:
私宴餐厅,某栋楼下面安排了私宴餐厅,业主可以预定并招待亲朋。
这东西,噱头大于实用。

现在的售楼处日后还原成业主的共享空间,可以在其中喝咖啡看书等等,至于是否额外收费,销售未明确告知。

1#2#高层户型点评
东潮之滨整个楼盘配价最低的,可能就要属二批次加推的1号2号楼。

北面背水一战,南向临着主干道江南路。
这两栋楼是小区内唯二的两梯五户设计,还有一栋是3号楼。

2T5的设计从得房率角度看,反而比2T4更高一些,只不过从电梯出来那一瞬间的感官上要差。不过在价格面前,都不是问题了。
中间蓝色三个94平户型,两边红色是109户型。
紫色是连廊,黄色是强弱电井,左上角灰色块是地下室排烟井。
绿色是电梯井,注意看左边大右边小。这也是一种成本的考量,如果你要搬大件,左边走。
前面说过万科是一家自律的公司,在户型图上也能发现这点,把大部分房间的开间和进深尺寸都明确标注,并且在户型图上还有标准层简要图。

94平边套,南向两开间,边厅设计,边厅宽度目测6米多。这种户型设计有个优点,南向两个卧室的开间尺度要好于常规三开间朝南的户型。
我们和109平的对比,各位看图上的尺寸,94两个卧室均大于109平的户型。
109平三开间朝南,双阳台,常规户型。
6号楼是两梯三户设计,得房率就相对低了点。

各个房间尺寸见图,我不赘述。
注意看老钟拼接的标准层图纸,中间户突出,这种设计可能是考虑中间户北部连廊的存在,如果外里面做平,中间户的面积估计就在110平以内了。

这种设计可能对于西边户上午的采光略微有点影响。
三个户型常规设计,没有明显缺点。
但注意146平的客厅,宽度5.5米,这个尺度不上不小,各位可以对比春月江澜128平的客厅宽度。
中间套116平客厅宽度5.4米,这个尺度非常大,而西边套125平的客厅才3.8,显然125平把空间留给了主卧(3.5米)。
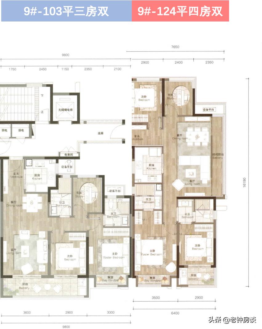
9号楼包括后面的13号楼,就是标准的2T4设计。
边套124平和1号楼94平对比,南向两个房间的开间尺寸竟然还输给94平的,原因是什么?评论区留言,老钟来告诉大家!

103平的户型布局和6号楼的116接近,但是面积少13平,总价少了约四十万。
13号楼的103平户型和9号楼一致,109平户型和1号楼一致,我就不重复了。
10#14#小高层户型
10号楼和14号楼都是115平的小高层,其中10号楼3T6,14号楼2T4,没太大区别。
至于户型,115平做了三房半,还有个储藏间,电梯井挨着次卧,小高层户型设计如此,一般!

东潮与春月户型对比


我把两个项目总平图放一起,然后根据面积段做了对比,并给了点评。但是,相同面积段选择哪个,老钟没有把建议写上去,怕审核不通过。说实话,两家都没有给我充值,我也不做推荐,写这两个楼盘的评测,实在是因为有很多粉丝朋友在两个项目中纠结。