楼盘名称:德商御府天骄
楼盘户型:套四双卫
设计风格:日式
外框面积:192.1㎡
居住人数:2人
业主需求
身为资深游戏美术师,屋主对装修设计的颜值与细节自然是“扣”到极致,这一点也正好和U家工场的理念契合。

业主喜欢简洁、禅意的日式风格,同时对各空间的功能性和舒适性要求极高。
中西厨、独立家务间、日式三分离,这些提高生活品质的设计都考虑在内,同时由于职业、爱好等原因,游戏区、影音室等科技元素Max的设计也必不可少。
下面,就跟着小U来看看业主家的设计方案。
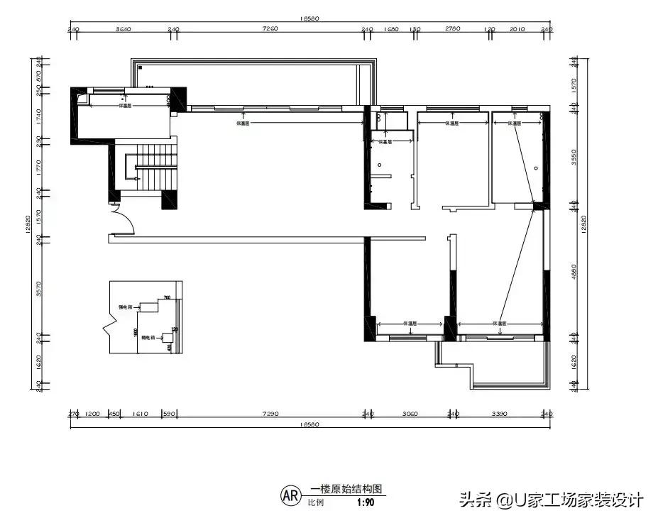
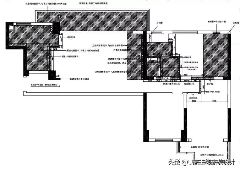
原始户型图


改造难点:
①排水难:双层复式结构做三分离卫生间,存在异层排水情况
②厨房小:6.2m²的厨房面积很难满足中西厨卫,及无合适区域做家务间
③主卫空间不够:二楼主卫难满足独立淋浴、浴缸
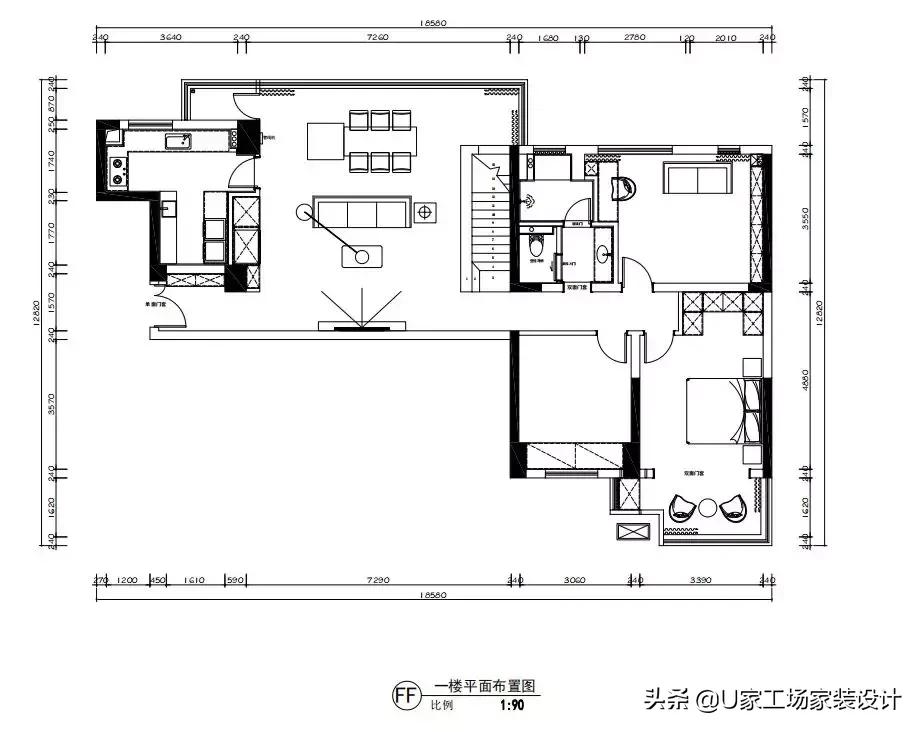
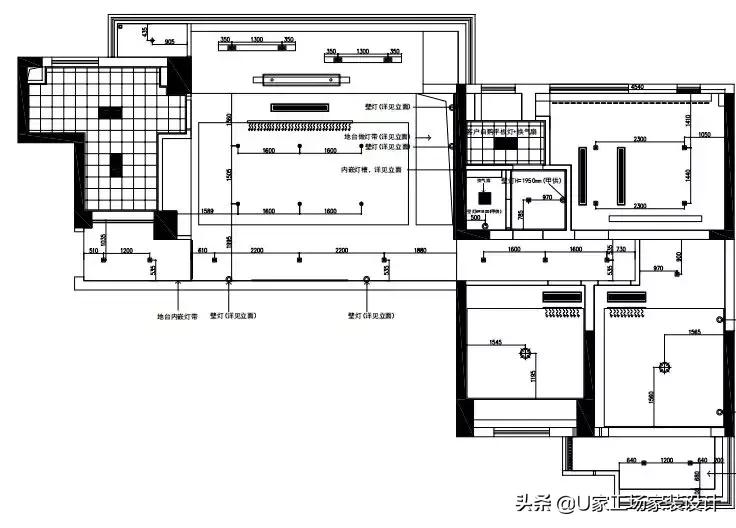
平面布局图


改造点:
①做墙排,KO问题①:敲掉所有能敲墙,抬高地面,考虑做墙排
②合厨房,KO问题②:重新设计楼梯位置,将原楼梯间设计成家务间,让其与厨房合二为一
③拆楼梯,KO问题③:改动楼梯位置后,主卫扩大,改动排水并设计干湿分离
改造亮点:拆拆拆,秒变“*迁拆**队”
简约、整洁是日式风的主要亮点,因此设计师在看到原始结构后,结合屋主需求,便进行了干净利落的拆拆拆拆移工程。

敲掉近10面不合理的墙,在适当的空间范围内又新增了多个墙面,赋予空间更多可能性,把不合理变成合理。

拆除原有的玻璃推拉门,让客厅与阳台完美结合。56m²的超豪华客厅在空间上呈现出宽广、开阔的视觉效果,而掀开窗帘即是风景的体验,不好意思我柠檬了。
除了拆墙,挑战能力Max的设计师三哥,在原有的楼梯上也“动了手脚”。

将原始楼梯拆除再搭建楼板,改移到原始电视墙位置的新楼梯,既满足空间的最大利用,又能在客厅展现出别具一格的楼梯设计。
从墙内“长”出的木质直梯,悬浮于空中,兼具了颜值与实用功能,是客厅内最吸睛的存在。

由于楼梯间的“强行”挪动,给必备的家务间也腾出了地方。从施工图上便能一眼看出,原楼梯区改成了家务间,与厨房合二为一,最大化利用空间。
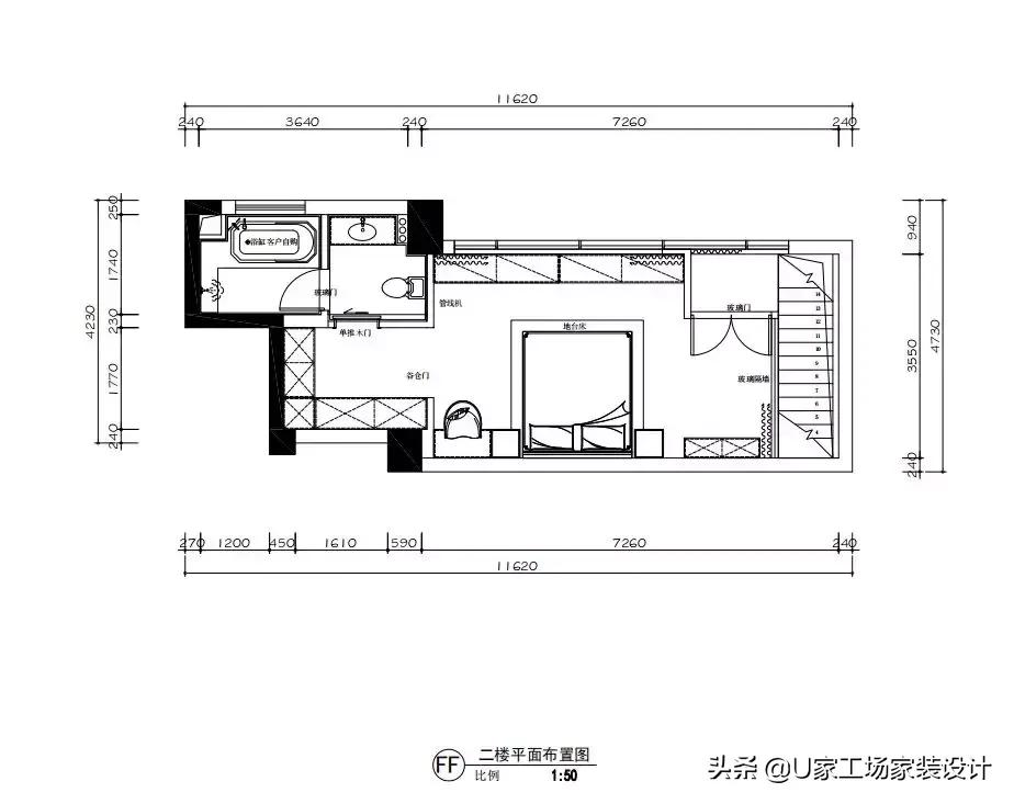
二楼也是同理,原本仅有6.2m²的主卫,因楼梯位置的移动扩大了空间,有效地满足屋主独立浴缸、淋浴、卫生间的需求,并设计出干湿分离。
空间亮点:每个空间都独具“匠心”
各墙面、玻璃的重塑仅是设计师实力的十分之一,想要满足屋主的“奇思妙想”,还得打破常规,在布局、家具上多做文章。

192m²(一楼150m²+二楼42m²)的大空间,设计师不甘现状,从各处下手,让房间的每个角度都呈现出更大更大更大的视觉效果。
“塞满屋主所有需求,把不可能变成可能”,是设计师三哥贯穿全程的设计理念。
01.客厅:原木世界+温馨灯饰,创造温暖氛围
全屋墙面皆是白色乳胶漆,大面积的留白+原木色点缀,是塑造日式风的标准配置。

暖系客厅,在色彩的搭配上,自然以原木色为主。地板、楼梯、柜体、茶几等全都采用了木色,浓重的原木风,使空间呈现出明净的温暖感。
在地板的选择上,采用U家工场瑞士卢森强化木地板(型号SP2413),天然木纹纹理与客厅和谐搭配,耐磨、易打理的技能可以说是非常实用。

米色一字型沙发配以原木圆形茶几、木质凳子,淡淡的暖意和居家氛围就这样不经意流露出来。

要将日式风发挥到极致,灯带布置同样重要。
大量内嵌灯带/灯槽、壁灯的设计,让每个区域的照明都是360°无死角,同时还营造出高级、温馨的氛围。
02.餐厅:超大落地窗,要在风景里“大快朵颐”

沙发的背后是就餐区域,利用直线视角就能达到边吃饭边看电视的理想效果,通透式的设计,也让人与人之间的沟通变得更加有效、简单。

宽敞的原木餐桌满足了同时容纳七八个人用餐的问题,超大的落地窗则提供了充足的采光与视线,一边吃饭一边看风景,堪称完美。

而在餐厅一角则加入了灰色元素,深灰色窗帘与日式风完美结合,同时也防止了家具被紫外线直射。
03.厨房:扩容66%面积+超强收纳,KO小空间

填平了原楼梯间,把厨房与家务间串联在一起,原本不到6m²的空间瞬间便提升到10m²,这波操作真的是相当机智。

利用黑色门框在视觉上“划分”出厨房与家务间的区域。门的左边,采用内嵌式设计,将冰箱、烤箱、微波炉等电器嵌入墙里,整洁美观又设计范儿十足。

门的右边,用玻璃推拉门的设计,打造出一个生活阳台。而百叶帘的“现身”,则避免了阳台杂物影响整体美观。

透过黑框门能清楚看到,厨房内也是以原木色为主的基调,定制吊柜将“边角空间”充分利用,全面满足屋主对收纳的超强需求。
其他亮点:从细节上拔高整体颜值

木质吊灯与餐桌完美匹配,温馨的氛围只用看图就能感受得到;

将地面抬高,自然形成下沉式客厅的同时,也打造出一处休闲场所;

电视墙设计在走廊墙面,充分满足客户使用习惯;而悬挂式电视柜,让客厅收纳更整洁;

简约的组合装饰挂画,严谨之中又富于变化,与客厅风格完全融合;

极简的白色落地灯,在视觉美感上将客厅的气质提升了一个Level;

简洁的黑色线条搭配上通透的玻璃面,极简的视觉元素让它轻松融入到日式风中;
以及书房与影音室的结合、观影与非观影的灯光设计、衣帽间的打造都完美到无可复制。
色彩分析:白+原木色,将日式风进行到底
以淡雅节制、深邃禅意著称于世的日式风,除了借助外在自然景色为室内带来无限生机,在装修中更是将原始形态推崇到极致。

大量的留白+温润的原木,恰巧符合日式干净、温暖的气质。
关于设计师

想要更详细了解这套日式风案例,那就坐等U家工场施工完成吧。如果你也喜欢三哥的作品,私信我们,备注“三哥,来撩~