教育部、住房城乡建设部公布了由东南大学建筑设计研究院有限公司编制的《幼儿园标准设计样图》,对幼儿园建设规模、建筑标准等提出具体要求。

点击图片查看大图
也就是说,未来的幼儿园设计,有可以参考的国家标准了!
你可能会觉得,这和我们一线教师有什么关系?其实不然,《幼儿园标准设计样图》中还附上了幼儿园内各种教室的参考样图。对一线幼师来说,以后布置教室、划分区角也有标准了,再也不用为教室布局伤透脑筋了!
你也很好奇未来标准下的教室是怎么样的吧?一起来看看吧!
未来的教室是什么样?
第一张样图里孩子们坐成马蹄形,是适合集体教学的布局:

点击图片查看大图
注:
1.本班级活动单元面积指标采用《建设标准》第十五条、第十六条表中班级活动单元人均使用面积指标下限值。
2.班级活动单元使用面积合计约132平方米,人均使用面积4.4平方米。
3.活动室和寝室合并设置,衣帽储藏、卫生间靠东侧布置。合设幼儿活动区总面积105平方米(以中班床具为例,30张床具占用面积约25平方米),衣帽储藏9平方米,卫生间18平方米。
4.幼儿活动区家具有多种布置方式,本图仅供参考。
5.厚墙以200mm为例。
第二张样图将孩子们分成一桌一桌,比较适合美术活动、就餐时的布局:

点击图片查看大图
注:
1.本班级活动单元面积指标采用《建设标准》第十五条、第十六条表中班级活动单元人均使用面积指标上限值。
2.班级活动单元使用面积合计约159平方米,人均使用面积5.3平方米。
3.活动室和寝室合并设置,衣帽储藏、卫生间靠东侧布置。幼儿活动区+就寝区总面积132平方米,衣帽储藏9平方米,卫生间18平方米。
4.幼儿活动区家具有多种布置方式,本图仅供参考。
5.厚墙以200mm为例。
第三张样图则将方桌换成了圆桌,会更适合孩子之间互动哦:

点击图片查看大图
注:
1.本班级活动单元面积指标采用《建设标准》第十五条、第十六条表中班级活动单元人均使用面积指标下限值。
2.班级活动单元使用面积合计约132平方米,人均使用面积4.4平方米。
3.活动室和寝室合并设置,衣帽储藏、卫生间靠北侧布置。合设幼儿活动区总面积105平方米(以中班床具为例,30张床具占用面积约25平方米),衣帽储藏9平方米,卫生间18平方米。
4.幼儿活动区家具有多种布置方式,本图仅供参考。
5.厚墙以200mm为例。
第四张样图和第一张有点类似,生活区域的位置有所调整:

点击图片查看大图
注:
1.本班级活动单元面积指标采用《建设标准》第十五条、第十六条表中班级活动单元人均使用面积指标上限值。
2.班级活动单元使用面积合计约159平方米,人均使用面积5.3平方米。
3.活动室和寝室合并设置,衣帽储藏、卫生间靠北侧布置。幼儿活动区+就寝区总面积132平方米,衣帽储藏9平方米,卫生间18平方米。
4.幼儿活动区家具有多种布置方式,本图仅供参考。
5.厚墙以200mm为例。
你有没有发现,上面的几张教室布局图其实有很多共同点,这些也是我们以后布置教室的时候要注意的点哦!
幼儿园教室布局注意点
1)都有活动角(区角)
2)都有自然角,且靠近孩子的活动区域
3)教学区域(区角、幼儿园活动区)与生活区域(厕所、盥洗室、污水区域、衣帽间)不混杂
如果你想了解更多关于教室布局的内容,欢迎点击这篇《4步教你做好开学班级布局》查看哦~
未来的幼儿园要符合哪些标准?
说完了和老师们最息息相关的教室布局,再来看看文件里对于幼儿园建设提出的一些要求吧。不妨想一想自己的幼儿园是否符合哦~
点击图片查看大图
划重点啦!
总则中的第四条值得每一位幼师注意,幼儿园的建设必须符合幼儿的生理和心理成长规律,即“以幼儿为本”;这也是我们教育工作中需时刻牢记的一条“守则”。
同时,强调了幼儿园要能抵御自然灾害、保护幼儿安全,再次提醒我们要将孩子的安全放在第一位!

点击图片查看大图
划重点啦!
注意看表格下面的小字,幼儿园办园规模不宜超过12个班、城镇幼儿园不少于6个班,农村幼儿园不少于3个班。
这里的一个班人数为30人,那些不顾师生比疯狂招生,一个班级50多个孩子的幼儿园可要注意了哦!

点击图片查看大图
划重点啦!
这里说明了幼儿园该配备的各类设施,你的幼儿园都齐全吗?


点击图片查看大图
划重点啦!
这里讲的是幼儿园选址的一些要求,大多数要求都与幼儿的安全息息相关,同时也指出幼儿园应该远离如农贸市场、娱乐场所等不利于幼儿身心发展的场所,不禁让人想起了孟母三迁呢。


点击图片查看大图
划重点啦!
这两页则对幼儿园的总体平面布置提出了要求,其*特中**别强调了户外活动场地与绿化的面积,可见给孩子充分运动的机会、让孩子亲近自然是每个幼师都应该在教学中做到的。


点击图片查看大图
划重点啦!
这里对幼儿园的建筑设计提出了要求,可以看出每一项要求都紧密围绕着幼儿的身心健康,切实在为孩子考虑。
其中还提到了不得建设豪华幼儿园,是呀,教育是靠专业性与对孩子的一颗赤诚心造就的,而不是靠豪华的硬件设备堆砌出来的!

点击图片查看大图
划重点啦!
这里则对幼儿园里的一些设备提出了要求,如应该设置集中采暖、照明要选用节能灯具、要配备紫外线杀菌灯等,是幼儿园办学的基础!
除了上面的这些要求,文件里对幼儿园的门厅、走廊、墙面、门窗等都做了详细的要求,并附有示意图,在这里就不一一介绍了。感兴趣的老师可以点击文末的“阅读原文”查看文件哦~
未来的幼儿园是什么样的?
说了那么多,未来的幼儿园到底是怎么样的?文件中也为大家展示了室内室外的平面设计图,我们一起来看看吧!
室外场地

点击图片查看大图
三班全日制幼儿园
(更多示意图请点击“阅读原文”查看)

点击图片查看大图
六班全日制幼儿园
(更多示意图请点击“阅读原文”查看)

点击图片查看大图
九班全日制幼儿园
(更多示意图请点击“阅读原文”查看)

点击图片查看大图
十二班全日制幼儿园
(更多示意图请点击“阅读原文”查看)

点击图片查看大图
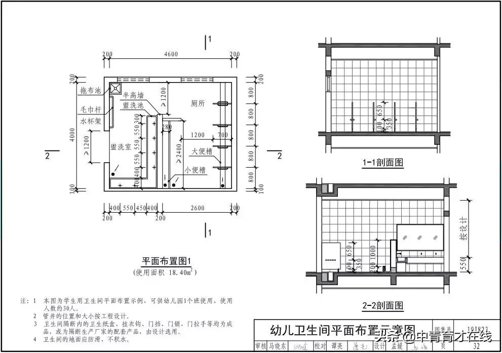
卫生间


点击图片查看大图
保健室、隔离室、集中浴室

点击图片查看大图
老师们是怎么评价的?
昨天文件一发布,我们就赶紧联系了几位在一线工作的老师,想听听他们对于这份文件的看法。
其中,有人表示了支持,认为是为了孩子、也方便了自己工作:


也有人表示反对,有的觉得标准过于严格,有的觉得与自己关系不大:


你有什么看法呢?欢迎给我们留言哦~截止明天19:00,点赞前三的用户还能获得神秘礼物一份呢!

写在最后
文件很长,我认认真真看完了一遍。
说实话,“理想很丰满,现实很骨感”,我们现在的很多幼儿园,其实是达不到这些标准的。
但我相信,随着国家越来越重视学前教育、与学前教育相关的规定越来越完善,我们的幼儿园终将会越来越美好。
各位老师,也许在中国学前教育发展的长河中,我们只是一股涓流或一颗水滴,但当我们汇聚在一起,仍然能产生强大的力量。动动你的手指,将这篇文章分享出去,这样的幼儿园就会离我们更近一点。

声明:本文内容来自教育部,图片来自《幼儿园标准设计样图》。

中青托育孵化器由中青育才文教科技研究院联合少工委、妇联、社区,早幼教协会、幼儿师范院校等机构共同发起设立,帮助更多有梦想、有情怀、有责任心创业者参与托育项目孵化,有效缓解年轻父母带娃难题。
中青育才托育中心专注社区集生命教育、科学教育、赋能教育等多元化养育为一体,拥有独立知识多元文化国际化的课程体系及专业化的教师管理队伍,设托育中心设置活动区、艺术体验区、益智探索区、大型构建区、早期阅读区、生活体验区六大功能板块,以促进幼儿多元化、全方位发展。