案例描述,设计理念
在很多人的眼里,现在流行趋势都是极简、轻奢类型,但没有所谓的风格,也没有非要跟上时尚潮流,每个人内心所期待都不一样,所以,追寻内心所想、所做、最真实的东西,这样才能真正意义上来适合自己!
装修方式:基装+主材
装修风格:美式风格
小区户型:三室两厅
建筑面积:140平方
小区位置:郑州民安北郡
详情咨询:私信,或文章底部了解更多

美式风格电视背景墙

美式沙发布局

餐厅收纳布局

女孩房飘窗设计

父母卧室布局

衣帽间收纳

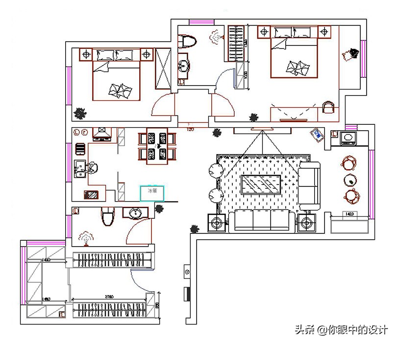
户型装修平面设计方案

美式主卧背景墙
服务范围:河南(郑州 安阳 南阳 鹤壁 焦作 )
如果您准备装修,可点开作者头像进入主页,点击正下方,“2个选项任选其一”即可直接预约设计师!
点开作者头像,观看置顶文章,底部加小编微信,免费讲装修。