【楼盘名称】春藤小镇
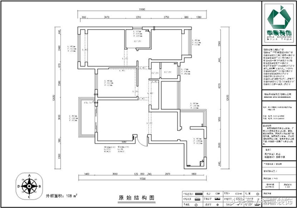
【楼盘面积】108㎡
【装修费用】13万
【装修风格】现代
【户型结构】四居室
【设 计 师】黄瑶娟

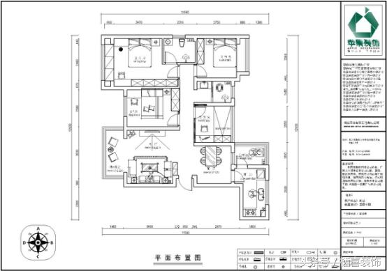
平面 设计说明
现代风格是现代社会装饰装修中比较流行的风格,其广泛的适应性和独特的简约性受到包豪斯学派的影响,已经应用在越来越多的装修案例中。最值得一提的是其注重空间的布局和使用功能的完美结合,在提升生活品质方面是很受推崇的。

只要不是承重墙,根据设计和使用功能的需要,有的墙我们是可以推倒重新改造的。男孩房的原始结构中的门所在的那面墙太靠内,我们将其推倒,重新砌了一面与次卫外墙在同一平面的墙,这样既可以拓展空间,还不影响整体美观和布局。

餐厅
由于线条简单、装饰元素少,现代风格的室内设计需要完美的软装和家具配合,才能体现其美感。一个典雅的窗户,一面素雅的墙,一幅意境深远画,简单的线条,简单的组合,再加入原木餐桌椅,就构成一个舒适惬意有格调的餐厅。

客厅
白色,或许是最百搭的颜色了,而卡其白则会让空间多了一些浪漫的氛围。不需要过多的修饰,白色的沙发,白色的茶几和电视柜搭配卡其白的墙面,只需要三幅现代画就可以将现代生活所倡导的方便舒适完美的表现出来。

主卧
素雅的墙纸让主卧平添了些许浪漫,黑白灰三色的照片墙让床头变得富有诗意,生活在这样的空间,既能梳妆,又能伏案工作、学习,还能仰卧休息,惬意之余还能欣赏窗外的四季风景,在白色的包容性中,心也变得有容乃大,哪里还需要远方的逃离呢?

次卧
空间布局紧凑有致,飘窗的抱枕让冰冷的大理石有了温度,黑白画作让空间有了格调;颜色搭配现代时尚,暖灰释放着成熟与稳重的魅力,纯白彰显着简单质朴。整体的素雅让每天的忙碌有了画上句号的落脚点,有了提升生活品质的空间。

设计师 介绍

姓名:黄瑶娟
职称:首席设计师
所属门店:苹果装饰株洲店
毕业学校:厦门南洋
入行时间:8年
擅长:简欧风格、美式乡村、现代风格、欧美风格
设计理念:让灵感自由释放,创造一个心灵渴望的空间。
作品:湘银星城、湘江名都、慧谷阳光、美的城、兰溪谷、奥园广场、御山和苑、百江御园、曼哈顿、世贸广场、凯旋名门等。