谈到对未来幼儿园的猜想,不免会将现在与过去10年的对比,无疑当今的幼儿园是进步的。在新一轮的技术变革时代下,幼儿园环境也必然会发生变革。
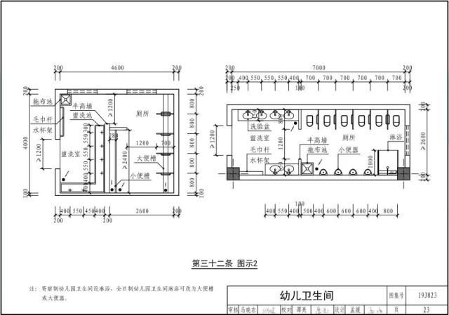
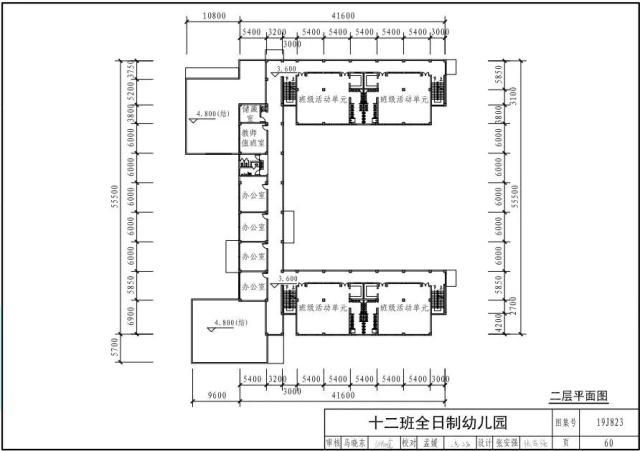
那未来是一个什么样的时代,幼儿园应该变成什么样才能应对未来的教育变革?今年教育部、住房和城乡建设部印发《幼儿园标准设计样图》给了我们一个答案,让我们看到了未来幼儿园该有的雏形。文件指出,幼儿园应满足幼儿生理和心理成长规律。坚持“以幼儿为本”和安全、适用、绿色、经济、美观、节约用地的原则。
而如何在符合国家标准的要求下设计出让幼儿们得到更好成长的幼儿园?这不仅是每个幼儿园需要思考的问题,也同样是作为幼儿空间设计者需要思考的方向。
所以这份文件对当下的民办幼儿园、公立幼儿园以及幼儿园的设计者来讲,都具有一定的参考价值。


































资料来源:国家教育局网站