我们将这一产品的诞生过程称之为“五招一式”。
建筑五大招——实现住宅“筒中筒”结构。▼

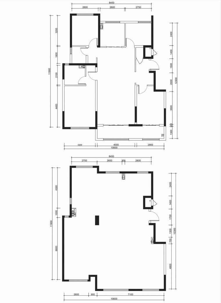
室内空间解放,多元化“一式”实现定制布局....

研发之初


2017年2月 春 凌晨2:00热论
研发之初,我们的首要目标就是,怎样在无限系概念基础上,消除技术疑点与壁垒,退而求稳,让新无限系-升级版本住宅产品高效率、无风险的快速呈现,将其满足个性化需求的优势充分发挥。

用乐高玩具直观且立体的形式来完成我们对户型的构思,在乐趣中探索着改变住宅产品设计的新逻辑,让诸多可能性在一个空间内无限延伸……
仅在两个月之后研发成果便迅速呈现——“万花筒住宅产品”。

这一研发成果最大的意义在于:改变了客群适应户型的传统模式,真正意义上从客群的需求出发,让户型来适应我们的全客群。
优势盘点
万花筒住宅产品优越的产品力体现在“四个无限”。
····· 户型无限 ·····
····· 颜值无限 ·····
····· 收纳无限 ·····
····· 智享无限 ·····
PART01-户型无限
以125户型为例,我们研发出6款户型可适用于家庭多样化功能需求:
Ⅰ·均好型幸福家 Ⅱ·改善型思想家
Ⅲ·炫酷型社交家 Ⅳ·便捷型生活家
Ⅴ·双孩型成长家 Ⅵ·乐龄型尊老家
幸福家

Ⅰ·均好型幸福家:四室两厅两卫,充分利用宝贵的空间,做到极致,既保持舒适的尺度,又保持舒适的距离。

思想家

Ⅱ·改善型思想家:三室两厅两卫,升级主卧套房,实现南向卧室+独卫+整体衣帽间+书房的豪华主人卧配置,尽显主人身份与地位。

社交家

Ⅲ·炫酷型社交家:三室两厅两卫,为社交达人量身定制的7米3宽南向会客厅,充分满足主人对社交、聚会的空间要求,尽显社交家的气势与风范。

生活家

Ⅳ·便捷型生活家:为主人家政悉心设计三室两厅两卫,加入家政间功能,中西厨结合,餐厅与厨房的互动空间,完美演绎居家生活。

成长家

Ⅴ·双孩型成长家:四室两厅两卫,为二孩时代设计产品,起居室与孩子学习活动区相连,充分享受亲子时光,打造真正的童乐空间。

尊老家

Ⅵ·乐龄型尊老家:四室两厅三卫,双主卧套房,根据老年人生活习惯,设置独立卫生间及休息阳台,方便老人日常生活,全方位呵护老年人生活。

此外在145㎡及165㎡的大户型中,“无限家”的全生命周期理念也得到实现。

【145㎡户型】

【165㎡户型】
PART02-颜值无限
实现空间无限的同时,我们认为个性化不应被束缚。为此推出了无限家装修加载方案来匹配无限家,用加载的方式来满足客户的个性化需求。

【质璞主义 白法传奇 唐顿庄园】
PART03-收纳无限
打造玄关、餐客、厨房、卫生间、卧室、阳台六大收纳版块。

在有限的空间内塑造出收纳的无限可能

玄关收纳

卧室收纳

厨房收纳

卫生间收纳

客厅、阳台收纳

PART04-智享无限
智能改变习惯,享受美好生活。科技与家居生活的精美对接,实现“以人为本”的全新家居生活体验。

智享无限设置了1个标配包,即舒适包;以及4个加载包,即健康包、性能包、尊享包及智能包。





产品呈现
2017年4月8日18点30分,2017万科品牌盛典暨翡翠湾发布会在烟台市体育馆震撼上演,6000余人共聚一堂见证万科的又一跨时代创新巨献。
无限+成为翡翠湾的一大爆点,发布会上首开1000套户型一夜之间全部售罄,成为了烟台当地业界破纪录式的神话。
这一场声势浩大的发布盛宴,力证了“万花筒住宅产品”的在品质、效率、营销等多维度的优越产品力,象征着蜕变后的新一代无限系经过市场考验,向成熟阶段阔步迈进。

趋势探讨
目前,无限家产品已在万科烟台区域翡翠湾、御龙山、翡翠公园项目中全面应用,并引发了万科在当地住宅成交量的井喷式增长。

除此之外,无限系列产品已经在万科的区域公司实施落地。
“万花筒住宅产品”,以其先进的理念和成熟的技术引领住宅设计向产品时代迈进,在崭新的环境之下,开拓出“品质人居”发展新蓝海。