深圳南山有一个粤海街道
被称为——“中国最牛街道办”
因其仅有14平方公里
却孵化了87家上市公司
华为、中兴、大疆等曾在此高速成长
诞生了马化腾、许家印两位首富
因而闻名于世

但是,你可能不知道
在与之相距100多公里外
也有一个小镇,被称为“中国奇迹”
打破了全国多项领跑纪录:
全国唯一一个拥有2家世界500强的小镇
4人上榜福布斯全球亿万富豪
孵化了13家上市公司,市值超6600亿
GDP645亿,全国千强镇第六
人均GDP23万元,达到发达国家水平
新华社报道称这是“中国奇迹”的缩影
它就是:
佛山顺德北滘



●
●
●
在《2019年度全国综合实力百强区》榜单中
佛山市顺德区位列全国第一
而顺德区有4街6镇
其中综合实力最强的当属北滘
顺德第1,全国综合实力千强镇第6!

为什么北滘拥有如此之高的热度?
01

这里双五百强总部坐镇,上市名企扎堆,“盛产”千亿富豪
被称为“中国最有钱的女人”
——碧桂园继承人杨惠妍
2019年福布斯中国最富有女性榜榜首
美的掌门人何享健
——2019福布斯中国富豪榜排名第9
他们,都是北滘人
一个小镇,孕育了两位千亿富豪
走出了2家“世界500强”、13家上市企业、多个世界级高端产业项目…

北滘以家电小镇闻名,产值破千亿
拥有全球规模最大最齐全的
白色家电全产业链和小家电产品集群
是中国家电制造业重镇、广东家电专业镇
作为首批国家级特色小镇
成为了中国镇域经济“领头羊”
02

这里,是湾区“智囊团”
湾区科技创新示范区,10万高精尖人才聚集
一 个区域,先要有人,才能有财
经济才得以良性发展
纵观深圳、上海等一线大城市
无一不是“移民社会”
如今的北滘,正在成为新“移民城市”
根据相关报告显示:
- 2016年北滘常住人口新增16819人,其中户籍人口增加6983人,占41.5%
- 2017年常住人口新增19819人,其中户籍人口增加11925人,占60.2%;
- 2018年常住人口增加9486人,其中户籍人口增加8181人,占86.2%
越来越多的高素质人才纷纷选择落户北滘,这得益于当地众多高新产业、大学研究院以及多个世界级高科技创新产业项目的发展:

( 佛山机器人学院 )
A
佛山机器人学院
全国首个机器人学院,顺德政府和德国汉诺威学院,将佛山机器人学院打造成为“中国制造2020”,对接“德国工业4.0”示范平台
B
美的库卡产业基地
总投资超过160亿元,将吸引机器人及智能制造产业,上下游供应链企业25到40家,打造千亿级产业集群,开启中国“湾区智造”新时代
C
世界级无人机创新项目
垄断消费级无人机市场的国内顶级独角兽企业,将建设高清摄录一体机、高端新兴战略科技产品拓展研发、生产基地,预计年产值150亿元
D
博智林机器人谷
博智林机器人谷规模约等于8个华为总部,计划投入至少800亿,打造机器人全产业链高地
E
香港科技大学研究院
发挥香港科技大学的前沿窗口作用,整合粤港澳大湾区乃至世界一流校企资源,为机器人谷源源不断提供科技学术支持与人才资源

近年来,北滘积极建设“智造小镇”,不断拓宽家电全产业链、智能制造、总部经济、会展经济等,产业建设突飞猛进。
广东工业设计城、潭洲国际会展中心、北滘总部商务区、美的库卡智能科技园、军民融合创新产业园等平台不断集聚国内外创新资源,打造具有全球影响力的智能制造产业创新集聚区,成为湾区强劲的发展动力引擎。
03

这里,即将通行广佛第2条跨城地铁广州7号线与佛山最长地铁3号线
佛山在建3条地铁,北滘独占2条
双地铁直通广佛核心区,7站广州南
广州地铁7号线
截至2020年6月
广州地铁7号线西延顺德段已完成工程量70%,部分车站主体结构已封顶
预计将于2021年通行

佛山地铁3号线
同样已经动工的还有地铁3号线
——佛山地铁中线路最长、投资金额最大的地铁线
预计将于2022年通行

广州地铁7号线与佛山3号线
交汇于北滘新城站 (中海悦林熙岸旁)
贯通广州南/大学城/番禺商圈与佛山新城等核心区
无数拥有地铁的区域已经证明
双地铁物业的价值潜力更加惊人
一站之隔,双地铁物业可能是单地铁物业的2倍
比如:凤凰新村站与换乘点沙园站;五羊邨站与换乘点珠江新城站

中海悦林熙岸,位于双地铁线交汇点北滘新城站旁,名副其实的双地铁线物业,从项目出发:
15 分钟直达广州南, 25 分钟到长隆
到珠江新城上班仅需 40 分钟!

04

这里,是顺德的高端城市客厅,出享繁华,入享生活
想要咨询或者更多优惠私信作者。
北滘在教育、医疗、就业、养老等方面不断升级
各种中心级市政配套与生态资源齐全
堪比珠江新城CBD级别
非常便民宜居,出得繁华,入享生活
衣食住行,出门2公里尽数满足
其中,北滘公园面积达13万方
相当于18个标准足球场大小

北滘市民活动中心

北滘公园

北滘文化中心

北滘门广场
父母买菜购物,出门就是各种商业广场
在周末,可以带着孩子去 青少年宫、逛逛和美术馆 ,感受艺术熏陶
清晨傍晚,与家人一起到附近的 北滘公园、北滘文化广场 散散步
偶尔喊上朋友一起到 和园 走走
平日闲时,到 新活力体育中心 打打篮球
到 好市民活动中心 活动活动筋骨
在快节奏的城市生活中感受慢下来的时光
中海悦林熙岸,位于城央黄金中轴,1公里生活圈内,生活/学校/生态/商业配套应有尽有,繁华自然随心切换


从千年水村到岭南商埠
从农业产区到经济重镇
北滘这个中国最牛小镇
已然成长为宜居宜业宜商的现代化都市
无论从地理位置、经济发展还是地铁交通
都与广州紧密相连
一举一动牵动着佛山乃至大湾区的经济发展脉络
板块大热,前景无限
广州下一站置业,首看北滘!
中海悦林熙岸之所以被市场热捧,必定有其过人之处
动人的是颜值,动心的是品质
很多时候,我们评价一个产品好不好
除了比拼地段之外,户型则是首要考虑的点
全南
四房●品质优选
户型设计
THE GAIETY
中海悦林熙岸
在户型设计上
中海悦林熙岸104㎡户型
堪称广佛市场上半年的爆款产品
104㎡户型
竟然做到了全南四开间,12.5米采光面宽
外带双玄关柜+6.3m大阳台+豪华主套衣帽间
完胜市面上大多数3房户型
●
●
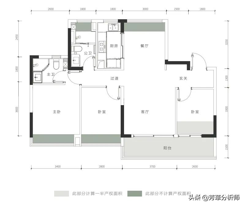
104㎡户型图 | 3房·2厅·2卫

全南向低密板楼·南北对流无遮挡
在佛山,都是塔楼设计居多,由于结构的特殊性,这类楼型存在诸多局限性,如通风效果差,视野遮挡、居住密度高等。






中海悦林熙岸,位于城央黄金地段,却采用了市面难见的一梯两户低密板楼,搭配全南向户型设计,实现真正意义上的南北对流。
在保证人居私密性的同时实现户户瞰景、家家赏园,堪比别墅级的人居体验,这是市面上的塔楼远不能比的。

社区效果图
全玻璃幕墙现代立面,12.5米采光面宽
不管是从社区规划立面、窗墙比设计,还是室内的户型朝向,悦林熙岸在采光上真正做到了极致。

室内采光示意图
在立面上,中海悦林熙岸采用了全佛山唯一类幕墙式立面设计,窗墙比高达3:1,而市面传统住宅多为2:1,这样的设计让光线充盈了整个居所。

户型上,104㎡户型做到了全南四开间
3卧室+1客厅朝南=12.5米采光面宽≈垂直4.5层楼的高度
进深与面宽比达到了完美的1:1.5黄金比例
意味着相同面积内采光更充足,视野更通透
即使在日照时长最短的冬日或阴雨天,无需开灯也能全屋明亮,无惧回南天



动静分区,干湿分离,生活有“界”无边
空间的布局始终服务于居家生活场景,三代同堂同住屋檐下,如何避免互相干扰,动静格局划分十分重要。

示意图
整体功能空间布局根据人流动线,将空间划分为动静两区,日常起居、工作生活,互不干扰。
比如日常有客人来访时,从卧室前往洗手间也不会经过客厅打扰长者的交际应酬
在动线设计上,只设置一条短小的主要通道,通往各个卧室房间,极大减少空间浪费

普通住宅
罕见3.1米豪宅层高,心境豁然开朗
普通住宅一般是2.8米的层高,经过吊顶装修等实际高度会更低,造成空间上的压抑感。

中央空调示意图
为了能够实现更好的居住体验,中海悦林熙岸不惜建筑成本,做到了市面罕见的3.1米层高,比一般住宅足足提高了30厘米。
专为中央空调吊顶设计,告别压抑感,居住更舒展,挑高空间更显气派华贵。
双玄关柜立体收纳,轻松多出储物间
玄关,即是家的门面,亦是藏纳有道的收纳空间。
让人惊艳的是,中海104㎡户型竟然做到了双玄关柜收纳!这样的设计,即使是市面上140㎡的大户型也未必能做到。
中海悦林熙岸
交标自带1.5米玄关柜(1200L)+预留第二玄关柜空间(800L)
共2000L容量=46个20寸行李箱
玄关收纳扩展两倍,轻松多出一个“储物间”


玄关柜实景图
其中,过道玄关采用一体化柜体设计,设置鞋柜、衣柜、储物柜、伞柜等收纳空间,轻松收纳一家六口的日常
柜体配置立体全身镜,按压开启,方便进出家门整理仪容,不用奔波回房间。
底部设置以隐藏式换鞋凳,拉出使用,不占用过道空间,方便穿脱换鞋。
酒店式主卧套房,私享独卫衣帽间
人生中约三分之一的时间是在睡眠中度过,而卧室自然成为日常生活频率使用最高的空间。

步入式衣帽间示意图
104㎡户型主卧酒店式奢华套房,面积超18㎡
独立明卫干湿分区,早晨起床,不需与父母孩子挤占浴室空间,满足日常盥洗之需,打造尊崇私密的寝居环境
预留步入式衣帽间空间,超大储物容量
太太的时尚秀场,先生的品质主场
270°大尺度转角飘窗望园林,拉开窗帘阳光倾洒,保证床榻光线充足,让每一天的卧眠,都充满阳光的馨香

270°转角飘窗示意图
L型厨房布局,预留双开门冰箱位
一日三餐,以食为大。厨房的布局影响着日常的料理体验。

厨房示意图(预留双开门冰箱位)
中海悦林熙岸厨房L型布局,洗切烹动线一气呵成,最大程度利用空间。双推拉门的设计,有效隔绝油烟进入客厅。
值得一提的是,中海104㎡户型厨房预留了双开门冰箱位!
这种设计只有非常科学合理的空间布局才能做到,基本只能在大户型见到,绝大多数100㎡左右的产品,厨房空间已十分局促,很难做到这一点
客餐厅一体化,双开间6.3米大阳台
生活的美好不在于诗与远方,而在于拥有幸福的点滴日常。

阳台示意图
约6.3米阔景阳台,片区罕见双开间阳台,与卧室连通,延伸视野风景
厅出阳台,客餐厅一体化,餐厅旁设大面积观景飘窗,伴着风景下饭;南北双向采光,异常通透,居住更健康、体验更舒适