福田中心区石厦片区
石厦定位:区级行政中心和中心区配套生活居住区
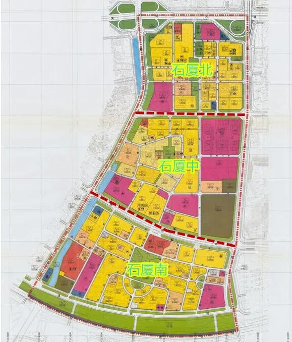
石厦片区是由滨河路、益田路、新洲路、福荣路合围而成的范围,位于福田中心区正南向,左右相邻新洲片区和皇岗片区,南边为福田保税区。

石厦片区位于福田中心区,新洲片区以东,会展中心以南,五大商圈(COCO Park、怡景中心城、皇庭广场、卓越广场、卓越INTOWN)环伺,集萃全球知名品牌,尽享繁华盛宴!

生活配套齐全 生活半径一公里内含商业、公园、医疗、休闲娱乐配套






石厦被福民路和福强路分割为石厦北、石厦中、石厦南三个小片区,在老石厦人口中会经常有人说“石厦北宜居、石厦中热闹、石厦南安逸”

作为一个宜居的区域,便捷的交通是必备条件。
石厦地处福田中心区。周边被滨河大道、益田路、金田路包围 交通便利地理位置好
片区最主要的地铁站为石厦地铁站,所属地铁线路有三号线和七号线,是通往龙岗和南山的重要地铁线路。

道路交通方面,石厦片区北部紧邻滨河大道,对外联系较为通达。

片区内楼盘都带石厦中小学学位,九年直升制。

深圳石厦学校是福田区第一所九年一贯制学校,自建成以来,以特色建设为抓手,着力打造学生发展有内涵、教师团队有活力、学科建设有亮点、校园文化有特色的品牌学校,致力于让优质教育走进寻常百姓家。经过多年励精图治,茁壮发展,而今宛若明星闪耀。

学校特色是“低进高出、高进优出”特色鲜明的办学道路,形成了三大办学特色:以人为本,充满活力的管理特色;以创新为核心,着眼培养实践创新能力的科技教育特色;以校园文化为载体,健康向上的体艺特色。
福田区启动石厦小学整体拆建项目,重建方案按照提供36个班共1600个学位的规模进行设计,总建筑面积32312平方米,是原来的3.4倍。校舍分为地下2层,地上6层,总投资3.4亿元。
预计2020年9月份正式重新招生,新建石厦小学位于石厦北四街与石厦北一街交汇处,除了可容纳36个班级外,校内还设置了阅览室、活动室、餐厅、游泳馆等,建成后可有效缓解石厦片区小学教育资源紧张的局面。

招生范围:
整个石厦北片区都是带石厦中小学学区,由滨河大道,新洲路,益田,福民路包围起来,片区一共27个小区。
其中大户型(三房及以上):中央花园,东方欣悦居,碧馨苑,博伦花园,瑞和园,明月花园,金地翠园,天健阳光华苑,雅云轩,恒冠豪园,宏欣豪园,翔韵苑,泰美园。信托花园,阳光四季;
小户型:缔馨园,丽阳天下,合正佳园,星座传奇,机场住宅,绿洲丰和,宏轩名庭,海云居,葵花公寓,高发小区,南方国际广场。

片区核心竞争力:
1、片区内没有城中村,生源全部来自于商品房,生源纯粹,生源家庭对于学生的教育重视度和投资力度相对比较大,孩子的学习氛围相对比较好。
2、石厦学校是九年一贯制办学,福田区域内,除了市直属的几所重点学校外,其他片区学区搭配相对来说,想要中小学都比较优质的很少,例如福田外国语中学和景田小学,北环中学和景龙小学,红岭中学石厦部和众孚小学等,都是中学优质,小学一般。
3、石厦交通便利,地铁3号线和7号线双地铁,一站到购物公园,;两站到福田高铁站,可以换乘11号线直达宝安机场,三站到深圳最大的换乘站车公庙,出行无忧。整个片区地处福田中心区,临近片平安大厦,卓越大厦等高级写字楼,购买力旺盛。